|
|
|
| Larry Stein Oklahoma County Assessor (405) 713-1200 - Public Access System |
|
|
|
|
|
|
| Real Property Display - Screen Produced 4/8/2026 5:00:33 AM | ||||
|---|---|---|---|---|
| Account: R054851737 | Type: Residential | Location: |
1801 NW 38TH ST |
|
| Building Name/Occupant: |
|
OKLAHOMA CITY |
||
| Owner Name 1: | SAGEHORN CHRISTINA TRUST |
Parcel PIN#: |
2667-05-485-1737 |
|
| Owner Name 2: | 1/4 section #: |
2667 |
||
| Owner Name 3: | Parent Acct: |
|
||
| Billing Address: | 1801 NW 38TH ST | Tax District: |
|
|
| City, State, Zip | OKLAHOMA CITY, OK 73118-2820 | School System: |
Oklahoma City #89 |
|
|
Country: (If noted) |
Land Size: |
0.1377 Acres |
||
|
Land Value: 28,200 |
|
|||
|
Sect 17-T12N-R3W Qtr SW |
PUTNAM HEIGHTS ADD
Block
009
Lot
000
|
|||
| Full Legal Description: PUTNAM HEIGHTS ADD 009 000 S120FT LOTS 19 & 20 |
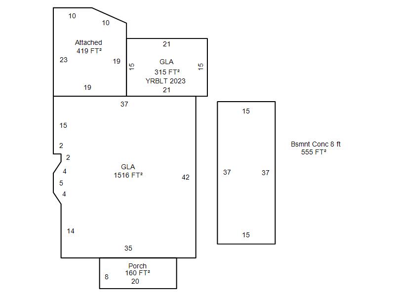
| Photo & Sketch (if available) | Comp Sales (ordered by relevancy) |
|
||||||||||||||||||
|
||||||||||||||||||||
| Value History (*The County Treasurer 405-713-1300 posts & collects actual tax amounts. Contact information HERE) | |||||||||||||
|---|---|---|---|---|---|---|---|---|---|---|---|---|---|
| Year | Market Value | Taxable Mkt Value | Gross Assessed | Exemption | Net Assessed | Millage | Est. Tax | Tax Savings | |||||
|
2026 |
302,500 |
302,500 |
33,275 |
1,000 |
32,275 |
122.90 |
$3,967 |
$123 |
|||||
|
2025 |
305,500 |
305,500 |
33,605 |
1,000 |
32,605 |
122.90 |
$4,007 |
$123 |
|||||
|
2024 |
304,000 |
304,000 |
33,440 |
1,000 |
32,440 |
123.89 |
$4,019 |
$124 |
|||||
|
2023 |
204,000 |
204,000 |
22,440 |
0 |
22,440 |
122.82 |
$2,756 |
$0 |
|||||
|
2022 |
176,500 |
137,288 |
15,100 |
0 |
15,100 |
117.63 |
$1,776 |
$507 |
|||||
| Property Account Status/Adjustments/Exemptions | ||
|---|---|---|
| Account # | Exemption Description | Amount |
|
R054851737 |
3% Cap Homestead |
0 |
|
R054851737 |
Homestead |
1,000 |
| Property Deed Transaction History (Recorded in the County Clerk's Office) | ||||||||||
|---|---|---|---|---|---|---|---|---|---|---|
| Date | Type | Book | Page | Price | Grantor | Grantee | ||||
|
4/10/2025 |
|
Deeds |
$0 |
THREATT CHRISTINA |
SAGEHORN CHRISTINA TRUST |
|||||
|
12/20/2024 |
|
Deeds |
$0 |
THREATT JESSE JONELL |
THREATT CHRISTINA |
|||||
|
9/15/2023 |
|
Deeds |
$260,000 |
DRAGON NEST RENTALS LLC |
THREATT CHRISTINA |
|||||
|
8/4/2022 |
|
Deeds |
$120,000 |
EQUITY TRUST COMPANY |
DRAGON NEST RENTALS LLC |
|||||
|
6/29/2022 |
|
Hmstd Off & |
$0 |
1801 NW 38TH TRUST |
EQUITY TRUST COMPANY |
|||||
| Last Mailed Notice of Value (N.O.V.) Information/History | ||||||||
|---|---|---|---|---|---|---|---|---|
| Year | Date | Market Value | Taxable Market Value | Gross Assessed | Exemption | Net Assessed | ||
|
2025 |
02/14/2025 |
305,500 |
305,500 |
33,605 |
1,000 |
32,605 |
||
|
2024 |
02/13/2024 |
304,000 |
304,000 |
33,440 |
0 |
33,440 |
||
|
2023 |
02/14/2023 |
204,000 |
204,000 |
22,440 |
0 |
22,440 |
||
|
2022 |
03/15/2022 |
176,500 |
137,288 |
15,100 |
0 |
15,100 |
||
|
2021 |
03/19/2021 |
156,000 |
130,751 |
14,382 |
0 |
14,382 |
||
| Property Building Permit History | |||||||||||
|---|---|---|---|---|---|---|---|---|---|---|---|
| Issued | Permit # | Provided by | Bldg # | Description | Est Construction Cost | Status | |||||
| No Building Permit records returned. | |||||||||||
| Click button on building number to access detailed information: | ||||||
|---|---|---|---|---|---|---|
| Bldg # | Vacant/Improved Land | Bldg Description | Year Built | SqFt | # Stories | |
|
1 |
Improved |
Ranch 1 Story |
1926 |
1,831 |
1 Stories |
|