|
|
|
| Larry Stein Oklahoma County Assessor (405) 713-1200 - Public Access System |
|
|
|
|
|
|
| Real Property Display - Screen Produced 4/4/2026 7:19:20 AM | ||||
|---|---|---|---|---|
| Account: R059621290 | Type: Residential | Location: |
2021 NW 36TH ST |
|
| Building Name/Occupant: |
|
OKLAHOMA CITY |
||
| Owner Name 1: | RILEY WILLIAM A III REV TRUST |
Parcel PIN#: |
2667-05-962-1290 |
|
| Owner Name 2: | 1/4 section #: |
2667 |
||
| Owner Name 3: | Parent Acct: |
|
||
| Billing Address: | 202 E 4TH ST | Tax District: |
|
|
| City, State, Zip | EDMOND, OK 73034-4569 | School System: |
Oklahoma City #89 |
|
|
Country: (If noted) |
Land Size: |
0.1722 Acres |
||
|
Land Value: 45,750 |
|
|||
|
Sect 17-T12N-R3W Qtr SW |
CLASSEN PUTNAM HGTS
Block
001
Lot
015
|
|||
| Full Legal Description: CLASSEN PUTNAM HGTS 001 015 |
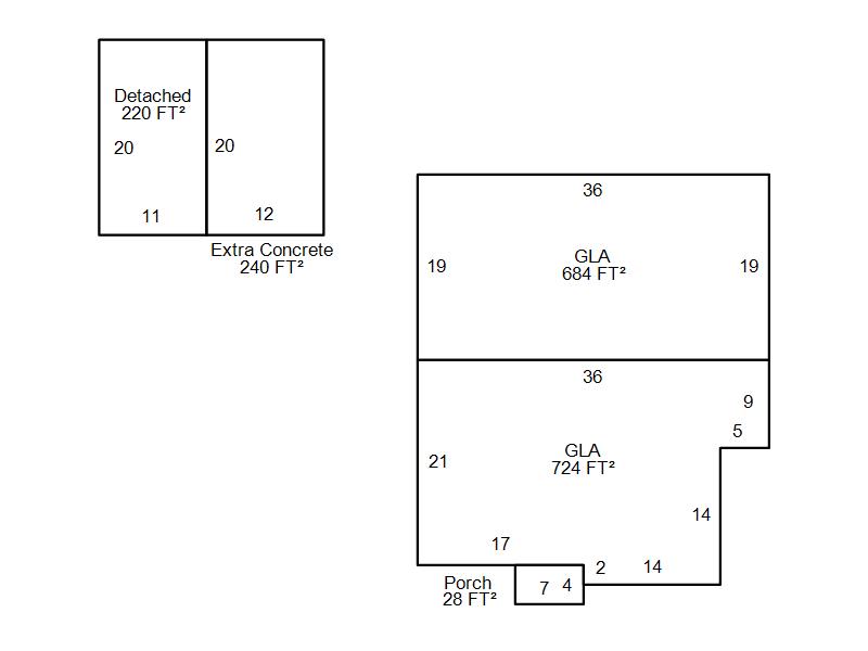
| Photo & Sketch (if available) | Comp Sales (ordered by relevancy) |
|
||||||||||||||||||
|
||||||||||||||||||||
| Value History (*The County Treasurer 405-713-1300 posts & collects actual tax amounts. Contact information HERE) | |||||||||||||
|---|---|---|---|---|---|---|---|---|---|---|---|---|---|
| Year | Market Value | Taxable Mkt Value | Gross Assessed | Exemption | Net Assessed | Millage | Est. Tax | Tax Savings | |||||
|
2026 |
191,500 |
124,060 |
13,645 |
0 |
13,645 |
122.90 |
$1,677 |
$912 |
|||||
|
2025 |
192,000 |
118,153 |
12,995 |
0 |
12,995 |
122.90 |
$1,597 |
$998 |
|||||
|
2024 |
186,000 |
112,527 |
12,377 |
0 |
12,377 |
123.89 |
$1,534 |
$1,001 |
|||||
|
2023 |
143,500 |
107,169 |
11,788 |
0 |
11,788 |
122.82 |
$1,448 |
$491 |
|||||
|
2022 |
117,000 |
102,066 |
11,226 |
0 |
11,226 |
117.63 |
$1,321 |
$193 |
|||||
| Property Account Status/Adjustments/Exemptions | ||
|---|---|---|
| Account # | Exemption Description | Amount |
|
R059621290 |
5% Capped Account |
0 |
| Property Deed Transaction History (Recorded in the County Clerk's Office) | |||||||
|---|---|---|---|---|---|---|---|
| Date | Type | Book | Page | Price | Grantor | Grantee | |
|
8/24/1993 |
|
Historical |
$0 |
SECRETARY OF HOUSING |
RILEY WILLIAM A III REV TRUST |
||
|
3/12/1993 |
|
Historical |
$0 |
BONNY JANET L |
SECRETARY OF HOUSING |
||
|
7/12/1989 |
|
Historical |
$0 |
BONNY ROBERT STEVEN & JANET L |
BONNY JANET L |
||
|
11/1/1985 |
|
Historical |
$40,000 |
|
BONNY ROBERT STEVEN & JANET L |
||
| Last Mailed Notice of Value (N.O.V.) Information/History | ||||||||
|---|---|---|---|---|---|---|---|---|
| Year | Date | Market Value | Taxable Market Value | Gross Assessed | Exemption | Net Assessed | ||
|
2026 |
02/23/2026 |
191,500 |
124,060 |
13,645 |
0 |
13,645 |
||
|
2025 |
02/14/2025 |
192,000 |
118,153 |
12,995 |
0 |
12,995 |
||
|
2024 |
02/13/2024 |
186,000 |
112,527 |
12,377 |
0 |
12,377 |
||
|
2023 |
02/14/2023 |
143,500 |
107,169 |
11,788 |
0 |
11,788 |
||
|
2022 |
03/15/2022 |
117,000 |
102,066 |
11,226 |
0 |
11,226 |
||
| Property Building Permit History | |||||||||||
|---|---|---|---|---|---|---|---|---|---|---|---|
| Issued | Permit # | Provided by | Bldg # | Description | Est Construction Cost | Status | |||||
| No Building Permit records returned. | |||||||||||
| Click button on building number to access detailed information: | ||||||
|---|---|---|---|---|---|---|
| Bldg # | Vacant/Improved Land | Bldg Description | Year Built | SqFt | # Stories | |
|
1 |
Improved |
Ranch 1 Story |
1947 |
1,408 |
1 Stories |
|