|
|
|
| Larry Stein Oklahoma County Assessor (405) 713-1200 - Public Access System |
|
|
|
|
|
|
| Real Property Display - Screen Produced 4/6/2026 6:47:10 PM | ||||
|---|---|---|---|---|
| Account: R059650200 | Type: Residential | Location: |
2504 NW 38TH ST |
|
| Building Name/Occupant: |
|
OKLAHOMA CITY |
||
| Owner Name 1: | HOGAN BRYAN PATRICK |
Parcel PIN#: |
2671-05-965-0200 |
|
| Owner Name 2: | 1/4 section #: |
2671 |
||
| Owner Name 3: | Parent Acct: |
|
||
| Billing Address: | 1821 COVENTRY LN | Tax District: |
|
|
| City, State, Zip | NICHOLS HILLS, OK 73120-4703 | School System: |
Oklahoma City #89 |
|
|
Country: (If noted) |
Land Size: |
0.1389 Acres |
||
|
Land Value: 23,595 |
|
|||
|
Sect 18-T12N-R3W Qtr SW |
CUBINE SUB ADDITION
Block
001
Lot
002
|
|||
| Full Legal Description: CUBINE SUB ADDITION 001 002 |
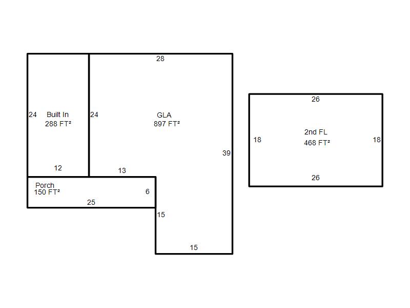
| Photo & Sketch (if available) | Comp Sales (ordered by relevancy) |
|
||||||||||||||||||
|
||||||||||||||||||||
| Value History (*The County Treasurer 405-713-1300 posts & collects actual tax amounts. Contact information HERE) | |||||||||||||
|---|---|---|---|---|---|---|---|---|---|---|---|---|---|
| Year | Market Value | Taxable Mkt Value | Gross Assessed | Exemption | Net Assessed | Millage | Est. Tax | Tax Savings | |||||
|
2026 |
160,000 |
112,745 |
12,401 |
0 |
12,401 |
122.90 |
$1,524 |
$639 |
|||||
|
2025 |
151,500 |
107,377 |
11,811 |
0 |
11,811 |
122.90 |
$1,452 |
$596 |
|||||
|
2024 |
143,500 |
102,264 |
11,248 |
0 |
11,248 |
123.89 |
$1,394 |
$562 |
|||||
|
2023 |
130,000 |
97,395 |
10,713 |
0 |
10,713 |
122.82 |
$1,316 |
$441 |
|||||
|
2022 |
106,500 |
92,758 |
10,201 |
0 |
10,201 |
117.63 |
$1,200 |
$178 |
|||||
| Property Account Status/Adjustments/Exemptions | ||
|---|---|---|
| Account # | Exemption Description | Amount |
|
R059650200 |
5% Capped Account |
0 |
| Property Deed Transaction History (Recorded in the County Clerk's Office) | |||||||
|---|---|---|---|---|---|---|---|
| Date | Type | Book | Page | Price | Grantor | Grantee | |
|
9/1/1985 |
|
Historical |
$44,900 |
|
HOGAN BRYAN PATRICK |
||
| Last Mailed Notice of Value (N.O.V.) Information/History | ||||||||
|---|---|---|---|---|---|---|---|---|
| Year | Date | Market Value | Taxable Market Value | Gross Assessed | Exemption | Net Assessed | ||
|
2026 |
02/23/2026 |
160,000 |
112,745 |
12,401 |
0 |
12,401 |
||
|
2025 |
02/14/2025 |
151,500 |
107,377 |
11,811 |
0 |
11,811 |
||
|
2024 |
02/13/2024 |
143,500 |
102,264 |
11,248 |
0 |
11,248 |
||
|
2023 |
02/14/2023 |
130,000 |
97,395 |
10,713 |
0 |
10,713 |
||
|
2022 |
03/15/2022 |
106,500 |
92,758 |
10,201 |
0 |
10,201 |
||
| Property Building Permit History | |||||||||||
|---|---|---|---|---|---|---|---|---|---|---|---|
| Issued | Permit # | Provided by | Bldg # | Description | Est Construction Cost | Status | |||||
| No Building Permit records returned. | |||||||||||
| Click button on building number to access detailed information: | ||||||
|---|---|---|---|---|---|---|
| Bldg # | Vacant/Improved Land | Bldg Description | Year Built | SqFt | # Stories | |
|
1 |
Improved |
1½ Story Fin |
1947 |
1,365 |
1.5 Stories |
|