|
|
|
| Larry Stein Oklahoma County Assessor (405) 713-1200 - Public Access System |
|
|
|
|
|
|
| Real Property Display - Screen Produced 4/6/2026 6:45:22 PM | ||||
|---|---|---|---|---|
| Account: R059650700 | Type: Residential | Location: |
2528 NW 38TH ST |
|
| Building Name/Occupant: |
|
OKLAHOMA CITY |
||
| Owner Name 1: | HOLMAN CHERYL |
Parcel PIN#: |
2671-05-965-0700 |
|
| Owner Name 2: | 1/4 section #: |
2671 |
||
| Owner Name 3: | Parent Acct: |
|
||
| Billing Address: | 2528 NW 38TH ST | Tax District: |
|
|
| City, State, Zip | OKLAHOMA CITY, OK 73112-7562 | School System: |
Oklahoma City #89 |
|
|
Country: (If noted) |
Land Size: |
0.1389 Acres |
||
|
Land Value: 23,595 |
|
|||
|
Sect 18-T12N-R3W Qtr SW |
CUBINE SUB ADDITION
Block
001
Lot
008
|
|||
| Full Legal Description: CUBINE SUB ADDITION 001 008 |
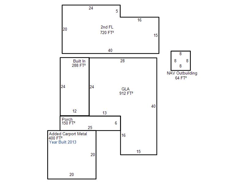
| Photo & Sketch (if available) | Comp Sales (ordered by relevancy) |
|
||||||||||||||||||
|
||||||||||||||||||||
| Value History (*The County Treasurer 405-713-1300 posts & collects actual tax amounts. Contact information HERE) | |||||||||||||
|---|---|---|---|---|---|---|---|---|---|---|---|---|---|
| Year | Market Value | Taxable Mkt Value | Gross Assessed | Exemption | Net Assessed | Millage | Est. Tax | Tax Savings | |||||
|
2026 |
183,000 |
97,760 |
10,753 |
2,000 |
8,753 |
122.90 |
$1,076 |
$1,398 |
|||||
|
2025 |
171,000 |
97,760 |
10,753 |
2,000 |
8,753 |
122.90 |
$1,076 |
$1,236 |
|||||
|
2024 |
165,000 |
97,760 |
10,753 |
2,000 |
8,753 |
123.89 |
$1,084 |
$1,164 |
|||||
|
2023 |
149,000 |
94,913 |
10,440 |
2,000 |
8,440 |
122.82 |
$1,037 |
$976 |
|||||
|
2022 |
122,500 |
92,149 |
10,135 |
1,000 |
9,135 |
117.63 |
$1,075 |
$510 |
|||||
| Property Account Status/Adjustments/Exemptions | ||
|---|---|---|
| Account # | Exemption Description | Amount |
|
R059650700 |
Freeze Senior Valuation |
0 |
|
R059650700 |
Senior Additional Homestead |
1,000 |
|
R059650700 |
Homestead |
1,000 |
|
R059650700 |
3% Cap Homestead |
0 |
| Property Deed Transaction History (Recorded in the County Clerk's Office) | ||||||||||
|---|---|---|---|---|---|---|---|---|---|---|
| Date | Type | Book | Page | Price | Grantor | Grantee | ||||
|
9/19/2017 |
|
Deeds |
$0 |
HOLMAN LARENCE HOLMAN CHERYL |
HOLMAN CHERYL |
|||||
|
6/11/2003 |
|
Deeds |
$0 |
HOLMAN LARENCE |
HOLMAN LARENCE HOLMAN CHERYL |
|||||
|
5/18/2001 |
|
Other |
$0 |
OKLAHOMA HOUSING DEVELOPMENT AUTHORITY |
HOLMAN LARENCE |
|||||
|
3/3/1998 |
|
Historical |
$55,000 |
HALL WAYMON D & AVIS P |
OKLAHOMA HOUSING |
|||||
|
2/1/1987 |
|
Historical |
$56,500 |
THOMAS JAMES WILLIAM & G |
HALL WAYMON D & AVIS P |
|||||
| Last Mailed Notice of Value (N.O.V.) Information/History | ||||||||
|---|---|---|---|---|---|---|---|---|
| Year | Date | Market Value | Taxable Market Value | Gross Assessed | Exemption | Net Assessed | ||
|
2026 |
02/23/2026 |
183,000 |
97,760 |
10,753 |
2,000 |
8,753 |
||
|
2025 |
02/14/2025 |
171,000 |
97,760 |
10,753 |
2,000 |
8,753 |
||
|
2024 |
02/13/2024 |
165,000 |
97,760 |
10,753 |
2,000 |
8,753 |
||
|
2023 |
02/14/2023 |
149,000 |
94,913 |
10,440 |
2,000 |
8,440 |
||
|
2022 |
03/15/2022 |
122,500 |
92,149 |
10,135 |
1,000 |
9,135 |
||
| Property Building Permit History | |||||||||||
|---|---|---|---|---|---|---|---|---|---|---|---|
| Issued | Permit # | Provided by | Bldg # | Description | Est Construction Cost | Status | |||||
| No Building Permit records returned. | |||||||||||
| Click button on building number to access detailed information: | ||||||
|---|---|---|---|---|---|---|
| Bldg # | Vacant/Improved Land | Bldg Description | Year Built | SqFt | # Stories | |
|
1 |
Improved |
2 Story |
1947 |
1,632 |
2 Stories |
|