|
|
|
| Larry Stein Oklahoma County Assessor (405) 713-1200 - Public Access System |
|
|
|
|
|
|
| Real Property Display - Screen Produced 4/6/2026 6:44:14 PM | ||||
|---|---|---|---|---|
| Account: R059656000 | Type: Residential | Location: |
2458 NW 37TH PL |
|
| Building Name/Occupant: |
|
OKLAHOMA CITY |
||
| Owner Name 1: | FRAZIER JUSTIN |
Parcel PIN#: |
2671-05-965-6000 |
|
| Owner Name 2: | 1/4 section #: |
2671 |
||
| Owner Name 3: | Parent Acct: |
|
||
| Billing Address: | 2458 NW 37TH PL | Tax District: |
|
|
| City, State, Zip | OKLAHOMA CITY, OK 73112-7507 | School System: |
Oklahoma City #89 |
|
|
Country: (If noted) |
Land Size: |
0.7073 Acres |
||
|
Land Value: 38,895 |
|
|||
|
Sect 18-T12N-R3W Qtr SW |
CUBINE SUB ADDITION
Block
006
Lot
000
|
|||
| Full Legal Description: CUBINE SUB ADDITION 006 000 ALL LOT 8 & PT LOT 7 BEG SW/C LOT 7 E118.8FT TO SE/C BLK 6 N90.2FT NWLY 158.23FT WLY ON A CURVE 25.15FT TO NW/C LOT 8 SELY ALONG E LINE LOT 8 173.72FT TO BEG |
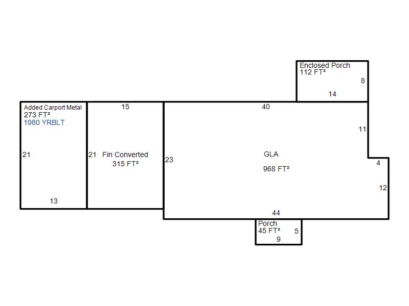
| Photo & Sketch (if available) | Comp Sales (ordered by relevancy) |
|
||||||||||||||||||
|
||||||||||||||||||||
| Value History (*The County Treasurer 405-713-1300 posts & collects actual tax amounts. Contact information HERE) | |||||||||||||
|---|---|---|---|---|---|---|---|---|---|---|---|---|---|
| Year | Market Value | Taxable Mkt Value | Gross Assessed | Exemption | Net Assessed | Millage | Est. Tax | Tax Savings | |||||
|
2026 |
151,500 |
77,205 |
8,492 |
1,000 |
7,492 |
122.90 |
$921 |
$1,127 |
|||||
|
2025 |
143,500 |
74,957 |
8,245 |
1,000 |
7,245 |
122.90 |
$890 |
$1,050 |
|||||
|
2024 |
136,000 |
72,774 |
8,005 |
1,000 |
7,005 |
123.89 |
$868 |
$986 |
|||||
|
2023 |
124,000 |
70,655 |
7,771 |
1,000 |
6,771 |
122.82 |
$832 |
$844 |
|||||
|
2022 |
102,000 |
68,598 |
7,544 |
1,000 |
6,544 |
117.63 |
$770 |
$550 |
|||||
| Property Account Status/Adjustments/Exemptions | ||
|---|---|---|
| Account # | Exemption Description | Amount |
|
R059656000 |
3% Cap Homestead |
0 |
|
R059656000 |
Homestead |
1,000 |
| Property Deed Transaction History (Recorded in the County Clerk's Office) | ||||||||||
|---|---|---|---|---|---|---|---|---|---|---|
| Date | Type | Book | Page | Price | Grantor | Grantee | ||||
|
11/4/2002 |
|
Deeds |
$0 |
FRAZIER JUSTIN FRAZIER JERRY |
FRAZIER JUSTIN |
|||||
|
5/11/1995 |
|
Historical |
$0 |
FRAZIER JUSTIN |
FRAZIER JUSTIN |
|||||
|
4/13/1995 |
|
Historical |
$0 |
FRAZIER JASON |
FRAZIER JUSTIN |
|||||
|
9/5/1990 |
|
Historical |
$0 |
SECRETARY OF HOUSING |
FRAZIER JASON |
|||||
|
6/11/1990 |
|
Historical |
$0 |
SPRINGER CHARLES |
SECRETARY OF HOUSING |
|||||
| Last Mailed Notice of Value (N.O.V.) Information/History | ||||||||
|---|---|---|---|---|---|---|---|---|
| Year | Date | Market Value | Taxable Market Value | Gross Assessed | Exemption | Net Assessed | ||
|
2026 |
02/23/2026 |
151,500 |
77,205 |
8,492 |
1,000 |
7,492 |
||
|
2025 |
02/14/2025 |
143,500 |
74,957 |
8,245 |
1,000 |
7,245 |
||
|
2024 |
02/13/2024 |
136,000 |
72,774 |
8,005 |
1,000 |
7,005 |
||
|
2023 |
02/14/2023 |
124,000 |
70,655 |
7,771 |
1,000 |
6,771 |
||
|
2022 |
03/15/2022 |
102,000 |
68,598 |
7,544 |
1,000 |
6,544 |
||
| Property Building Permit History | |||||||||||
|---|---|---|---|---|---|---|---|---|---|---|---|
| Issued | Permit # | Provided by | Bldg # | Description | Est Construction Cost | Status | |||||
| No Building Permit records returned. | |||||||||||
| Click button on building number to access detailed information: | ||||||
|---|---|---|---|---|---|---|
| Bldg # | Vacant/Improved Land | Bldg Description | Year Built | SqFt | # Stories | |
|
1 |
Improved |
Ranch 1 Story |
1948 |
968 |
1 Stories |
|