|
|
|
| Larry Stein Oklahoma County Assessor (405) 713-1200 - Public Access System |
|
|
|
|
|
|
| Real Property Display - Screen Produced 4/7/2026 12:28:33 AM | ||||
|---|---|---|---|---|
| Account: R089821100 | Type: Residential | Location: |
2715 NW 36TH TER |
|
| Building Name/Occupant: |
|
OKLAHOMA CITY |
||
| Owner Name 1: | JONES PROPERTIES LLC |
Parcel PIN#: |
2671-08-982-1100 |
|
| Owner Name 2: | C/O VERNON D & F GAYLE JONES | 1/4 section #: |
2671 |
|
| Owner Name 3: | Parent Acct: |
|
||
| Billing Address: | 3901 91ST AVE NE | Tax District: |
|
|
| City, State, Zip | NORMAN, OK 73026-6712 | School System: |
Oklahoma City #89 |
|
|
Country: (If noted) |
Land Size: |
0.1515 Acres |
||
|
Land Value: 25,740 |
|
|||
|
Sect 18-T12N-R3W Qtr SW |
CUBINE ADDITION BLKS 7 & 8
Block
007
Lot
011
|
|||
| Full Legal Description: CUBINE ADDITION BLKS 7 & 8 007 011 |
| Photo & Sketch (if available) | Comp Sales (ordered by relevancy) |
|
||||||||||||||||||
|
||||||||||||||||||||
| Value History (*The County Treasurer 405-713-1300 posts & collects actual tax amounts. Contact information HERE) | |||||||||||||
|---|---|---|---|---|---|---|---|---|---|---|---|---|---|
| Year | Market Value | Taxable Mkt Value | Gross Assessed | Exemption | Net Assessed | Millage | Est. Tax | Tax Savings | |||||
|
2026 |
131,000 |
94,555 |
10,400 |
0 |
10,400 |
122.90 |
$1,278 |
$493 |
|||||
|
2025 |
120,500 |
90,053 |
9,905 |
0 |
9,905 |
122.90 |
$1,217 |
$412 |
|||||
|
2024 |
114,500 |
85,765 |
9,433 |
0 |
9,433 |
123.89 |
$1,169 |
$392 |
|||||
|
2023 |
108,500 |
81,681 |
8,984 |
0 |
8,984 |
122.82 |
$1,104 |
$362 |
|||||
|
2022 |
87,500 |
77,792 |
8,556 |
0 |
8,556 |
117.63 |
$1,007 |
$126 |
|||||
| Property Account Status/Adjustments/Exemptions | ||
|---|---|---|
| Account # | Exemption Description | Amount |
|
R089821100 |
5% Capped Account |
0 |
| Property Deed Transaction History (Recorded in the County Clerk's Office) | |||||||
|---|---|---|---|---|---|---|---|
| Date | Type | Book | Page | Price | Grantor | Grantee | |
|
6/11/1997 |
|
Historical |
$0 |
JONES VERNON D & FLOYCE G |
JONES PROPERTIES LLC |
||
|
10/23/1995 |
|
Historical |
$12,500 |
CRUMBY VIRGINIA LEE |
JONES VERNON D & F GAYLE |
||
|
6/1/1983 |
|
Historical |
$0 |
|
CRUMBY VIRGINIA LEE |
||
| Last Mailed Notice of Value (N.O.V.) Information/History | ||||||||
|---|---|---|---|---|---|---|---|---|
| Year | Date | Market Value | Taxable Market Value | Gross Assessed | Exemption | Net Assessed | ||
|
2026 |
02/23/2026 |
131,000 |
94,555 |
10,400 |
0 |
10,400 |
||
|
2025 |
02/14/2025 |
120,500 |
90,053 |
9,905 |
0 |
9,905 |
||
|
2024 |
02/13/2024 |
114,500 |
85,765 |
9,433 |
0 |
9,433 |
||
|
2023 |
02/14/2023 |
108,500 |
81,681 |
8,984 |
0 |
8,984 |
||
|
2022 |
03/15/2022 |
87,500 |
77,792 |
8,556 |
0 |
8,556 |
||
| Property Building Permit History | |||||||||||
|---|---|---|---|---|---|---|---|---|---|---|---|
| Issued | Permit # | Provided by | Bldg # | Description | Est Construction Cost | Status | |||||
| No Building Permit records returned. | |||||||||||
| Click button on building number to access detailed information: | ||||||
|---|---|---|---|---|---|---|
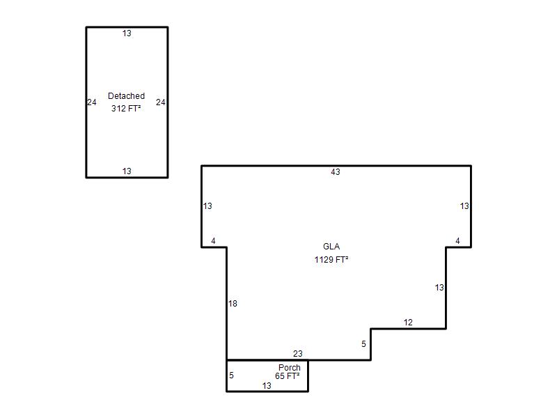
| Bldg # | Vacant/Improved Land | Bldg Description | Year Built | SqFt | # Stories | |
|
1 |
Improved |
Ranch 1 Story |
1950 |
1,129 |
1 Stories |
|