|
|
|
| Larry Stein Oklahoma County Assessor (405) 713-1200 - Public Access System |
|
|
|
|
|
|
| Real Property Display - Screen Produced 4/6/2026 6:46:04 PM | ||||
|---|---|---|---|---|
| Account: R089832850 | Type: Residential | Location: |
2608 NW 37TH ST |
|
| Building Name/Occupant: |
|
OKLAHOMA CITY |
||
| Owner Name 1: | KING DUSTIN |
Parcel PIN#: |
2671-08-983-2850 |
|
| Owner Name 2: | 1/4 section #: |
2671 |
||
| Owner Name 3: | Parent Acct: |
|
||
| Billing Address: | 807 NW 9TH ST | Tax District: |
|
|
| City, State, Zip | OKLAHOMA CITY, OK 73106-7211 | School System: |
Oklahoma City #89 |
|
|
Country: (If noted) |
Land Size: |
0.1524 Acres |
||
|
Land Value: 25,896 |
|
|||
|
Sect 18-T12N-R3W Qtr SW |
CUBINE SUB ADDITION
Block
003
Lot
002
|
|||
| Full Legal Description: CUBINE SUB ADDITION 003 002 |
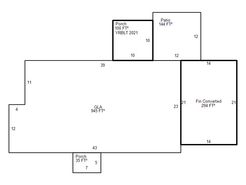
| Photo & Sketch (if available) | Comp Sales (ordered by relevancy) |
|
||||||||||||||||||
|
||||||||||||||||||||
| Value History (*The County Treasurer 405-713-1300 posts & collects actual tax amounts. Contact information HERE) | |||||||||||||
|---|---|---|---|---|---|---|---|---|---|---|---|---|---|
| Year | Market Value | Taxable Mkt Value | Gross Assessed | Exemption | Net Assessed | Millage | Est. Tax | Tax Savings | |||||
|
2026 |
218,000 |
218,000 |
23,980 |
0 |
23,980 |
122.90 |
$2,947 |
$0 |
|||||
|
2025 |
211,500 |
211,500 |
23,265 |
0 |
23,265 |
122.90 |
$2,859 |
$0 |
|||||
|
2024 |
202,000 |
202,000 |
22,220 |
0 |
22,220 |
123.89 |
$2,753 |
$0 |
|||||
|
2023 |
20,718 |
20,718 |
2,278 |
0 |
2,278 |
122.82 |
$280 |
$0 |
|||||
|
2022 |
20,718 |
20,718 |
2,278 |
0 |
2,278 |
117.63 |
$268 |
$0 |
|||||
| Property Account Status/Adjustments/Exemptions | ||
|---|---|---|
| Account # | Exemption Description | Amount |
|
R089832850 |
5% Capped Account |
0 |
| Property Deed Transaction History (Recorded in the County Clerk's Office) | ||||||||||
|---|---|---|---|---|---|---|---|---|---|---|
| Date | Type | Book | Page | Price | Grantor | Grantee | ||||
|
4/19/2023 |
|
Deeds |
$210,000 |
HERNANDEZ ADELMO & VERONICA |
KING DUSTIN |
|||||
|
4/18/2023 |
|
Hmstd Off & |
$0 |
HERNANDEZ CASA INVESTMENT LLC |
HERNANDEZ ADELMO & VERONICA |
|||||
|
8/19/2022 |
|
Deeds |
$30,000 |
RAMOS CARMEN |
HERNANDEZ CASA INVESTMENT LLC |
|||||
|
1/5/2021 |
|
Deeds |
$20,000 |
BARNES DARRELL R |
RAMOS CARMEN |
|||||
|
10/23/1995 |
|
Historical |
$36,000 |
PENNINGTON SHANE ALAN |
BARNES DARRELL R |
|||||
| Last Mailed Notice of Value (N.O.V.) Information/History | ||||||||
|---|---|---|---|---|---|---|---|---|
| Year | Date | Market Value | Taxable Market Value | Gross Assessed | Exemption | Net Assessed | ||
|
2026 |
02/23/2026 |
218,000 |
218,000 |
23,980 |
0 |
23,980 |
||
|
2025 |
02/14/2025 |
211,500 |
211,500 |
23,265 |
0 |
23,265 |
||
|
2024 |
02/13/2024 |
202,000 |
202,000 |
22,220 |
0 |
22,220 |
||
|
2022 |
03/15/2022 |
20,718 |
20,718 |
2,278 |
0 |
2,278 |
||
|
2020 |
03/10/2020 |
66,500 |
63,945 |
7,033 |
0 |
7,033 |
||
| Property Building Permit History | ||||||
|---|---|---|---|---|---|---|
| Issued | Permit # | Provided by | Bldg # | Description | Est Construction Cost | Status |
|
11/15/2022 |
BLDR-2022-06851 |
|
1 |
Fire Remodel |
60,000 |
Inactive |
|
2/8/2021 |
|
|
1 |
Fire Remodel |
|
Inactive |
|
11/5/2020 |
20065370000 |
|
1 |
Burn - Trip |
35,000 |
Inactive |
| Click button on building number to access detailed information: | ||||||
|---|---|---|---|---|---|---|
| Bldg # | Vacant/Improved Land | Bldg Description | Year Built | SqFt | # Stories | |
|
1 |
Improved |
Ranch 1 Story |
1947 |
945 |
1 Stories |
|