|
|
|
| Larry Stein Oklahoma County Assessor (405) 713-1200 - Public Access System |
|
|
|
|
|
|
| Real Property Display - Screen Produced 4/6/2026 6:46:05 PM | ||||
|---|---|---|---|---|
| Account: R089834800 | Type: Residential | Location: |
2512 NW 37TH ST |
|
| Building Name/Occupant: |
|
OKLAHOMA CITY |
||
| Owner Name 1: | HARRIS CLAYTON D |
Parcel PIN#: |
2671-08-983-4800 |
|
| Owner Name 2: | 1/4 section #: |
2671 |
||
| Owner Name 3: | Parent Acct: |
|
||
| Billing Address: | 2512 NW 37TH ST | Tax District: |
|
|
| City, State, Zip | OKLAHOMA CITY, OK 73112-7504 | School System: |
Oklahoma City #89 |
|
|
Country: (If noted) |
Land Size: |
0.2300 Acres |
||
|
Land Value: 35,170 |
|
|||
|
Sect 18-T12N-R3W Qtr SW |
CUBINE SUB ADDITION
Block
004
Lot
004
|
|||
| Full Legal Description: CUBINE SUB ADDITION 004 004 |
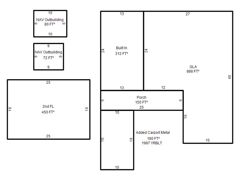
| Photo & Sketch (if available) | Comp Sales (ordered by relevancy) |
|
||||||||||||||||||
|
||||||||||||||||||||
| Value History (*The County Treasurer 405-713-1300 posts & collects actual tax amounts. Contact information HERE) | |||||||||||||
|---|---|---|---|---|---|---|---|---|---|---|---|---|---|
| Year | Market Value | Taxable Mkt Value | Gross Assessed | Exemption | Net Assessed | Millage | Est. Tax | Tax Savings | |||||
|
2026 |
177,000 |
149,219 |
16,413 |
0 |
16,413 |
122.90 |
$2,017 |
$376 |
|||||
|
2025 |
170,000 |
142,114 |
15,632 |
0 |
15,632 |
122.90 |
$1,921 |
$377 |
|||||
|
2024 |
164,000 |
135,347 |
14,887 |
0 |
14,887 |
123.89 |
$1,844 |
$390 |
|||||
|
2023 |
151,000 |
128,902 |
14,179 |
0 |
14,179 |
122.82 |
$1,741 |
$299 |
|||||
|
2022 |
128,000 |
122,764 |
13,503 |
0 |
13,503 |
117.63 |
$1,588 |
$68 |
|||||
| Property Account Status/Adjustments/Exemptions | ||
|---|---|---|
| Account # | Exemption Description | Amount |
|
R089834800 |
5% Capped Account |
0 |
| Property Deed Transaction History (Recorded in the County Clerk's Office) | |||||||
|---|---|---|---|---|---|---|---|
| Date | Type | Book | Page | Price | Grantor | Grantee | |
|
6/1/2016 |
|
Deeds |
$94,000 |
BRUCE MULFORD PROPERTIES LLC |
HARRIS CLAYTON D |
||
|
9/19/2013 |
|
Deeds |
$30,000 |
HALE MARY LOUISE |
BRUCE MULFORD PROPERTIES LLC |
||
|
10/31/1995 |
|
Historical |
$0 |
HALE ELDEN G & MARY L |
HALE MARY LOUISE |
||
|
8/1/1978 |
|
Historical |
$0 |
|
HALE ELDEN G & MARY L |
||
| Last Mailed Notice of Value (N.O.V.) Information/History | ||||||||
|---|---|---|---|---|---|---|---|---|
| Year | Date | Market Value | Taxable Market Value | Gross Assessed | Exemption | Net Assessed | ||
|
2026 |
02/23/2026 |
177,000 |
149,219 |
16,413 |
0 |
16,413 |
||
|
2025 |
02/14/2025 |
170,000 |
142,114 |
15,632 |
0 |
15,632 |
||
|
2024 |
02/13/2024 |
164,000 |
135,347 |
14,887 |
0 |
14,887 |
||
|
2023 |
02/14/2023 |
151,000 |
128,902 |
14,179 |
0 |
14,179 |
||
|
2022 |
03/15/2022 |
128,000 |
122,764 |
13,503 |
0 |
13,503 |
||
| Property Building Permit History | |||||||||||
|---|---|---|---|---|---|---|---|---|---|---|---|
| Issued | Permit # | Provided by | Bldg # | Description | Est Construction Cost | Status | |||||
| No Building Permit records returned. | |||||||||||
| Click button on building number to access detailed information: | ||||||
|---|---|---|---|---|---|---|
| Bldg # | Vacant/Improved Land | Bldg Description | Year Built | SqFt | # Stories | |
|
1 |
Improved |
1½ Story Fin |
1947 |
1,338 |
1.5 Stories |
|