|
|
|
| Larry Stein Oklahoma County Assessor (405) 713-1200 - Public Access System |
|
|
|
|
|
|
| Real Property Display - Screen Produced 4/6/2026 6:45:22 PM | ||||
|---|---|---|---|---|
| Account: R089835975 | Type: Residential | Location: |
3700 N LINN AVE |
|
| Building Name/Occupant: |
|
OKLAHOMA CITY |
||
| Owner Name 1: | DAVIS JANET M |
Parcel PIN#: |
2671-08-983-5975 |
|
| Owner Name 2: | C/O LOGAN WALKER | 1/4 section #: |
2671 |
|
| Owner Name 3: | Parent Acct: |
|
||
| Billing Address: | 3700 N LINN AVE | Tax District: |
|
|
| City, State, Zip | OKLAHOMA CITY, OK 73112-7509 | School System: |
Oklahoma City #89 |
|
|
Country: (If noted) |
Land Size: |
0.3003 Acres |
||
|
Land Value: 35,006 |
|
|||
|
Sect 18-T12N-R3W Qtr SW |
CUBINE SUB ADDITION
Block
004
Lot
015
|
|||
| Full Legal Description: CUBINE SUB ADDITION 004 015 SUBJ TO EASEMENTS OF RECORD |
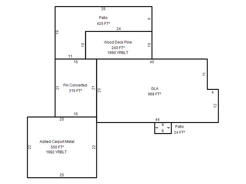
| Photo & Sketch (if available) | Comp Sales (ordered by relevancy) |
|
||||||||||||||||||
|
||||||||||||||||||||
| Value History (*The County Treasurer 405-713-1300 posts & collects actual tax amounts. Contact information HERE) | |||||||||||||
|---|---|---|---|---|---|---|---|---|---|---|---|---|---|
| Year | Market Value | Taxable Mkt Value | Gross Assessed | Exemption | Net Assessed | Millage | Est. Tax | Tax Savings | |||||
|
2026 |
141,500 |
101,203 |
11,132 |
0 |
11,132 |
122.90 |
$1,368 |
$545 |
|||||
|
2025 |
132,500 |
96,384 |
10,601 |
0 |
10,601 |
122.90 |
$1,303 |
$488 |
|||||
|
2024 |
125,000 |
91,795 |
10,096 |
0 |
10,096 |
123.89 |
$1,251 |
$453 |
|||||
|
2023 |
114,000 |
87,424 |
9,615 |
0 |
9,615 |
122.82 |
$1,181 |
$359 |
|||||
|
2022 |
94,500 |
83,261 |
9,158 |
0 |
9,158 |
117.63 |
$1,077 |
$145 |
|||||
| Property Account Status/Adjustments/Exemptions | ||
|---|---|---|
| Account # | Exemption Description | Amount |
|
R089835975 |
5% Capped Account |
0 |
| Property Deed Transaction History (Recorded in the County Clerk's Office) | |||||||
|---|---|---|---|---|---|---|---|
| Date | Type | Book | Page | Price | Grantor | Grantee | |
|
3/3/2004 |
|
Deeds |
$65,000 |
THOMAS STIRLING TRS ETAL THOMAS STIRLING REV LIV TRUST |
DAVIS JANET M |
||
|
7/17/1997 |
|
Historical |
$0 |
THOMAS STIRLING L |
THOMAS STIRLING TRS ETAL |
||
|
5/1/1983 |
|
Historical |
$0 |
|
THOMAS STIRLING L |
||
| Last Mailed Notice of Value (N.O.V.) Information/History | ||||||||
|---|---|---|---|---|---|---|---|---|
| Year | Date | Market Value | Taxable Market Value | Gross Assessed | Exemption | Net Assessed | ||
|
2026 |
02/23/2026 |
141,500 |
101,203 |
11,132 |
0 |
11,132 |
||
|
2025 |
02/14/2025 |
132,500 |
96,384 |
10,601 |
0 |
10,601 |
||
|
2024 |
02/13/2024 |
125,000 |
91,795 |
10,096 |
0 |
10,096 |
||
|
2023 |
02/14/2023 |
114,000 |
87,424 |
9,615 |
0 |
9,615 |
||
|
2022 |
03/15/2022 |
94,500 |
83,261 |
9,158 |
0 |
9,158 |
||
| Property Building Permit History | |||||||||||
|---|---|---|---|---|---|---|---|---|---|---|---|
| Issued | Permit # | Provided by | Bldg # | Description | Est Construction Cost | Status | |||||
| No Building Permit records returned. | |||||||||||
| Click button on building number to access detailed information: | ||||||
|---|---|---|---|---|---|---|
| Bldg # | Vacant/Improved Land | Bldg Description | Year Built | SqFt | # Stories | |
|
1 |
Improved |
Ranch 1 Story |
1948 |
968 |
1 Stories |
|