|
|
|
| Larry Stein Oklahoma County Assessor (405) 713-1200 - Public Access System |
|
|
|
|
|
|
| Real Property Display - Screen Produced 4/6/2026 6:44:14 PM | ||||
|---|---|---|---|---|
| Account: R089835980 | Type: Residential | Location: |
2537 NW 36TH ST |
|
| Building Name/Occupant: |
|
OKLAHOMA CITY |
||
| Owner Name 1: | TEMPLER MELANIE |
Parcel PIN#: |
2671-08-983-5980 |
|
| Owner Name 2: | CYPERT LOYD | 1/4 section #: |
2671 |
|
| Owner Name 3: | Parent Acct: |
|
||
| Billing Address: | 2537 NW 36TH ST | Tax District: |
|
|
| City, State, Zip | OKLAHOMA CITY, OK 73112-7616 | School System: |
Oklahoma City #89 |
|
|
Country: (If noted) |
Land Size: |
0.1687 Acres |
||
|
Land Value: 28,665 |
|
|||
|
Sect 18-T12N-R3W Qtr SW |
CUBINE SUB ADDITION
Block
005
Lot
001
|
|||
| Full Legal Description: CUBINE SUB ADDITION 005 001 |
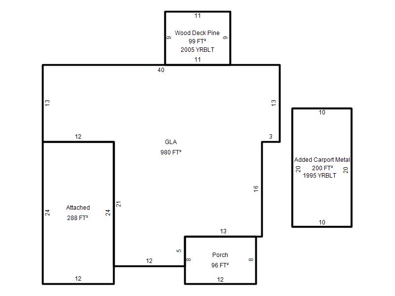
| Photo & Sketch (if available) | Comp Sales (ordered by relevancy) |
|
||||||||||||||||||
|
||||||||||||||||||||
| Value History (*The County Treasurer 405-713-1300 posts & collects actual tax amounts. Contact information HERE) | |||||||||||||
|---|---|---|---|---|---|---|---|---|---|---|---|---|---|
| Year | Market Value | Taxable Mkt Value | Gross Assessed | Exemption | Net Assessed | Millage | Est. Tax | Tax Savings | |||||
|
2026 |
131,500 |
58,471 |
6,431 |
1,000 |
5,431 |
122.90 |
$668 |
$1,110 |
|||||
|
2025 |
124,000 |
58,471 |
6,431 |
1,000 |
5,431 |
122.90 |
$668 |
$1,009 |
|||||
|
2024 |
117,500 |
58,471 |
6,431 |
1,000 |
5,431 |
123.89 |
$673 |
$928 |
|||||
|
2023 |
107,000 |
58,471 |
6,431 |
1,000 |
5,431 |
122.82 |
$667 |
$778 |
|||||
|
2022 |
88,000 |
58,471 |
6,431 |
1,000 |
5,431 |
117.63 |
$639 |
$500 |
|||||
| Property Account Status/Adjustments/Exemptions | ||
|---|---|---|
| Account # | Exemption Description | Amount |
|
R089835980 |
Freeze Senior Valuation |
0 |
|
R089835980 |
3% Cap Homestead |
0 |
|
R089835980 |
Homestead |
1,000 |
| Property Deed Transaction History (Recorded in the County Clerk's Office) | |||||||
|---|---|---|---|---|---|---|---|
| Date | Type | Book | Page | Price | Grantor | Grantee | |
|
2/10/2016 |
|
Deeds |
$0 |
TEMPLER MELANIE |
TEMPLER MELANIE |
||
|
11/16/2000 |
|
Deeds |
$48,000 |
PORTER DORIS S |
TEMPLER MELANIE |
||
|
5/26/1995 |
|
Historical |
$37,000 |
HALL GREGORY A & LEISA K |
PORTER DORIS S |
||
|
2/4/1992 |
|
Historical |
$22,500 |
ASKINS TERR L & EDITH C |
HALL GREGORY A & LEISA K |
||
|
5/1/1978 |
|
Historical |
$0 |
|
ASKINS TERR L & EDITH C |
||
| Last Mailed Notice of Value (N.O.V.) Information/History | ||||||||
|---|---|---|---|---|---|---|---|---|
| Year | Date | Market Value | Taxable Market Value | Gross Assessed | Exemption | Net Assessed | ||
|
2026 |
02/23/2026 |
131,500 |
58,471 |
6,431 |
1,000 |
5,431 |
||
|
2025 |
02/14/2025 |
124,000 |
58,471 |
6,431 |
1,000 |
5,431 |
||
|
2024 |
02/13/2024 |
117,500 |
58,471 |
6,431 |
1,000 |
5,431 |
||
|
2023 |
02/14/2023 |
107,000 |
58,471 |
6,431 |
1,000 |
5,431 |
||
|
2022 |
03/15/2022 |
88,000 |
58,471 |
6,431 |
1,000 |
5,431 |
||
| Property Building Permit History | |||||||||||
|---|---|---|---|---|---|---|---|---|---|---|---|
| Issued | Permit # | Provided by | Bldg # | Description | Est Construction Cost | Status | |||||
| No Building Permit records returned. | |||||||||||
| Click button on building number to access detailed information: | ||||||
|---|---|---|---|---|---|---|
| Bldg # | Vacant/Improved Land | Bldg Description | Year Built | SqFt | # Stories | |
|
1 |
Improved |
Ranch 1 Story |
1948 |
980 |
1 Stories |
|