|
|
|
| Larry Stein Oklahoma County Assessor (405) 713-1200 - Public Access System |
|
|
|
|
|
|
| Real Property Display - Screen Produced 4/10/2026 4:02:13 AM | ||||
|---|---|---|---|---|
| Account: R067180400 | Type: Residential | Location: |
2500 NW 24TH ST |
|
| Building Name/Occupant: |
|
OKLAHOMA CITY |
||
| Owner Name 1: | MCCOY ALEXANDRA |
Parcel PIN#: |
2675-06-718-0400 |
|
| Owner Name 2: | 1/4 section #: |
2675 |
||
| Owner Name 3: | Parent Acct: |
|
||
| Billing Address: | 2500 NW 24TH ST | Tax District: |
|
|
| City, State, Zip | OKLAHOMA CITY, OK 73107-2204 | School System: |
Oklahoma City #89 |
|
|
Country: (If noted) |
Land Size: |
0.1258 Acres |
||
|
Land Value: 28,222 |
|
|||
|
Sect 19-T12N-R3W Qtr SW |
LAS VEGAS HEIGHTS
Block
001
Lot
000
|
|||
| Full Legal Description: LAS VEGAS HEIGHTS 001 000 LOT 1 & E15FT OF LOT 2 |
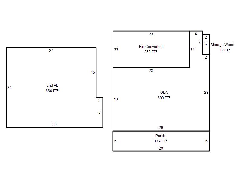
| Photo & Sketch (if available) | Comp Sales (ordered by relevancy) |
|
||||||||||||||||||
|
||||||||||||||||||||
| Value History (*The County Treasurer 405-713-1300 posts & collects actual tax amounts. Contact information HERE) | |||||||||||||
|---|---|---|---|---|---|---|---|---|---|---|---|---|---|
| Year | Market Value | Taxable Mkt Value | Gross Assessed | Exemption | Net Assessed | Millage | Est. Tax | Tax Savings | |||||
| No PropertyValuation records returned. | |||||||||||||
| Property Account Status/Adjustments/Exemptions | ||
|---|---|---|
| Account # | Exemption Description | Amount |
|
R067180400 |
3% Cap Homestead |
0 |
|
R067180400 |
Homestead |
1,000 |
| Property Deed Transaction History (Recorded in the County Clerk's Office) | ||||||||||
|---|---|---|---|---|---|---|---|---|---|---|
| Date | Type | Book | Page | Price | Grantor | Grantee | ||||
|
5/1/2024 |
|
Deeds |
$189,000 |
HOME AT LAST INC |
MCCOY ALEXANDRA |
|||||
|
11/9/2011 |
|
Deeds |
$58,000 |
BANK OF NEW YORK MELLON |
HOME AT LAST INC |
|||||
|
6/16/2011 |
|
Hmstd Off & |
$0 |
LUCAS EDYE A |
BANK OF NEW YORK MELLON |
|||||
|
2/26/2007 |
|
Hmstd Off & |
$0 |
AHMADI EDYE A |
LUCAS EDYE A |
|||||
|
5/27/2004 |
|
Deeds |
$0 |
AHMADI OMID |
AHMADI EDYE ANN |
|||||
| Last Mailed Notice of Value (N.O.V.) Information/History | ||||||||
|---|---|---|---|---|---|---|---|---|
| Year | Date | Market Value | Taxable Market Value | Gross Assessed | Exemption | Net Assessed | ||
| No Notice of Value N.O.V. records returned. | ||||||||
| Property Building Permit History | |||||||||||
|---|---|---|---|---|---|---|---|---|---|---|---|
| Issued | Permit # | Provided by | Bldg # | Description | Est Construction Cost | Status | |||||
| No Building Permit records returned. | |||||||||||
| Click button on building number to access detailed information: | ||||||
|---|---|---|---|---|---|---|
| Bldg # | Vacant/Improved Land | Bldg Description | Year Built | SqFt | # Stories | |
|
1 |
Improved |
2 Story |
1937 |
1,269 |
2 Stories |
|