|
|
|
| Larry Stein Oklahoma County Assessor (405) 713-1200 - Public Access System |
|
|
|
|
|
|
| Real Property Display - Screen Produced 4/9/2026 2:02:37 PM | ||||
|---|---|---|---|---|
| Account: R053101100 | Type: Residential | Location: |
3227 WINTER DR |
|
| Building Name/Occupant: |
|
OKLAHOMA CITY |
||
| Owner Name 1: | WHITE WILLIAM GIBSON JR |
Parcel PIN#: |
2676-05-310-1100 |
|
| Owner Name 2: | WHITE SUSAN ARN | 1/4 section #: |
2676 |
|
| Owner Name 3: | Parent Acct: |
|
||
| Billing Address: | PO BOX 2474 | Tax District: |
|
|
| City, State, Zip | OKLAHOMA CITY, OK 73101-2474 | School System: |
Oklahoma City #89 |
|
|
Country: (If noted) |
Land Size: |
0.2686 Acres |
||
|
Land Value: 64,350 |
|
|||
|
Sect 19-T12N-R3W Qtr NW |
STEVE PENNINGTON 2ND
Block
001
Lot
000
|
|||
| Full Legal Description: STEVE PENNINGTON 2ND 001 000 LOT 23 & WLY 20FT LOT 24 |
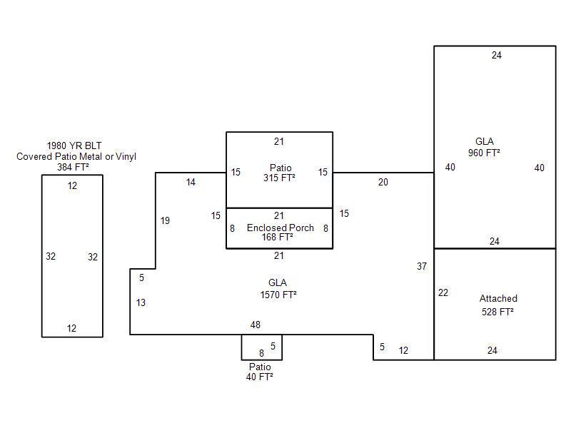
| Photo & Sketch (if available) | Comp Sales (ordered by relevancy) |
|
||||||||||||||||||
|
||||||||||||||||||||
| Value History (*The County Treasurer 405-713-1300 posts & collects actual tax amounts. Contact information HERE) | |||||||||||||
|---|---|---|---|---|---|---|---|---|---|---|---|---|---|
| Year | Market Value | Taxable Mkt Value | Gross Assessed | Exemption | Net Assessed | Millage | Est. Tax | Tax Savings | |||||
|
2026 |
421,000 |
407,375 |
44,810 |
0 |
44,810 |
122.90 |
$5,507 |
$184 |
|||||
|
2025 |
418,000 |
387,977 |
42,677 |
0 |
42,677 |
122.90 |
$5,245 |
$406 |
|||||
|
2024 |
401,000 |
369,502 |
40,644 |
0 |
40,644 |
123.89 |
$5,036 |
$429 |
|||||
|
2023 |
187,500 |
169,050 |
18,595 |
0 |
18,595 |
122.82 |
$2,284 |
$249 |
|||||
|
2022 |
161,000 |
161,000 |
17,710 |
0 |
17,710 |
117.63 |
$2,083 |
$0 |
|||||
| Property Account Status/Adjustments/Exemptions | ||
|---|---|---|
| Account # | Exemption Description | Amount |
|
R053101100 |
5% Capped Account |
0 |
| Property Deed Transaction History (Recorded in the County Clerk's Office) | |||||||
|---|---|---|---|---|---|---|---|
| Date | Type | Book | Page | Price | Grantor | Grantee | |
|
8/8/2023 |
|
Hmstd Off & |
$0 |
WILLIAM WHITE & ASSOCIATES LLC |
WHITE WILLIAM GIBSON JR |
||
|
5/25/2021 |
|
Deeds |
$157,500 |
GILLEY PAMELA R TRS |
WILLIAM WHITE & ASSOCIATES LLC |
||
|
12/16/2020 |
|
Deeds |
$0 |
MEANS JAMES W TRS |
MEANS JAMES M TRS |
||
|
2/28/2014 |
|
Deeds |
$0 |
MEANS JAMES W |
MEANS JAMES W TRS |
||
|
3/1/1985 |
|
Historical |
$0 |
|
MEANS JAMES W |
||
| Last Mailed Notice of Value (N.O.V.) Information/History | ||||||||
|---|---|---|---|---|---|---|---|---|
| Year | Date | Market Value | Taxable Market Value | Gross Assessed | Exemption | Net Assessed | ||
|
2026 |
02/23/2026 |
421,000 |
407,375 |
44,810 |
0 |
44,810 |
||
|
2025 |
02/14/2025 |
418,000 |
387,977 |
42,677 |
0 |
42,677 |
||
|
2024 |
03/01/2024 |
401,000 |
369,502 |
40,644 |
0 |
40,644 |
||
|
2023 |
02/14/2023 |
187,500 |
169,050 |
18,595 |
0 |
18,595 |
||
|
2022 |
03/15/2022 |
161,000 |
161,000 |
17,710 |
0 |
17,710 |
||
| Property Building Permit History | ||||||
|---|---|---|---|---|---|---|
| Issued | Permit # | Provided by | Bldg # | Description | Est Construction Cost | Status |
|
1/4/2022 |
BLDR-2021-07164 |
|
1 |
Remodeled |
75,000 |
Inactive |
| Click button on building number to access detailed information: | ||||||
|---|---|---|---|---|---|---|
| Bldg # | Vacant/Improved Land | Bldg Description | Year Built | SqFt | # Stories | |
|
1 |
Improved |
Ranch 1 Story |
1950 |
2,530 |
1 Stories |
|