|
|
|
| Larry Stein Oklahoma County Assessor (405) 713-1200 - Public Access System |
|
|
|
|
|
|
| Real Property Display - Screen Produced 4/9/2026 2:02:38 PM | ||||
|---|---|---|---|---|
| Account: R053103200 | Type: Residential | Location: |
3213 VENICE BLVD |
|
| Building Name/Occupant: |
|
OKLAHOMA CITY |
||
| Owner Name 1: | BOLDS DAVID |
Parcel PIN#: |
2676-05-310-3200 |
|
| Owner Name 2: | 1/4 section #: |
2676 |
||
| Owner Name 3: | Parent Acct: |
|
||
| Billing Address: | 3213 VENICE BLVD | Tax District: |
|
|
| City, State, Zip | OKLAHOMA CITY, OK 73112-7440 | School System: |
Oklahoma City #89 |
|
|
Country: (If noted) |
Land Size: |
0.2327 Acres |
||
|
Land Value: 55,748 |
|
|||
|
Sect 19-T12N-R3W Qtr NW |
STEVE PENNINGTON 2ND
Block
006
Lot
013
|
|||
| Full Legal Description: STEVE PENNINGTON 2ND 006 013 |
| Photo & Sketch (if available) | Comp Sales (ordered by relevancy) |
|
||||||||||||||||||
|
||||||||||||||||||||
| Value History (*The County Treasurer 405-713-1300 posts & collects actual tax amounts. Contact information HERE) | |||||||||||||
|---|---|---|---|---|---|---|---|---|---|---|---|---|---|
| Year | Market Value | Taxable Mkt Value | Gross Assessed | Exemption | Net Assessed | Millage | Est. Tax | Tax Savings | |||||
|
2026 |
232,500 |
172,277 |
18,949 |
1,000 |
17,949 |
122.90 |
$2,206 |
$937 |
|||||
|
2025 |
229,000 |
167,260 |
18,397 |
1,000 |
17,397 |
122.90 |
$2,138 |
$958 |
|||||
|
2024 |
223,000 |
162,389 |
17,862 |
1,000 |
16,862 |
123.89 |
$2,089 |
$950 |
|||||
|
2023 |
203,500 |
157,660 |
17,342 |
1,000 |
16,342 |
122.82 |
$2,007 |
$742 |
|||||
|
2022 |
174,500 |
153,068 |
16,837 |
1,000 |
15,837 |
117.63 |
$1,863 |
$395 |
|||||
| Property Account Status/Adjustments/Exemptions | ||
|---|---|---|
| Account # | Exemption Description | Amount |
|
R053103200 |
Homestead |
1,000 |
|
R053103200 |
3% Cap Homestead |
0 |
| Property Deed Transaction History (Recorded in the County Clerk's Office) | |||||||
|---|---|---|---|---|---|---|---|
| Date | Type | Book | Page | Price | Grantor | Grantee | |
|
10/25/1999 |
|
Deeds |
$83,500 |
S & R PROPERTIES INC C/O JIM RUTH |
BOLDS DAVID |
||
|
8/19/1994 |
|
Historical |
$0 |
S & R PROPERTIES LIMITED |
S & R PROPERTIES INC |
||
|
6/16/1989 |
|
Historical |
$60,000 |
WOODSON BETTY FRANCES |
S & R PROPERTIES LIMITED |
||
|
11/30/1988 |
|
Historical |
$0 |
FOWLER MARVIN |
WOODSON BETTY FRANCES |
||
|
8/1/1977 |
|
Historical |
$0 |
|
FOWLER MARVIN |
||
| Last Mailed Notice of Value (N.O.V.) Information/History | ||||||||
|---|---|---|---|---|---|---|---|---|
| Year | Date | Market Value | Taxable Market Value | Gross Assessed | Exemption | Net Assessed | ||
|
2026 |
02/23/2026 |
232,500 |
172,277 |
18,949 |
1,000 |
17,949 |
||
|
2025 |
02/14/2025 |
229,000 |
167,260 |
18,397 |
1,000 |
17,397 |
||
|
2024 |
02/13/2024 |
223,000 |
162,389 |
17,862 |
1,000 |
16,862 |
||
|
2023 |
02/14/2023 |
203,500 |
157,660 |
17,342 |
1,000 |
16,342 |
||
|
2022 |
03/15/2022 |
174,500 |
153,068 |
16,837 |
1,000 |
15,837 |
||
| Property Building Permit History | |||||||||||
|---|---|---|---|---|---|---|---|---|---|---|---|
| Issued | Permit # | Provided by | Bldg # | Description | Est Construction Cost | Status | |||||
| No Building Permit records returned. | |||||||||||
| Click button on building number to access detailed information: | ||||||
|---|---|---|---|---|---|---|
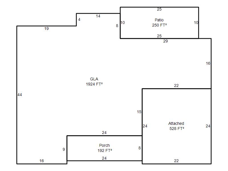
| Bldg # | Vacant/Improved Land | Bldg Description | Year Built | SqFt | # Stories | |
|
1 |
Improved |
Ranch 1 Story |
1948 |
1,924 |
1 Stories |
|