|
|
|
| Larry Stein Oklahoma County Assessor (405) 713-1200 - Public Access System |
|
|
|
|
|
|
| Real Property Display - Screen Produced 4/8/2026 6:04:31 AM | ||||
|---|---|---|---|---|
| Account: R046602240 | Type: Residential | Location: |
213 NW 24TH ST |
|
| Building Name/Occupant: |
|
OKLAHOMA CITY |
||
| Owner Name 1: | THREE STARS IMPORTS LLP |
Parcel PIN#: |
2682-04-660-2240 |
|
| Owner Name 2: | 1/4 section #: |
2682 |
||
| Owner Name 3: | Parent Acct: |
|
||
| Billing Address: | 217 NW 24TH ST | Tax District: |
|
|
| City, State, Zip | OKLAHOMA CITY, OK 73103 | School System: |
Oklahoma City #89 |
|
|
Country: (If noted) |
Land Size: |
0.1607 Acres |
||
|
Land Value: 35,000 |
|
|||
|
Sect 21-T12N-R3W Qtr SE |
JEFFERSON PARK ADD
Block
007
Lot
007
|
|||
| Full Legal Description: JEFFERSON PARK ADD 007 007 |
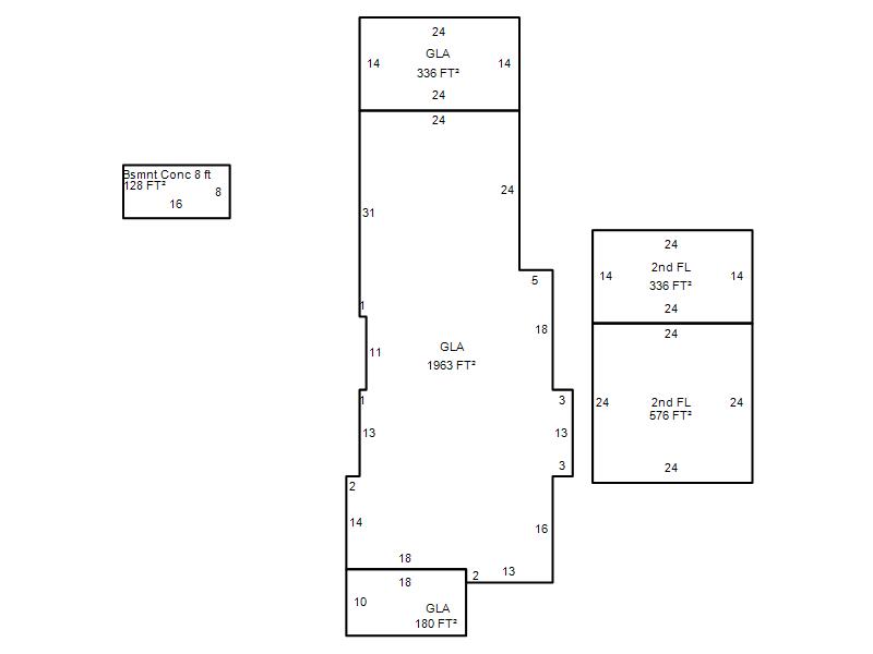
| Photo & Sketch (if available) | Comp Sales (ordered by relevancy) |
|
||||||||||||||||||
|
||||||||||||||||||||
| Value History (*The County Treasurer 405-713-1300 posts & collects actual tax amounts. Contact information HERE) | |||||||||||||
|---|---|---|---|---|---|---|---|---|---|---|---|---|---|
| Year | Market Value | Taxable Mkt Value | Gross Assessed | Exemption | Net Assessed | Millage | Est. Tax | Tax Savings | |||||
|
2026 |
418,000 |
418,000 |
45,980 |
0 |
45,980 |
122.90 |
$5,651 |
$0 |
|||||
|
2025 |
404,000 |
404,000 |
44,440 |
0 |
44,440 |
122.90 |
$5,462 |
$0 |
|||||
|
2024 |
47,695 |
47,695 |
5,246 |
0 |
5,246 |
123.89 |
$650 |
$0 |
|||||
|
2023 |
47,695 |
47,695 |
5,246 |
0 |
5,246 |
122.82 |
$644 |
$0 |
|||||
|
2022 |
47,695 |
47,695 |
5,246 |
0 |
5,246 |
117.63 |
$617 |
$0 |
|||||
| Property Account Status/Adjustments/Exemptions | ||
|---|---|---|
| Account # | Exemption Description | Amount |
|
R046602240 |
5% Capped Account |
0 |
| Property Deed Transaction History (Recorded in the County Clerk's Office) | |||||||
|---|---|---|---|---|---|---|---|
| Date | Type | Book | Page | Price | Grantor | Grantee | |
|
6/5/1998 |
|
Historical |
$0 |
MOHAMED ABDEL RAHMAN & BETTIE |
THREE STARS IMPORTS LLP |
||
|
4/22/1992 |
|
Historical |
$2,000 |
CASH ROY C & AVENA M |
MOHAMED ABDEL RAHMAN & BETTIE |
||
|
2/1/1977 |
|
Historical |
$0 |
|
CASH ROY C & AVENA M |
||
| Last Mailed Notice of Value (N.O.V.) Information/History | ||||||||
|---|---|---|---|---|---|---|---|---|
| Year | Date | Market Value | Taxable Market Value | Gross Assessed | Exemption | Net Assessed | ||
|
2026 |
02/23/2026 |
418,000 |
418,000 |
45,980 |
0 |
45,980 |
||
|
2025 |
03/28/2025 |
404,000 |
404,000 |
44,440 |
0 |
44,440 |
||
|
2022 |
03/15/2022 |
47,695 |
47,695 |
5,246 |
0 |
5,246 |
||
|
2021 |
03/19/2021 |
47,695 |
46,268 |
5,089 |
0 |
5,089 |
||
|
2020 |
03/10/2020 |
49,235 |
44,065 |
4,847 |
0 |
4,847 |
||
| Property Building Permit History | ||||||
|---|---|---|---|---|---|---|
| Issued | Permit # | Provided by | Bldg # | Description | Est Construction Cost | Status |
|
9/18/2006 |
10327453 |
OKLAHOMA CITY |
1 |
Remodeled |
0 |
Inactive |
|
5/3/2005 |
10308373 |
OKLAHOMA CITY |
1 |
Demolish |
0 |
Inactive |
| Click button on building number to access detailed information: | ||||||
|---|---|---|---|---|---|---|
| Bldg # | Vacant/Improved Land | Bldg Description | Year Built | SqFt | # Stories | |
|
1 |
Improved |
Duplex One half Story |
1920 |
3,391 |
1.5 Stories |
|