|
|
|
| Larry Stein Oklahoma County Assessor (405) 713-1200 - Public Access System |
|
|
|
|
|
|
| Real Property Display - Screen Produced 4/6/2026 10:06:53 AM | ||||
|---|---|---|---|---|
| Account: R048840420 | Type: Residential | Location: |
825 NW 35TH ST |
|
| Building Name/Occupant: |
|
OKLAHOMA CITY |
||
| Owner Name 1: | NGUYEN THAO THANH |
Parcel PIN#: |
2684-04-884-0420 |
|
| Owner Name 2: | 1/4 section #: |
2684 |
||
| Owner Name 3: | Parent Acct: |
|
||
| Billing Address: | 2608 SW 136TH ST | Tax District: |
|
|
| City, State, Zip | OKLAHOMA CITY, OK 73170-5135 | School System: |
Oklahoma City #89 |
|
|
Country: (If noted) |
Land Size: |
0.1561 Acres |
||
|
Land Value: 35,360 |
|
|||
|
Sect 21-T12N-R3W Qtr NW |
ROSS MANN ADDITION
Block
001
Lot
000
|
|||
| Full Legal Description: ROSS MANN ADDITION 001 000 LOTS 13 & 14 |
| Photo & Sketch (if available) | Comp Sales (ordered by relevancy) |
|
||||||||||||||||||
|
||||||||||||||||||||
| Value History (*The County Treasurer 405-713-1300 posts & collects actual tax amounts. Contact information HERE) | |||||||||||||
|---|---|---|---|---|---|---|---|---|---|---|---|---|---|
| Year | Market Value | Taxable Mkt Value | Gross Assessed | Exemption | Net Assessed | Millage | Est. Tax | Tax Savings | |||||
|
2026 |
190,000 |
49,737 |
5,470 |
0 |
5,470 |
122.90 |
$672 |
$1,896 |
|||||
|
2025 |
191,500 |
47,369 |
5,210 |
0 |
5,210 |
122.90 |
$640 |
$1,949 |
|||||
|
2024 |
182,500 |
45,114 |
4,962 |
0 |
4,962 |
123.89 |
$615 |
$1,872 |
|||||
|
2023 |
177,000 |
42,966 |
4,726 |
0 |
4,726 |
122.82 |
$580 |
$1,811 |
|||||
|
2022 |
137,000 |
40,920 |
4,500 |
0 |
4,500 |
117.63 |
$529 |
$1,243 |
|||||
| Property Account Status/Adjustments/Exemptions | ||
|---|---|---|
| Account # | Exemption Description | Amount |
|
R048840420 |
5% Capped Account |
0 |
| Property Deed Transaction History (Recorded in the County Clerk's Office) | |||||||
|---|---|---|---|---|---|---|---|
| Date | Type | Book | Page | Price | Grantor | Grantee | |
|
3/9/2004 |
|
Deeds |
$0 |
NGUYEN PHUONG M & THAO T |
NGUYEN THAO THANH |
||
|
4/2/1999 |
|
Historical |
$13,000 |
HO THAU VAN & NGOC TRAN |
NGUYEN PHUONG M & THAO T |
||
|
8/13/1991 |
|
Historical |
$0 |
GODDARD GEORGE J SR & MARY L |
HO THAU VAN & NGOC TRAN |
||
|
11/1/1977 |
|
Historical |
$0 |
|
GODDARD GEORGE J SR & MARY L |
||
| Last Mailed Notice of Value (N.O.V.) Information/History | ||||||||
|---|---|---|---|---|---|---|---|---|
| Year | Date | Market Value | Taxable Market Value | Gross Assessed | Exemption | Net Assessed | ||
|
2026 |
02/23/2026 |
190,000 |
49,737 |
5,470 |
0 |
5,470 |
||
|
2025 |
02/14/2025 |
191,500 |
47,369 |
5,210 |
0 |
5,210 |
||
|
2024 |
02/13/2024 |
182,500 |
45,114 |
4,962 |
0 |
4,962 |
||
|
2023 |
02/14/2023 |
177,000 |
42,966 |
4,726 |
0 |
4,726 |
||
|
2022 |
03/15/2022 |
137,000 |
40,920 |
4,500 |
0 |
4,500 |
||
| Property Building Permit History | |||||||||||
|---|---|---|---|---|---|---|---|---|---|---|---|
| Issued | Permit # | Provided by | Bldg # | Description | Est Construction Cost | Status | |||||
| No Building Permit records returned. | |||||||||||
| Click button on building number to access detailed information: | ||||||
|---|---|---|---|---|---|---|
| Bldg # | Vacant/Improved Land | Bldg Description | Year Built | SqFt | # Stories | |
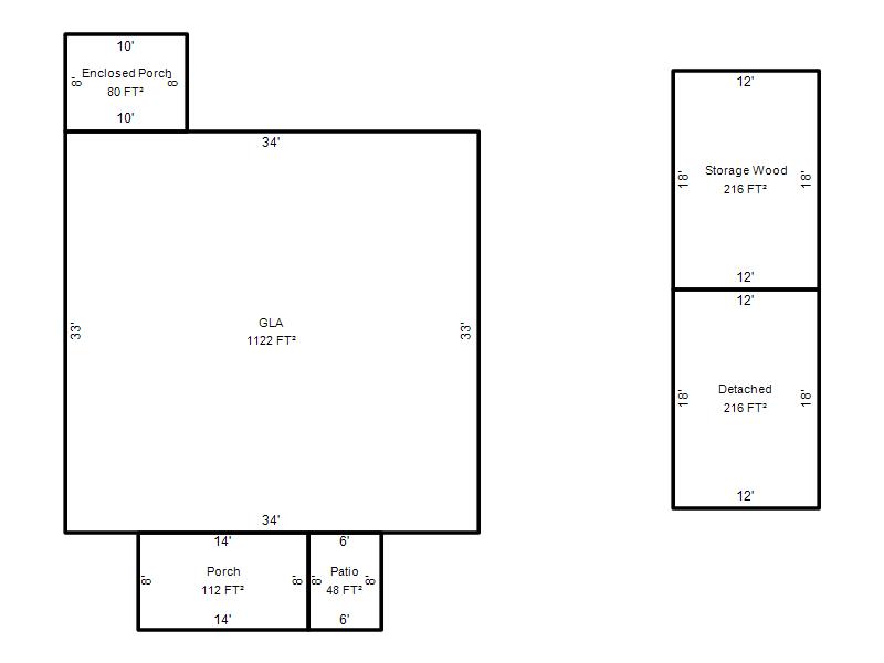
|
1 |
Improved |
Ranch 1 Story |
1920 |
1,122 |
1 Stories |
|