|
|
|
| Larry Stein Oklahoma County Assessor (405) 713-1200 - Public Access System |
|
|
|
|
|
|
| Real Property Display - Screen Produced 4/8/2026 3:45:29 PM | ||||
|---|---|---|---|---|
| Account: R034834050 | Type: Residential | Location: |
1504 E MADISON ST |
|
| Building Name/Occupant: |
|
OKLAHOMA CITY |
||
| Owner Name 1: | MCCONNELL MARTINUS & SHREE |
Parcel PIN#: |
2690-03-483-4050 |
|
| Owner Name 2: | 1/4 section #: |
2690 |
||
| Owner Name 3: | Parent Acct: |
|
||
| Billing Address: | 3003 LAMOND HILL AVE | Tax District: |
|
|
| City, State, Zip | EDMOND, OK 73034 | School System: |
Oklahoma City #89 |
|
|
Country: (If noted) |
Land Size: |
0.1538 Acres |
||
|
Land Value: 6,365 |
|
|||
|
Sect 23-T12N-R3W Qtr SE |
HOME PLACE ADDITION
Block
001
Lot
000
|
|||
| Full Legal Description: HOME PLACE ADDITION 001 000 LOTS 45 & 46 |
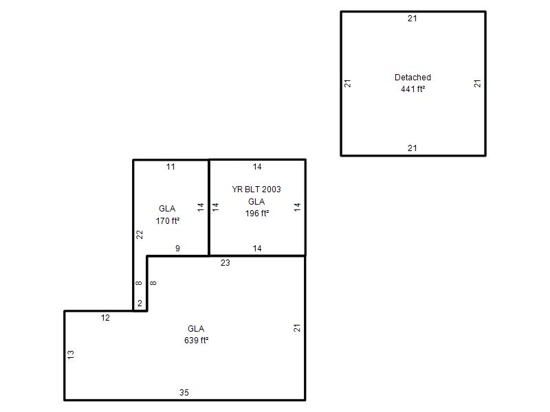
| Photo & Sketch (if available) | Comp Sales (ordered by relevancy) |
|
||||||||||||||||||
|
||||||||||||||||||||
| Value History (*The County Treasurer 405-713-1300 posts & collects actual tax amounts. Contact information HERE) | |||||||||||||
|---|---|---|---|---|---|---|---|---|---|---|---|---|---|
| Year | Market Value | Taxable Mkt Value | Gross Assessed | Exemption | Net Assessed | Millage | Est. Tax | Tax Savings | |||||
|
2026 |
86,500 |
52,964 |
5,825 |
0 |
5,825 |
122.90 |
$716 |
$453 |
|||||
|
2025 |
80,500 |
50,442 |
5,548 |
0 |
5,548 |
122.90 |
$682 |
$406 |
|||||
|
2024 |
76,000 |
48,040 |
5,283 |
0 |
5,283 |
123.89 |
$655 |
$381 |
|||||
|
2023 |
63,000 |
45,753 |
5,032 |
0 |
5,032 |
122.82 |
$618 |
$233 |
|||||
|
2022 |
61,000 |
43,575 |
4,793 |
0 |
4,793 |
117.63 |
$564 |
$225 |
|||||
| Property Account Status/Adjustments/Exemptions | ||
|---|---|---|
| Account # | Exemption Description | Amount |
|
R034834050 |
5% Capped Account |
0 |
| Property Deed Transaction History (Recorded in the County Clerk's Office) | ||||||||||
|---|---|---|---|---|---|---|---|---|---|---|
| Date | Type | Book | Page | Price | Grantor | Grantee | ||||
|
11/25/2020 |
|
Deeds |
$20,000 |
ZEIGLER ISAAC M & JESSIE L TRS |
MCCONNELL MARTINUS & SHREE |
|||||
|
9/24/2004 |
|
Deeds |
$0 |
ZEIGLER ISAAC & JESSIE |
ZEIGLER ISAAC M & JESSIE L TRS |
|||||
|
5/29/1996 |
|
Historical |
$0 |
ZEIGLER ISAAC & JESSIE |
ZEIGLER ISAAC & JESSIE |
|||||
|
5/1/1996 |
|
Historical |
$0 |
CONLEY ROY L |
ZEIGLER ISAAC & JESSIE |
|||||
|
7/14/1995 |
|
Historical |
$0 |
JAMES ALENE T |
CONLEY ROY L |
|||||
| Last Mailed Notice of Value (N.O.V.) Information/History | ||||||||
|---|---|---|---|---|---|---|---|---|
| Year | Date | Market Value | Taxable Market Value | Gross Assessed | Exemption | Net Assessed | ||
|
2026 |
02/23/2026 |
86,500 |
52,964 |
5,825 |
0 |
5,825 |
||
|
2025 |
02/14/2025 |
80,500 |
50,442 |
5,548 |
0 |
5,548 |
||
|
2024 |
02/13/2024 |
76,000 |
48,040 |
5,283 |
0 |
5,283 |
||
|
2023 |
02/14/2023 |
63,000 |
45,753 |
5,032 |
0 |
5,032 |
||
|
2022 |
03/15/2022 |
61,000 |
43,575 |
4,793 |
0 |
4,793 |
||
| Property Building Permit History | ||||||
|---|---|---|---|---|---|---|
| Issued | Permit # | Provided by | Bldg # | Description | Est Construction Cost | Status |
|
1/22/2003 |
10189274 |
OKLAHOMA CITY |
1 |
Add On |
12,000 |
Inactive |
| Click button on building number to access detailed information: | ||||||
|---|---|---|---|---|---|---|
| Bldg # | Vacant/Improved Land | Bldg Description | Year Built | SqFt | # Stories | |
|
1 |
Improved |
Ranch 1 Story |
1929 |
1,005 |
1 Stories |
|