|
|
|
| Larry Stein Oklahoma County Assessor (405) 713-1200 - Public Access System |
|
|
|
|
|
|
| Real Property Display - Screen Produced 4/8/2026 3:40:57 PM | ||||
|---|---|---|---|---|
| Account: R034837650 | Type: Residential | Location: |
1536 NE 24TH ST |
|
| Building Name/Occupant: |
|
OKLAHOMA CITY |
||
| Owner Name 1: | JAA HOLDINGS LLC |
Parcel PIN#: |
2690-03-483-7650 |
|
| Owner Name 2: | 1/4 section #: |
2690 |
||
| Owner Name 3: | Parent Acct: |
|
||
| Billing Address: | 20588 DEER SPRINGS CIR | Tax District: |
|
|
| City, State, Zip | EDMOND, OK 73012 | School System: |
Oklahoma City #89 |
|
|
Country: (If noted) |
Land Size: |
0.1538 Acres |
||
|
Land Value: 6,365 |
|
|||
|
Sect 23-T12N-R3W Qtr SE |
HOME PLACE ADDITION
Block
002
Lot
000
|
|||
| Full Legal Description: HOME PLACE ADDITION 002 000 LOTS 29 & 30 |
| Photo & Sketch (if available) | Comp Sales (ordered by relevancy) |
|
||||||||||||||||||
|
||||||||||||||||||||
| Value History (*The County Treasurer 405-713-1300 posts & collects actual tax amounts. Contact information HERE) | |||||||||||||
|---|---|---|---|---|---|---|---|---|---|---|---|---|---|
| Year | Market Value | Taxable Mkt Value | Gross Assessed | Exemption | Net Assessed | Millage | Est. Tax | Tax Savings | |||||
|
2026 |
100,000 |
54,663 |
6,012 |
0 |
6,012 |
122.90 |
$739 |
$613 |
|||||
|
2025 |
89,000 |
52,060 |
5,725 |
0 |
5,725 |
122.90 |
$704 |
$499 |
|||||
|
2024 |
88,500 |
49,581 |
5,453 |
0 |
5,453 |
123.89 |
$676 |
$530 |
|||||
|
2023 |
73,500 |
47,220 |
5,193 |
0 |
5,193 |
122.82 |
$638 |
$355 |
|||||
|
2022 |
71,000 |
44,972 |
4,946 |
0 |
4,946 |
117.63 |
$582 |
$337 |
|||||
| Property Account Status/Adjustments/Exemptions | ||
|---|---|---|
| Account # | Exemption Description | Amount |
|
R034837650 |
5% Capped Account |
0 |
| Property Deed Transaction History (Recorded in the County Clerk's Office) | ||||||||||
|---|---|---|---|---|---|---|---|---|---|---|
| Date | Type | Book | Page | Price | Grantor | Grantee | ||||
|
1/25/2024 |
|
Hmstd Off & |
$0 |
LBN LLC |
JAA HOLDINGS LLC |
|||||
|
9/10/2019 |
|
Hmstd Off & |
$0 |
JAA HOLDINGS LLC |
LBN LLC |
|||||
|
9/10/2019 |
|
Hmstd Off & |
$0 |
JAA HOLDINGS LLC |
LBN LLC |
|||||
|
7/28/2016 |
|
Deeds |
$40,000 |
VAN INVESTMENTS LLC |
JAA HOLDINGS LLC |
|||||
|
1/10/2013 |
|
Deeds |
$35,000 |
HOSKINS PATTY TRS 1536 NE 24TH ST TRUST |
VAN INVESTMENTS LLC |
|||||
| Last Mailed Notice of Value (N.O.V.) Information/History | ||||||||
|---|---|---|---|---|---|---|---|---|
| Year | Date | Market Value | Taxable Market Value | Gross Assessed | Exemption | Net Assessed | ||
|
2026 |
02/23/2026 |
100,000 |
54,663 |
6,012 |
0 |
6,012 |
||
|
2025 |
02/14/2025 |
89,000 |
52,060 |
5,725 |
0 |
5,725 |
||
|
2024 |
02/13/2024 |
88,500 |
49,581 |
5,453 |
0 |
5,453 |
||
|
2023 |
02/14/2023 |
73,500 |
47,220 |
5,193 |
0 |
5,193 |
||
|
2022 |
03/15/2022 |
71,000 |
44,972 |
4,946 |
0 |
4,946 |
||
| Property Building Permit History | |||||||||||
|---|---|---|---|---|---|---|---|---|---|---|---|
| Issued | Permit # | Provided by | Bldg # | Description | Est Construction Cost | Status | |||||
| No Building Permit records returned. | |||||||||||
| Click button on building number to access detailed information: | ||||||
|---|---|---|---|---|---|---|
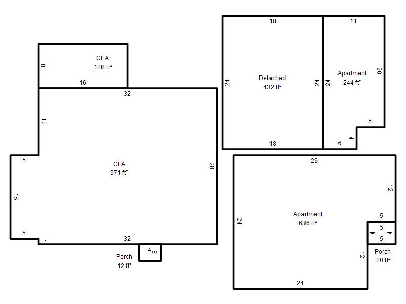
| Bldg # | Vacant/Improved Land | Bldg Description | Year Built | SqFt | # Stories | |
|
1 |
Improved |
Ranch 1 Story |
1935 |
1,099 |
1 Stories |
|