|
|
|
| Larry Stein Oklahoma County Assessor (405) 713-1200 - Public Access System |
|
|
|
|
|
|
| Real Property Display - Screen Produced 4/8/2026 3:40:56 PM | ||||
|---|---|---|---|---|
| Account: R037871630 | Type: Residential | Location: |
1708 NE 25TH ST |
|
| Building Name/Occupant: |
|
OKLAHOMA CITY |
||
| Owner Name 1: | GOODLOW JOE LOUIS |
Parcel PIN#: |
2690-03-787-1630 |
|
| Owner Name 2: | 1/4 section #: |
2690 |
||
| Owner Name 3: | Parent Acct: |
|
||
| Billing Address: | 4112 W WETHERSFIELD RD | Tax District: |
|
|
| City, State, Zip | PHOENIX, AZ 85029 | School System: |
Oklahoma City #89 |
|
|
Country: (If noted) |
Land Size: |
0.1573 Acres |
||
|
Land Value: 6,508 |
|
|||
|
Sect 23-T12N-R3W Qtr SE |
RANEY ADDITION
Block
013
Lot
000
|
|||
| Full Legal Description: RANEY ADDITION 013 000 E50FT OF W150FT OF N137.5FT OF S275FT |
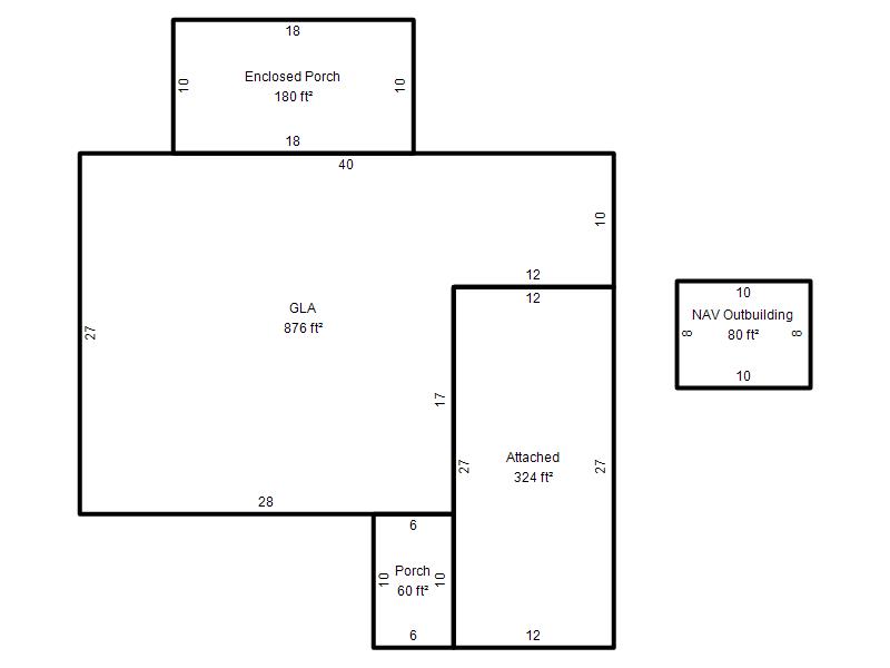
| Photo & Sketch (if available) | Comp Sales (ordered by relevancy) |
|
||||||||||||||||||
|
||||||||||||||||||||
| Value History (*The County Treasurer 405-713-1300 posts & collects actual tax amounts. Contact information HERE) | |||||||||||||
|---|---|---|---|---|---|---|---|---|---|---|---|---|---|
| Year | Market Value | Taxable Mkt Value | Gross Assessed | Exemption | Net Assessed | Millage | Est. Tax | Tax Savings | |||||
|
2026 |
88,500 |
35,910 |
3,950 |
0 |
3,950 |
122.90 |
$485 |
$711 |
|||||
|
2025 |
84,000 |
34,200 |
3,761 |
0 |
3,761 |
122.90 |
$462 |
$673 |
|||||
|
2024 |
82,000 |
32,572 |
3,582 |
0 |
3,582 |
123.89 |
$444 |
$674 |
|||||
|
2023 |
68,500 |
31,021 |
3,411 |
0 |
3,411 |
122.82 |
$419 |
$506 |
|||||
|
2022 |
50,500 |
29,544 |
3,248 |
0 |
3,248 |
117.63 |
$382 |
$271 |
|||||
| Property Account Status/Adjustments/Exemptions | ||
|---|---|---|
| Account # | Exemption Description | Amount |
|
R037871630 |
5% Capped Account |
0 |
| Property Deed Transaction History (Recorded in the County Clerk's Office) | |||||||
|---|---|---|---|---|---|---|---|
| Date | Type | Book | Page | Price | Grantor | Grantee | |
|
8/11/1994 |
|
Historical |
$0 |
GOODLOW OTIS J & BLANCHE M |
GOODLOW JOE LOUIS |
||
|
11/11/1911 |
|
Historical |
$0 |
|
GOODLOW OTIS J & BLANCHE M |
||
| Last Mailed Notice of Value (N.O.V.) Information/History | ||||||||
|---|---|---|---|---|---|---|---|---|
| Year | Date | Market Value | Taxable Market Value | Gross Assessed | Exemption | Net Assessed | ||
|
2026 |
02/23/2026 |
88,500 |
35,910 |
3,950 |
0 |
3,950 |
||
|
2025 |
02/14/2025 |
84,000 |
34,200 |
3,761 |
0 |
3,761 |
||
|
2024 |
02/13/2024 |
82,000 |
32,572 |
3,582 |
0 |
3,582 |
||
|
2023 |
02/14/2023 |
68,500 |
31,021 |
3,411 |
0 |
3,411 |
||
|
2022 |
03/15/2022 |
50,500 |
29,544 |
3,248 |
0 |
3,248 |
||
| Property Building Permit History | |||||||||||
|---|---|---|---|---|---|---|---|---|---|---|---|
| Issued | Permit # | Provided by | Bldg # | Description | Est Construction Cost | Status | |||||
| No Building Permit records returned. | |||||||||||
| Click button on building number to access detailed information: | ||||||
|---|---|---|---|---|---|---|
| Bldg # | Vacant/Improved Land | Bldg Description | Year Built | SqFt | # Stories | |
|
1 |
Improved |
Ranch 1 Story |
1962 |
876 |
1 Stories |
|