|
|
|
| Larry Stein Oklahoma County Assessor (405) 713-1200 - Public Access System |
|
|
|
|
|
|
| Real Property Display - Screen Produced 4/8/2026 3:40:57 PM | ||||
|---|---|---|---|---|
| Account: R037871755 | Type: Residential | Location: |
1708 NE 26TH ST |
|
| Building Name/Occupant: |
|
OKLAHOMA CITY |
||
| Owner Name 1: | ROWLAND LATRECE |
Parcel PIN#: |
2690-03-787-1755 |
|
| Owner Name 2: | JONES ANTHONY L | 1/4 section #: |
2690 |
|
| Owner Name 3: | IRVIN DARRELL L | Parent Acct: |
|
|
| Billing Address: | 1708 NE 26TH ST | Tax District: |
|
|
| City, State, Zip | OKLAHOMA CITY, OK 73111-3205 | School System: |
Oklahoma City #89 |
|
|
Country: (If noted) |
Land Size: |
0.1635 Acres |
||
|
Land Value: 6,768 |
|
|||
|
Sect 23-T12N-R3W Qtr SE |
RANEY ADDITION
Block
013
Lot
000
|
|||
| Full Legal Description: RANEY ADDITION 013 000 E52FT OF W156FT OF N137.5FT |
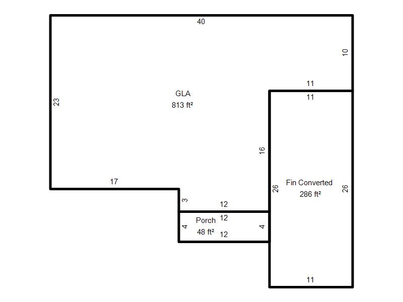
| Photo & Sketch (if available) | Comp Sales (ordered by relevancy) |
|
||||||||||||||||||
|
||||||||||||||||||||
| Value History (*The County Treasurer 405-713-1300 posts & collects actual tax amounts. Contact information HERE) | |||||||||||||
|---|---|---|---|---|---|---|---|---|---|---|---|---|---|
| Year | Market Value | Taxable Mkt Value | Gross Assessed | Exemption | Net Assessed | Millage | Est. Tax | Tax Savings | |||||
|
2026 |
92,000 |
20,399 |
2,243 |
0 |
2,243 |
122.90 |
$276 |
$968 |
|||||
|
2025 |
86,000 |
19,428 |
2,136 |
0 |
2,136 |
122.90 |
$263 |
$900 |
|||||
|
2024 |
73,000 |
18,503 |
2,034 |
0 |
2,034 |
123.89 |
$252 |
$743 |
|||||
|
2023 |
63,000 |
17,622 |
1,938 |
0 |
1,938 |
122.82 |
$238 |
$613 |
|||||
|
2022 |
46,000 |
16,783 |
1,844 |
0 |
1,844 |
117.63 |
$217 |
$378 |
|||||
| Property Account Status/Adjustments/Exemptions | ||
|---|---|---|
| Account # | Exemption Description | Amount |
|
R037871755 |
5% Capped Account |
0 |
| Property Deed Transaction History (Recorded in the County Clerk's Office) | ||||||||||
|---|---|---|---|---|---|---|---|---|---|---|
| Date | Type | Book | Page | Price | Grantor | Grantee | ||||
|
11/26/2024 |
|
Hmstd Off & |
$0 |
ROWLAND LATRECE MARIE |
ROWLAND LATRECE |
|||||
|
9/11/2023 |
|
Hmstd Off & |
$0 |
JONES IRVIN TERESA |
ROWLAND LATRECE MARIE |
|||||
|
1/22/2018 |
|
Hmstd Off & |
$0 |
ROWLAND LATRESSA IRVIN |
JONES IRVIN TERESA |
|||||
|
4/17/2015 |
|
Hmstd Off & |
$0 |
IRVIN TERESA JONES |
ROWLAND LATRESSA IRVIN |
|||||
|
10/10/2000 |
|
Deeds |
$0 |
STINSON WILLIE ETAL IRVIN TERESA |
IRVIN TERESA JONES |
|||||
| Last Mailed Notice of Value (N.O.V.) Information/History | ||||||||
|---|---|---|---|---|---|---|---|---|
| Year | Date | Market Value | Taxable Market Value | Gross Assessed | Exemption | Net Assessed | ||
|
2026 |
02/23/2026 |
92,000 |
20,399 |
2,243 |
0 |
2,243 |
||
|
2025 |
02/14/2025 |
86,000 |
19,428 |
2,136 |
0 |
2,136 |
||
|
2024 |
02/13/2024 |
73,000 |
18,503 |
2,034 |
0 |
2,034 |
||
|
2023 |
02/14/2023 |
63,000 |
17,622 |
1,938 |
0 |
1,938 |
||
|
2022 |
03/15/2022 |
46,000 |
16,783 |
1,844 |
0 |
1,844 |
||
| Property Building Permit History | |||||||||||
|---|---|---|---|---|---|---|---|---|---|---|---|
| Issued | Permit # | Provided by | Bldg # | Description | Est Construction Cost | Status | |||||
|
8/3/2007 |
10341470 |
OKLAHOMA CITY |
1 |
Fire Remodel |
20,000 |
Inactive |
|||||
|
6/29/2007 |
10339812 |
OKLAHOMA CITY |
1 |
Burn - Trip |
30,000 |
Inactive |
|||||
|
1/28/2005 |
10301114 |
OKLAHOMA CITY |
1 |
Fire Remodel |
40,000 |
Inactive |
|||||
|
12/25/2004 |
10299532 |
OKLAHOMA CITY |
1 |
Burn - Trip |
20,000 |
Inactive |
|||||
|
3/1/1994 |
10189544 |
OKLAHOMA CITY |
1 |
Fire Remodel |
13,850 |
Inactive |
|||||
| Click button on building number to access detailed information: | ||||||
|---|---|---|---|---|---|---|
| Bldg # | Vacant/Improved Land | Bldg Description | Year Built | SqFt | # Stories | |
|
1 |
Improved |
Ranch 1 Story |
1961 |
813 |
1 Stories |
|