|
|
|
| Larry Stein Oklahoma County Assessor (405) 713-1200 - Public Access System |
|
|
|
|
|
|
| Real Property Display - Screen Produced 4/8/2026 3:44:17 PM | ||||
|---|---|---|---|---|
| Account: R037871775 | Type: Residential | Location: |
2609 N RHODE ISLAND AVE |
|
| Building Name/Occupant: |
|
OKLAHOMA CITY |
||
| Owner Name 1: | MCDANIEL JOSHUA D |
Parcel PIN#: |
2690-03-787-1775 |
|
| Owner Name 2: | 1/4 section #: |
2690 |
||
| Owner Name 3: | Parent Acct: |
|
||
| Billing Address: | 9940 LOOKOUT POINTE | Tax District: |
|
|
| City, State, Zip | EDMOND, OK 73034 | School System: |
Oklahoma City #89 |
|
|
Country: (If noted) |
Land Size: |
0.1436 Acres |
||
|
Land Value: 5,943 |
|
|||
|
Sect 23-T12N-R3W Qtr SE |
RANEY ADDITION
Block
013
Lot
000
|
|||
| Full Legal Description: RANEY ADDITION 013 000 S68.75FT OF N137.5FT OF E92FT |
| Photo & Sketch (if available) | Comp Sales (ordered by relevancy) |
|
||||||||||||||||||
|
||||||||||||||||||||
| Value History (*The County Treasurer 405-713-1300 posts & collects actual tax amounts. Contact information HERE) | |||||||||||||
|---|---|---|---|---|---|---|---|---|---|---|---|---|---|
| Year | Market Value | Taxable Mkt Value | Gross Assessed | Exemption | Net Assessed | Millage | Est. Tax | Tax Savings | |||||
|
2026 |
74,000 |
60,166 |
6,618 |
0 |
6,618 |
122.90 |
$813 |
$187 |
|||||
|
2025 |
69,500 |
57,301 |
6,303 |
0 |
6,303 |
122.90 |
$775 |
$165 |
|||||
|
2024 |
67,500 |
54,573 |
6,002 |
0 |
6,002 |
123.89 |
$744 |
$176 |
|||||
|
2023 |
57,000 |
51,975 |
5,717 |
0 |
5,717 |
122.82 |
$702 |
$68 |
|||||
|
2022 |
49,500 |
49,500 |
5,445 |
0 |
5,445 |
117.63 |
$640 |
$0 |
|||||
| Property Account Status/Adjustments/Exemptions | ||
|---|---|---|
| Account # | Exemption Description | Amount |
|
R037871775 |
5% Capped Account |
0 |
| Property Deed Transaction History (Recorded in the County Clerk's Office) | |||||||
|---|---|---|---|---|---|---|---|
| Date | Type | Book | Page | Price | Grantor | Grantee | |
|
5/27/2021 |
|
Deeds |
$50,000 |
YOUSIF WAHID S & AMNI D |
MCDANIEL JOSHUA D |
||
|
9/10/2019 |
|
Hmstd Off & |
$0 |
YOUSIF WAHID S |
YOUSIF WAHID S & AMNI D |
||
|
6/16/1993 |
|
Historical |
$0 |
HOUSTON GWENDOLYN |
YOUSIF WAHID S |
||
|
11/11/1911 |
|
Historical |
$0 |
|
HOUSTON GWENDOLYN |
||
| Last Mailed Notice of Value (N.O.V.) Information/History | ||||||||
|---|---|---|---|---|---|---|---|---|
| Year | Date | Market Value | Taxable Market Value | Gross Assessed | Exemption | Net Assessed | ||
|
2026 |
02/23/2026 |
74,000 |
60,166 |
6,618 |
0 |
6,618 |
||
|
2025 |
02/14/2025 |
69,500 |
57,301 |
6,303 |
0 |
6,303 |
||
|
2024 |
02/13/2024 |
67,500 |
54,573 |
6,002 |
0 |
6,002 |
||
|
2023 |
02/14/2023 |
57,000 |
51,975 |
5,717 |
0 |
5,717 |
||
|
2022 |
03/15/2022 |
49,500 |
49,500 |
5,445 |
0 |
5,445 |
||
| Property Building Permit History | ||||||
|---|---|---|---|---|---|---|
| Issued | Permit # | Provided by | Bldg # | Description | Est Construction Cost | Status |
|
7/11/2002 |
10189545 |
OKLAHOMA CITY |
1 |
Burn - Trip |
3,000 |
Inactive |
| Click button on building number to access detailed information: | ||||||
|---|---|---|---|---|---|---|
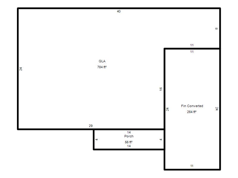
| Bldg # | Vacant/Improved Land | Bldg Description | Year Built | SqFt | # Stories | |
|
1 |
Improved |
Ranch 1 Story |
1958 |
784 |
1 Stories |
|