|
|
|
| Larry Stein Oklahoma County Assessor (405) 713-1200 - Public Access System |
|
|
|
|
|
|
| Real Property Display - Screen Produced 4/8/2026 5:17:04 PM | ||||
|---|---|---|---|---|
| Account: R038030340 | Type: Residential | Location: |
1820 NE 26TH ST |
|
| Building Name/Occupant: |
|
OKLAHOMA CITY |
||
| Owner Name 1: | 59TH STREET LLC |
Parcel PIN#: |
2690-03-803-0340 |
|
| Owner Name 2: | 1/4 section #: |
2690 |
||
| Owner Name 3: | Parent Acct: |
|
||
| Billing Address: | 324 N PALM DR, Unit 107 | Tax District: |
|
|
| City, State, Zip | BEVERLY HILLS, CA 90210-4187 | School System: |
Oklahoma City #89 |
|
|
Country: (If noted) |
Land Size: |
0.3099 Acres |
||
|
Land Value: 12,825 |
|
|||
|
Sect 23-T12N-R3W Qtr SE |
HARMONY HILL ADD
Block
001
Lot
000
|
|||
| Full Legal Description: HARMONY HILL ADD 001 000 LOTS 14 THRU 17 |
| Photo & Sketch (if available) | Comp Sales (ordered by relevancy) |
|
||||||||||||||||||
|
||||||||||||||||||||
| Value History (*The County Treasurer 405-713-1300 posts & collects actual tax amounts. Contact information HERE) | |||||||||||||
|---|---|---|---|---|---|---|---|---|---|---|---|---|---|
| Year | Market Value | Taxable Mkt Value | Gross Assessed | Exemption | Net Assessed | Millage | Est. Tax | Tax Savings | |||||
|
2026 |
116,000 |
113,925 |
12,531 |
0 |
12,531 |
122.90 |
$1,540 |
$28 |
|||||
|
2025 |
108,500 |
108,500 |
11,935 |
0 |
11,935 |
122.90 |
$1,467 |
$0 |
|||||
|
2024 |
91,000 |
44,238 |
4,865 |
0 |
4,865 |
123.89 |
$603 |
$637 |
|||||
|
2023 |
78,500 |
42,132 |
4,633 |
1,000 |
3,633 |
122.82 |
$446 |
$614 |
|||||
|
2022 |
56,500 |
40,905 |
4,499 |
1,000 |
3,499 |
117.63 |
$412 |
$319 |
|||||
| Property Account Status/Adjustments/Exemptions | ||
|---|---|---|
| Account # | Exemption Description | Amount |
|
R038030340 |
5% Capped Account |
0 |
| Property Deed Transaction History (Recorded in the County Clerk's Office) | |||||||
|---|---|---|---|---|---|---|---|
| Date | Type | Book | Page | Price | Grantor | Grantee | |
|
2/7/2024 |
|
Deeds |
$108,000 |
BOOKER HERBERT JR PER REP |
59TH STREET LLC |
||
|
1/31/2024 |
|
Hmstd Off & |
$0 |
BOOKER HERBERT & M L |
BOOKER HERBERT JR PER REP |
||
|
11/11/1911 |
|
Historical |
$0 |
|
BOOKER HERBERT & M L |
||
| Last Mailed Notice of Value (N.O.V.) Information/History | ||||||||
|---|---|---|---|---|---|---|---|---|
| Year | Date | Market Value | Taxable Market Value | Gross Assessed | Exemption | Net Assessed | ||
|
2026 |
02/23/2026 |
116,000 |
113,925 |
12,531 |
0 |
12,531 |
||
|
2025 |
02/14/2025 |
108,500 |
108,500 |
11,935 |
0 |
11,935 |
||
|
2024 |
02/13/2024 |
91,000 |
44,238 |
4,865 |
0 |
4,865 |
||
|
2024 |
03/01/2024 |
91,000 |
44,238 |
4,865 |
0 |
4,865 |
||
|
2023 |
02/14/2023 |
78,500 |
42,132 |
4,633 |
1,000 |
3,633 |
||
| Property Building Permit History | |||||||||||
|---|---|---|---|---|---|---|---|---|---|---|---|
| Issued | Permit # | Provided by | Bldg # | Description | Est Construction Cost | Status | |||||
| No Building Permit records returned. | |||||||||||
| Click button on building number to access detailed information: | ||||||
|---|---|---|---|---|---|---|
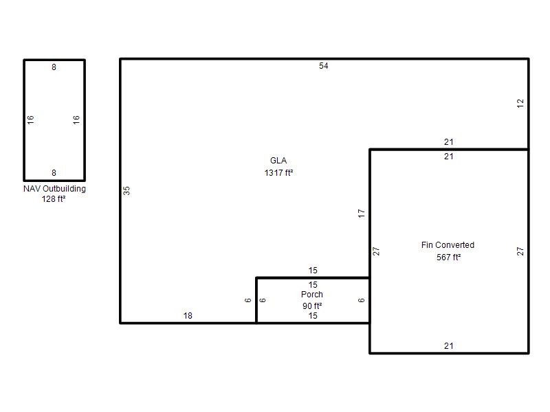
| Bldg # | Vacant/Improved Land | Bldg Description | Year Built | SqFt | # Stories | |
|
1 |
Improved |
Ranch 1 Story |
1954 |
1,317 |
1 Stories |
|