|
|
|
| Larry Stein Oklahoma County Assessor (405) 713-1200 - Public Access System |
|
|
|
|
|
|
| Real Property Display - Screen Produced 4/8/2026 5:17:03 PM | ||||
|---|---|---|---|---|
| Account: R038038360 | Type: Residential | Location: |
1920 E MADISON ST |
|
| Building Name/Occupant: |
|
OKLAHOMA CITY |
||
| Owner Name 1: | RIGGINS DEKOVEN & KEITRA |
Parcel PIN#: |
2690-03-803-8360 |
|
| Owner Name 2: | 1/4 section #: |
2690 |
||
| Owner Name 3: | Parent Acct: |
|
||
| Billing Address: | 5200 STRAIT DR | Tax District: |
|
|
| City, State, Zip | OKLAHOMA CITY, OK 73121 | School System: |
Oklahoma City #89 |
|
|
Country: (If noted) |
Land Size: |
0.1573 Acres |
||
|
Land Value: 6,508 |
|
|||
|
Sect 23-T12N-R3W Qtr SE |
HARMONY HILL ADD
Block
005
Lot
000
|
|||
| Full Legal Description: HARMONY HILL ADD 005 000 LOTS 13 & 14 & N/2 OF VACATED ALLEY ADJ ON S |
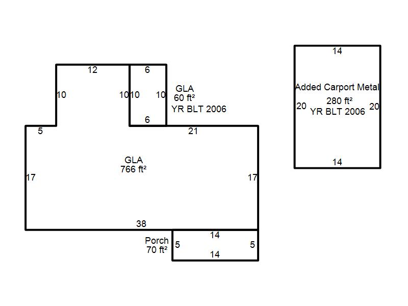
| Photo & Sketch (if available) | Comp Sales (ordered by relevancy) |
|
||||||||||||||||||
|
||||||||||||||||||||
| Value History (*The County Treasurer 405-713-1300 posts & collects actual tax amounts. Contact information HERE) | |||||||||||||
|---|---|---|---|---|---|---|---|---|---|---|---|---|---|
| Year | Market Value | Taxable Mkt Value | Gross Assessed | Exemption | Net Assessed | Millage | Est. Tax | Tax Savings | |||||
|
2026 |
73,000 |
39,562 |
4,351 |
0 |
4,351 |
122.90 |
$535 |
$452 |
|||||
|
2025 |
66,500 |
37,679 |
4,144 |
0 |
4,144 |
122.90 |
$509 |
$390 |
|||||
|
2024 |
55,500 |
35,885 |
3,946 |
0 |
3,946 |
123.89 |
$489 |
$267 |
|||||
|
2023 |
47,000 |
34,177 |
3,759 |
0 |
3,759 |
122.82 |
$462 |
$173 |
|||||
|
2022 |
33,500 |
32,550 |
3,580 |
0 |
3,580 |
117.63 |
$421 |
$12 |
|||||
| Property Account Status/Adjustments/Exemptions | ||
|---|---|---|
| Account # | Exemption Description | Amount |
|
R038038360 |
5% Capped Account |
0 |
| Property Deed Transaction History (Recorded in the County Clerk's Office) | ||||||||||
|---|---|---|---|---|---|---|---|---|---|---|
| Date | Type | Book | Page | Price | Grantor | Grantee | ||||
|
1/29/2020 |
|
Deeds |
$30,000 |
GRANT MICHAEL |
RIGGINS DEKOVEN & KEITRA |
|||||
|
11/27/2013 |
|
Other |
$0 |
SECRETARY OF HOUSING & URBAN DEV |
GRANT MICHAEL |
|||||
|
4/2/2013 |
|
Hmstd Off & |
$0 |
WEEKLY WILMA DIANE |
SECRETARY OF HOUSING & URBAN DEV |
|||||
|
9/15/2006 |
|
Deeds |
$35,000 |
URBAN LEAGUE OF GREATER OKC INC |
WEEKLY WILMA DIANE |
|||||
|
5/23/2003 |
|
Deeds |
$17,500 |
REAL ESTATE MAGIC INVESTMENTS LLC |
URBAN LEAGUE OF GREATER OKC INC |
|||||
| Last Mailed Notice of Value (N.O.V.) Information/History | ||||||||
|---|---|---|---|---|---|---|---|---|
| Year | Date | Market Value | Taxable Market Value | Gross Assessed | Exemption | Net Assessed | ||
|
2026 |
02/23/2026 |
73,000 |
39,562 |
4,351 |
0 |
4,351 |
||
|
2025 |
02/14/2025 |
66,500 |
37,679 |
4,144 |
0 |
4,144 |
||
|
2024 |
02/13/2024 |
55,500 |
35,885 |
3,946 |
0 |
3,946 |
||
|
2023 |
02/14/2023 |
47,000 |
34,177 |
3,759 |
0 |
3,759 |
||
|
2022 |
03/15/2022 |
33,500 |
32,550 |
3,580 |
0 |
3,580 |
||
| Property Building Permit History | ||||||
|---|---|---|---|---|---|---|
| Issued | Permit # | Provided by | Bldg # | Description | Est Construction Cost | Status |
|
7/14/2004 |
10294590 |
OKLAHOMA CITY |
1 |
Add On |
5,000 |
Inactive |
|
7/18/2003 |
10281158 |
OKLAHOMA CITY |
1 |
Add On |
5,000 |
Inactive |
| Click button on building number to access detailed information: | ||||||
|---|---|---|---|---|---|---|
| Bldg # | Vacant/Improved Land | Bldg Description | Year Built | SqFt | # Stories | |
|
1 |
Improved |
Ranch 1 Story |
1946 |
826 |
1 Stories |
|