|
|
|
| Larry Stein Oklahoma County Assessor (405) 713-1200 - Public Access System |
|
|
|
|
|
|
| Real Property Display - Screen Produced 4/8/2026 3:12:33 PM | ||||
|---|---|---|---|---|
| Account: R038112100 | Type: Residential | Location: |
1904 NE 26TH ST |
|
| Building Name/Occupant: |
|
OKLAHOMA CITY |
||
| Owner Name 1: | FREDERICK MIEL |
Parcel PIN#: |
2690-03-811-2100 |
|
| Owner Name 2: | 1/4 section #: |
2690 |
||
| Owner Name 3: | Parent Acct: |
|
||
| Billing Address: | 1904 NE 26TH ST | Tax District: |
|
|
| City, State, Zip | OKLAHOMA CITY, OK 73111-3304 | School System: |
Oklahoma City #89 |
|
|
Country: (If noted) |
Land Size: |
0.1550 Acres |
||
|
Land Value: 6,413 |
|
|||
|
Sect 23-T12N-R3W Qtr SE |
WALLACE ADKINS ADD
Block
001
Lot
000
|
|||
| Full Legal Description: WALLACE ADKINS ADD 001 000 LOTS 21 & 22 |
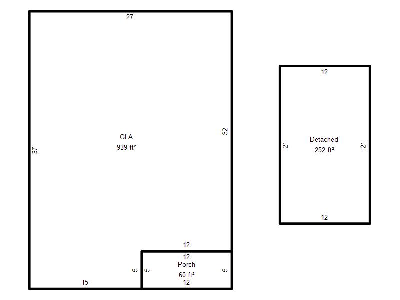
| Photo & Sketch (if available) | Comp Sales (ordered by relevancy) |
|
||||||||||||||||||
|
||||||||||||||||||||
| Value History (*The County Treasurer 405-713-1300 posts & collects actual tax amounts. Contact information HERE) | |||||||||||||
|---|---|---|---|---|---|---|---|---|---|---|---|---|---|
| Year | Market Value | Taxable Mkt Value | Gross Assessed | Exemption | Net Assessed | Millage | Est. Tax | Tax Savings | |||||
|
2026 |
83,500 |
27,019 |
2,971 |
0 |
2,971 |
122.90 |
$365 |
$764 |
|||||
|
2025 |
78,500 |
25,733 |
2,829 |
0 |
2,829 |
122.90 |
$348 |
$713 |
|||||
|
2024 |
66,000 |
24,508 |
2,695 |
0 |
2,695 |
123.89 |
$334 |
$565 |
|||||
|
2023 |
56,500 |
23,341 |
2,567 |
0 |
2,567 |
122.82 |
$315 |
$448 |
|||||
|
2022 |
54,500 |
22,230 |
2,444 |
0 |
2,444 |
117.63 |
$288 |
$418 |
|||||
| Property Account Status/Adjustments/Exemptions | ||
|---|---|---|
| Account # | Exemption Description | Amount |
|
R038112100 |
5% Capped Account |
0 |
| Property Deed Transaction History (Recorded in the County Clerk's Office) | |||||||
|---|---|---|---|---|---|---|---|
| Date | Type | Book | Page | Price | Grantor | Grantee | |
|
12/18/2024 |
|
Hmstd Off & |
$0 |
FREDERICK WAYMON |
FREDERICK MIEL |
||
|
2/9/1996 |
|
Deeds |
$0 |
FREDERICK WAYMON E & DENISE |
FREDERICK DENISE |
||
|
4/1/1977 |
|
Historical |
$0 |
|
FREDERICK WAYMON & DENISE |
||
| Last Mailed Notice of Value (N.O.V.) Information/History | ||||||||
|---|---|---|---|---|---|---|---|---|
| Year | Date | Market Value | Taxable Market Value | Gross Assessed | Exemption | Net Assessed | ||
|
2026 |
02/23/2026 |
83,500 |
27,019 |
2,971 |
0 |
2,971 |
||
|
2025 |
02/14/2025 |
78,500 |
25,733 |
2,829 |
0 |
2,829 |
||
|
2024 |
02/13/2024 |
66,000 |
24,508 |
2,695 |
0 |
2,695 |
||
|
2023 |
02/14/2023 |
56,500 |
23,341 |
2,567 |
0 |
2,567 |
||
|
2022 |
03/15/2022 |
54,500 |
22,230 |
2,444 |
0 |
2,444 |
||
| Property Building Permit History | |||||||||||
|---|---|---|---|---|---|---|---|---|---|---|---|
| Issued | Permit # | Provided by | Bldg # | Description | Est Construction Cost | Status | |||||
| No Building Permit records returned. | |||||||||||
| Click button on building number to access detailed information: | ||||||
|---|---|---|---|---|---|---|
| Bldg # | Vacant/Improved Land | Bldg Description | Year Built | SqFt | # Stories | |
|
1 |
Improved |
Ranch 1 Story |
1948 |
939 |
1 Stories |
|