|
|
|
| Larry Stein Oklahoma County Assessor (405) 713-1200 - Public Access System |
|
|
|
|
|
|
| Real Property Display - Screen Produced 4/8/2026 3:13:09 PM | ||||
|---|---|---|---|---|
| Account: R038115600 | Type: Residential | Location: |
1932 NE 25TH ST |
|
| Building Name/Occupant: |
|
OKLAHOMA CITY |
||
| Owner Name 1: | WOODEN KEENAN |
Parcel PIN#: |
2690-03-811-5600 |
|
| Owner Name 2: | 1/4 section #: |
2690 |
||
| Owner Name 3: | Parent Acct: |
|
||
| Billing Address: | 1932 NE 25TH ST | Tax District: |
|
|
| City, State, Zip | OKLAHOMA CITY, OK 73111-3344 | School System: |
Oklahoma City #89 |
|
|
Country: (If noted) |
Land Size: |
0.1550 Acres |
||
|
Land Value: 6,413 |
|
|||
|
Sect 23-T12N-R3W Qtr SE |
WALLACE ADKINS ADD
Block
002
Lot
000
|
|||
| Full Legal Description: WALLACE ADKINS ADD 002 000 LOTS 7 & 8 |
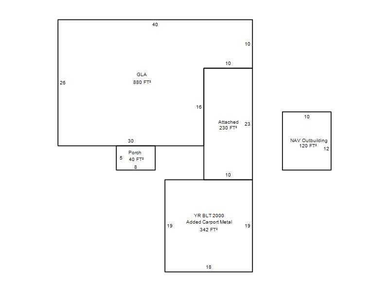
| Photo & Sketch (if available) | Comp Sales (ordered by relevancy) |
|
||||||||||||||||||
|
||||||||||||||||||||
| Value History (*The County Treasurer 405-713-1300 posts & collects actual tax amounts. Contact information HERE) | |||||||||||||
|---|---|---|---|---|---|---|---|---|---|---|---|---|---|
| Year | Market Value | Taxable Mkt Value | Gross Assessed | Exemption | Net Assessed | Millage | Est. Tax | Tax Savings | |||||
|
2026 |
71,000 |
34,717 |
3,818 |
0 |
3,818 |
122.90 |
$469 |
$491 |
|||||
|
2025 |
63,000 |
33,064 |
3,636 |
0 |
3,636 |
122.90 |
$447 |
$405 |
|||||
|
2024 |
60,000 |
31,490 |
3,463 |
0 |
3,463 |
123.89 |
$429 |
$389 |
|||||
|
2023 |
51,000 |
29,991 |
3,298 |
0 |
3,298 |
122.82 |
$405 |
$284 |
|||||
|
2022 |
49,000 |
28,563 |
3,140 |
0 |
3,140 |
117.63 |
$370 |
$264 |
|||||
| Property Account Status/Adjustments/Exemptions | ||||||
|---|---|---|---|---|---|---|
| Account # | Exemption Description | Amount | ||||
| No adjustment/exemption records returned. | ||||||
| Property Deed Transaction History (Recorded in the County Clerk's Office) | |||||||
|---|---|---|---|---|---|---|---|
| Date | Type | Book | Page | Price | Grantor | Grantee | |
|
3/8/2022 |
|
Hmstd Off & |
$0 |
RUSSELL EMMA |
WOODEN KEENAN |
||
|
4/28/2000 |
|
Deeds |
$0 |
BARBER ELI H |
BARBER CHRISTINA M |
||
|
4/28/2000 |
|
Deeds |
$30,000 |
BARBER CHRISTINA M |
RUSSELL EMMA |
||
|
11/11/1911 |
|
Historical |
$0 |
|
BARBER ELI H |
||
| Last Mailed Notice of Value (N.O.V.) Information/History | ||||||||
|---|---|---|---|---|---|---|---|---|
| Year | Date | Market Value | Taxable Market Value | Gross Assessed | Exemption | Net Assessed | ||
|
2026 |
02/23/2026 |
71,000 |
34,717 |
3,818 |
0 |
3,818 |
||
|
2025 |
02/14/2025 |
63,000 |
33,064 |
3,636 |
0 |
3,636 |
||
|
2024 |
02/13/2024 |
60,000 |
31,490 |
3,463 |
0 |
3,463 |
||
|
2023 |
02/14/2023 |
51,000 |
29,991 |
3,298 |
0 |
3,298 |
||
|
2022 |
03/15/2022 |
49,000 |
28,563 |
3,140 |
0 |
3,140 |
||
| Property Building Permit History | |||||||||||
|---|---|---|---|---|---|---|---|---|---|---|---|
| Issued | Permit # | Provided by | Bldg # | Description | Est Construction Cost | Status | |||||
| No Building Permit records returned. | |||||||||||
| Click button on building number to access detailed information: | ||||||
|---|---|---|---|---|---|---|
| Bldg # | Vacant/Improved Land | Bldg Description | Year Built | SqFt | # Stories | |
|
1 |
Improved |
Ranch 1 Story |
1950 |
880 |
1 Stories |
|