|
|
|
| Larry Stein Oklahoma County Assessor (405) 713-1200 - Public Access System |
|
|
|
|
|
|
| Real Property Display - Screen Produced 4/8/2026 3:10:23 PM | ||||
|---|---|---|---|---|
| Account: R038116650 | Type: Residential | Location: |
1912 NE 25TH ST |
|
| Building Name/Occupant: |
|
OKLAHOMA CITY |
||
| Owner Name 1: | JOHNSON ROBERT III |
Parcel PIN#: |
2690-03-811-6650 |
|
| Owner Name 2: | 1/4 section #: |
2690 |
||
| Owner Name 3: | Parent Acct: |
|
||
| Billing Address: | 1912 NE 25TH ST | Tax District: |
|
|
| City, State, Zip | OKLAHOMA CITY, OK 73111-3344 | School System: |
Oklahoma City #89 |
|
|
Country: (If noted) |
Land Size: |
0.1550 Acres |
||
|
Land Value: 6,413 |
|
|||
|
Sect 23-T12N-R3W Qtr SE |
WALLACE ADKINS ADD
Block
002
Lot
000
|
|||
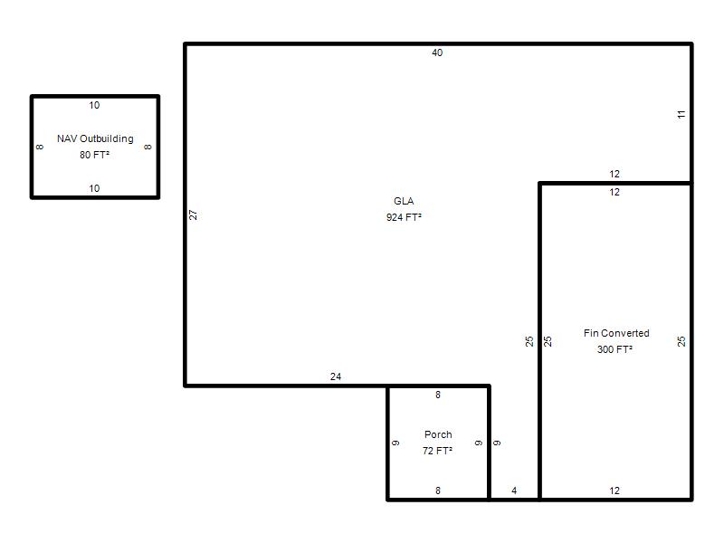
| Full Legal Description: WALLACE ADKINS ADD 002 000 LOTS 17 & 18 |
| Photo & Sketch (if available) | Comp Sales (ordered by relevancy) |
|
||||||||||||||||||
|
||||||||||||||||||||
| Value History (*The County Treasurer 405-713-1300 posts & collects actual tax amounts. Contact information HERE) | |||||||||||||
|---|---|---|---|---|---|---|---|---|---|---|---|---|---|
| Year | Market Value | Taxable Mkt Value | Gross Assessed | Exemption | Net Assessed | Millage | Est. Tax | Tax Savings | |||||
|
2026 |
96,500 |
29,271 |
3,219 |
0 |
3,219 |
122.90 |
$396 |
$909 |
|||||
|
2025 |
92,500 |
27,878 |
3,066 |
0 |
3,066 |
122.90 |
$377 |
$874 |
|||||
|
2024 |
89,000 |
26,551 |
2,920 |
0 |
2,920 |
123.89 |
$362 |
$851 |
|||||
|
2023 |
75,000 |
25,287 |
2,781 |
0 |
2,781 |
122.82 |
$342 |
$672 |
|||||
|
2022 |
74,500 |
24,083 |
2,648 |
0 |
2,648 |
117.63 |
$312 |
$652 |
|||||
| Property Account Status/Adjustments/Exemptions | ||
|---|---|---|
| Account # | Exemption Description | Amount |
|
R038116650 |
5% Capped Account |
0 |
| Property Deed Transaction History (Recorded in the County Clerk's Office) | |||||||
|---|---|---|---|---|---|---|---|
| Date | Type | Book | Page | Price | Grantor | Grantee | |
|
4/18/2024 |
|
Hmstd Off & |
$0 |
JOHNSON ROBERT JR |
JOHNSON ROBERT III |
||
|
6/10/2020 |
|
Hmstd Off & |
$0 |
JOHNSON ROBERT JR & MYRTLE |
JOHNSON ROBERT JR |
||
|
11/11/1911 |
|
Historical |
$0 |
|
JOHNSON ROBERT JR & MYRTLE |
||
| Last Mailed Notice of Value (N.O.V.) Information/History | ||||||||
|---|---|---|---|---|---|---|---|---|
| Year | Date | Market Value | Taxable Market Value | Gross Assessed | Exemption | Net Assessed | ||
|
2026 |
02/23/2026 |
96,500 |
29,271 |
3,219 |
0 |
3,219 |
||
|
2025 |
02/14/2025 |
92,500 |
27,878 |
3,066 |
0 |
3,066 |
||
|
2024 |
02/13/2024 |
89,000 |
26,551 |
2,920 |
0 |
2,920 |
||
|
2023 |
02/14/2023 |
75,000 |
25,287 |
2,781 |
0 |
2,781 |
||
|
2022 |
03/15/2022 |
74,500 |
24,083 |
2,648 |
0 |
2,648 |
||
| Property Building Permit History | |||||||||||
|---|---|---|---|---|---|---|---|---|---|---|---|
| Issued | Permit # | Provided by | Bldg # | Description | Est Construction Cost | Status | |||||
| No Building Permit records returned. | |||||||||||
| Click button on building number to access detailed information: | ||||||
|---|---|---|---|---|---|---|
| Bldg # | Vacant/Improved Land | Bldg Description | Year Built | SqFt | # Stories | |
|
1 |
Improved |
Ranch 1 Story |
1966 |
924 |
1 Stories |
|