|
|
|
| Larry Stein Oklahoma County Assessor (405) 713-1200 - Public Access System |
|
|
|
|
|
|
| Real Property Display - Screen Produced 4/8/2026 3:12:34 PM | ||||
|---|---|---|---|---|
| Account: R038118040 | Type: Residential | Location: |
1905 NE 24TH ST |
|
| Building Name/Occupant: |
|
OKLAHOMA CITY |
||
| Owner Name 1: | HORTON WILLIAM |
Parcel PIN#: |
2690-03-811-8040 |
|
| Owner Name 2: | 1/4 section #: |
2690 |
||
| Owner Name 3: | Parent Acct: |
|
||
| Billing Address: | 1905 NE 24TH ST | Tax District: |
|
|
| City, State, Zip | OKLAHOMA CITY , OK 73111 | School System: |
Oklahoma City #89 |
|
|
Country: (If noted) |
Land Size: |
0.1550 Acres |
||
|
Land Value: 6,413 |
|
|||
|
Sect 23-T12N-R3W Qtr SE |
WALLACE ADKINS ADD
Block
002
Lot
000
|
|||
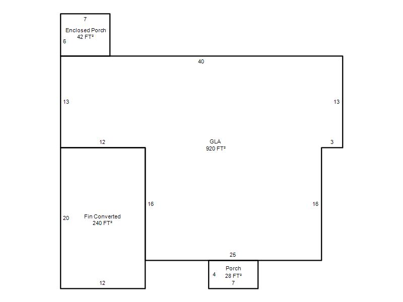
| Full Legal Description: WALLACE ADKINS ADD 002 000 LOTS 27 & 28 |
| Photo & Sketch (if available) | Comp Sales (ordered by relevancy) |
|
||||||||||||||||||
|
||||||||||||||||||||
| Value History (*The County Treasurer 405-713-1300 posts & collects actual tax amounts. Contact information HERE) | |||||||||||||
|---|---|---|---|---|---|---|---|---|---|---|---|---|---|
| Year | Market Value | Taxable Mkt Value | Gross Assessed | Exemption | Net Assessed | Millage | Est. Tax | Tax Savings | |||||
|
2026 |
82,500 |
42,914 |
4,719 |
0 |
4,719 |
122.90 |
$580 |
$535 |
|||||
|
2025 |
77,500 |
40,871 |
4,495 |
0 |
4,495 |
122.90 |
$553 |
$495 |
|||||
|
2024 |
73,500 |
38,925 |
4,280 |
0 |
4,280 |
123.89 |
$530 |
$471 |
|||||
|
2023 |
61,000 |
37,072 |
4,077 |
0 |
4,077 |
122.82 |
$501 |
$323 |
|||||
|
2022 |
59,000 |
35,307 |
3,882 |
0 |
3,882 |
117.63 |
$457 |
$307 |
|||||
| Property Account Status/Adjustments/Exemptions | ||
|---|---|---|
| Account # | Exemption Description | Amount |
|
R038118040 |
5% Capped Account |
0 |
| Property Deed Transaction History (Recorded in the County Clerk's Office) | ||||||||||
|---|---|---|---|---|---|---|---|---|---|---|
| Date | Type | Book | Page | Price | Grantor | Grantee | ||||
|
4/20/2018 |
|
Deeds |
$12,500 |
ALTRAMA LLC |
HORTON WILLIAM |
|||||
|
12/23/2004 |
|
Deeds |
$0 |
ROBINSON DARLING A OVERSTREET EVELYN J |
ALTRAMA LLC |
|||||
|
12/20/2004 |
|
Deeds |
$15,000 |
ROBINSON DARLING A |
SEIBEL PHILLIP |
|||||
|
12/20/2004 |
|
Other |
$0 |
SEIBEL PHILLIP |
ALTRAMA LLC |
|||||
|
7/7/1997 |
|
Historical |
$0 |
ROBINSON DARLING |
ROBINSON DARLING A |
|||||
| Last Mailed Notice of Value (N.O.V.) Information/History | ||||||||
|---|---|---|---|---|---|---|---|---|
| Year | Date | Market Value | Taxable Market Value | Gross Assessed | Exemption | Net Assessed | ||
|
2026 |
02/23/2026 |
82,500 |
42,914 |
4,719 |
0 |
4,719 |
||
|
2025 |
02/14/2025 |
77,500 |
40,871 |
4,495 |
0 |
4,495 |
||
|
2024 |
02/13/2024 |
73,500 |
38,925 |
4,280 |
0 |
4,280 |
||
|
2023 |
02/14/2023 |
61,000 |
37,072 |
4,077 |
0 |
4,077 |
||
|
2022 |
03/15/2022 |
59,000 |
35,307 |
3,882 |
0 |
3,882 |
||
| Property Building Permit History | |||||||||||
|---|---|---|---|---|---|---|---|---|---|---|---|
| Issued | Permit # | Provided by | Bldg # | Description | Est Construction Cost | Status | |||||
| No Building Permit records returned. | |||||||||||
| Click button on building number to access detailed information: | ||||||
|---|---|---|---|---|---|---|
| Bldg # | Vacant/Improved Land | Bldg Description | Year Built | SqFt | # Stories | |
|
1 |
Improved |
Ranch 1 Story |
1948 |
920 |
1 Stories |
|