|
|
|
| Larry Stein Oklahoma County Assessor (405) 713-1200 - Public Access System |
|
|
|
|
|
|
| Real Property Display - Screen Produced 4/8/2026 3:14:34 PM | ||||
|---|---|---|---|---|
| Account: R038118750 | Type: Commercial | Location: |
1917 NE 24TH ST |
|
| Building Name/Occupant: |
PETITE BEAUTY SALON / CLOTHES CLOSET |
OKLAHOMA CITY |
||
| Owner Name 1: | CONFIDENCEBYDAY LLC |
Parcel PIN#: |
2690-03-811-8750 |
|
| Owner Name 2: | 1/4 section #: |
2690 |
||
| Owner Name 3: | Parent Acct: |
|
||
| Billing Address: | 1917 NE 24TH ST | Tax District: |
|
|
| City, State, Zip | OKLAHOMA CITY, OK 73111 | School System: |
Oklahoma City #89 |
|
|
Country: (If noted) |
Land Size: |
6,750.0000 Square Feet |
||
|
Land Value: 27,000 |
|
|||
|
Sect 23-T12N-R3W Qtr SE |
WALLACE ADKINS ADD
Block
002
Lot
000
|
|||
| Full Legal Description: WALLACE ADKINS ADD 002 000 LOTS 33 & 34 |
| No comparable sales report available. | ||||||||||||||||||||||
|
||||||||||||||||||||||
| Value History (*The County Treasurer 405-713-1300 posts & collects actual tax amounts. Contact information HERE) | |||||||||||||
|---|---|---|---|---|---|---|---|---|---|---|---|---|---|
| Year | Market Value | Taxable Mkt Value | Gross Assessed | Exemption | Net Assessed | Millage | Est. Tax | Tax Savings | |||||
|
2026 |
111,801 |
111,801 |
12,298 |
0 |
12,298 |
122.90 |
$1,511 |
$0 |
|||||
|
2025 |
127,837 |
118,861 |
13,074 |
0 |
13,074 |
122.90 |
$1,607 |
$121 |
|||||
|
2024 |
113,201 |
113,201 |
12,452 |
0 |
12,452 |
123.89 |
$1,543 |
$0 |
|||||
|
2023 |
113,201 |
113,201 |
12,452 |
0 |
12,452 |
122.82 |
$1,529 |
$0 |
|||||
|
2022 |
113,201 |
113,201 |
12,452 |
0 |
12,452 |
117.63 |
$1,465 |
$0 |
|||||
| Property Account Status/Adjustments/Exemptions | ||
|---|---|---|
| Account # | Exemption Description | Amount |
|
R038118750 |
5% Capped Account |
0 |
| Property Deed Transaction History (Recorded in the County Clerk's Office) | ||||||||||
|---|---|---|---|---|---|---|---|---|---|---|
| Date | Type | Book | Page | Price | Grantor | Grantee | ||||
|
10/28/2021 |
|
Mult Parcel |
$35,000 |
RUFFIN RICHARDSON TRACY |
CONFIDENCEBYDAY LLC |
|||||
|
1/29/2021 |
|
Hmstd Off & |
$0 |
R & R RENTALS & INVESTMENTS LLC |
RUFFIN RICHARDSON TRACY |
|||||
|
3/27/2020 |
|
Hmstd Off & |
$0 |
WEEKLY JAMES & MARIE |
WEEKLY MARIE |
|||||
|
3/27/2020 |
|
Hmstd Off & |
$0 |
WEEKLY MARIE |
WEEKLY MARIE |
|||||
|
3/27/2020 |
|
Mult Parcel |
$32,000 |
WEEKLY MARIE |
R & R RENTALS & INVESTMENTS LLC |
|||||
| Last Mailed Notice of Value (N.O.V.) Information/History | ||||||||
|---|---|---|---|---|---|---|---|---|
| Year | Date | Market Value | Taxable Market Value | Gross Assessed | Exemption | Net Assessed | ||
|
2025 |
03/14/2025 |
127,837 |
118,861 |
13,074 |
0 |
13,074 |
||
|
2022 |
04/05/2022 |
113,201 |
113,201 |
12,452 |
0 |
12,452 |
||
|
2021 |
03/22/2021 |
79,545 |
79,545 |
8,749 |
0 |
8,749 |
||
|
2020 |
03/16/2020 |
76,782 |
31,586 |
3,474 |
0 |
3,474 |
||
|
2020 |
04/24/2020 |
76,782 |
31,586 |
3,474 |
0 |
3,474 |
||
| Property Building Permit History | ||||||
|---|---|---|---|---|---|---|
| Issued | Permit # | Provided by | Bldg # | Description | Est Construction Cost | Status |
|
11/19/1992 |
10189603 |
OKLAHOMA CITY |
1 |
Add On |
15,000 |
Inactive |
| Click button on building number to access detailed information: | ||||||
|---|---|---|---|---|---|---|
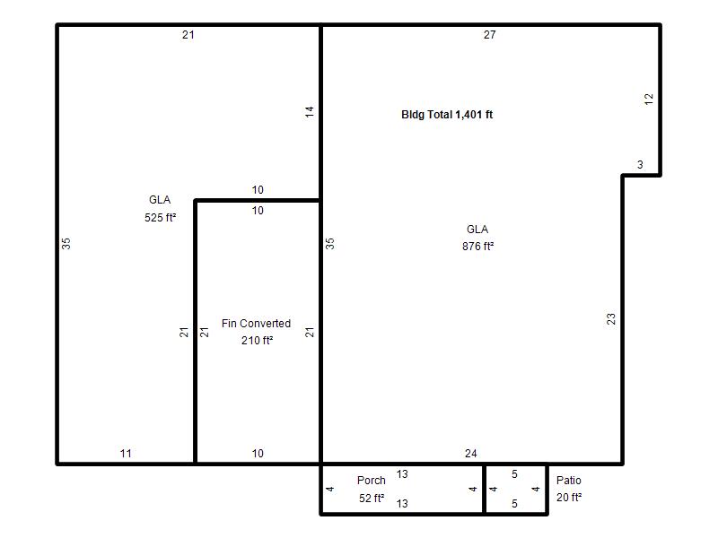
| Bldg # | Vacant/Improved Land | Bldg Description | Year Built | SqFt | # Stories | |
|
1 |
Improved |
Ranch 1 Story |
1948 |
1,401 |
1 Stories |
|