|
|
|
| Larry Stein Oklahoma County Assessor (405) 713-1200 - Public Access System |
|
|
|
|
|
|
| Real Property Display - Screen Produced 4/8/2026 3:34:29 PM | ||||
|---|---|---|---|---|
| Account: R070176999 | Type: Residential | Location: |
2707 N LYON DR |
|
| Building Name/Occupant: |
|
OKLAHOMA CITY |
||
| Owner Name 1: | SMITH WILLIE RUTH TRS |
Parcel PIN#: |
2690-07-017-6999 |
|
| Owner Name 2: | SMITH WILLIE RUTH REV LIV TRUST | 1/4 section #: |
2690 |
|
| Owner Name 3: | Parent Acct: |
|
||
| Billing Address: | 6705 BRANIFF DR | Tax District: |
|
|
| City, State, Zip | OKLAHOMA CITY, OK 73105-1248 | School System: |
Oklahoma City #89 |
|
|
Country: (If noted) |
Land Size: |
0.0894 Acres |
||
|
Land Value: 3,699 |
|
|||
|
Sect 23-T12N-R3W Qtr SE |
LYON SUB ADDITION
Block
003
Lot
016
|
|||
| Full Legal Description: LYON SUB ADDITION 003 016 |
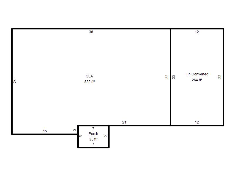
| Photo & Sketch (if available) | Comp Sales (ordered by relevancy) |
|
||||||||||||||||||
|
||||||||||||||||||||
| Value History (*The County Treasurer 405-713-1300 posts & collects actual tax amounts. Contact information HERE) | |||||||||||||
|---|---|---|---|---|---|---|---|---|---|---|---|---|---|
| Year | Market Value | Taxable Mkt Value | Gross Assessed | Exemption | Net Assessed | Millage | Est. Tax | Tax Savings | |||||
|
2026 |
60,500 |
20,939 |
2,302 |
0 |
2,302 |
122.90 |
$283 |
$535 |
|||||
|
2025 |
57,500 |
19,942 |
2,193 |
0 |
2,193 |
122.90 |
$270 |
$508 |
|||||
|
2024 |
54,000 |
18,993 |
2,088 |
0 |
2,088 |
123.89 |
$259 |
$477 |
|||||
|
2023 |
44,000 |
18,089 |
1,989 |
0 |
1,989 |
122.82 |
$244 |
$350 |
|||||
|
2022 |
29,000 |
17,228 |
1,893 |
0 |
1,893 |
117.63 |
$223 |
$152 |
|||||
| Property Account Status/Adjustments/Exemptions | ||
|---|---|---|
| Account # | Exemption Description | Amount |
|
R070176999 |
5% Capped Account |
0 |
| Property Deed Transaction History (Recorded in the County Clerk's Office) | |||||||
|---|---|---|---|---|---|---|---|
| Date | Type | Book | Page | Price | Grantor | Grantee | |
|
11/29/2023 |
|
Deeds |
$0 |
SMITH WILLIE RUTH |
SMITH WILLIE RUTH TRS |
||
|
11/11/2000 |
|
Deeds |
$15,000 |
DUNLAP ZUEMAC PER REP KEMP BERNICE D |
SMITH WILLIE RUTH |
||
|
11/10/2000 |
|
Deeds |
$0 |
PAXTON NAOMI KEMP BERNICE D |
DUNLAP ZUEMAC PER REP |
||
|
11/11/1911 |
|
Historical |
$0 |
|
PAXTON NAOMI |
||
| Last Mailed Notice of Value (N.O.V.) Information/History | ||||||||
|---|---|---|---|---|---|---|---|---|
| Year | Date | Market Value | Taxable Market Value | Gross Assessed | Exemption | Net Assessed | ||
|
2026 |
02/23/2026 |
60,500 |
20,939 |
2,302 |
0 |
2,302 |
||
|
2025 |
02/14/2025 |
57,500 |
19,942 |
2,193 |
0 |
2,193 |
||
|
2024 |
02/13/2024 |
54,000 |
18,993 |
2,088 |
0 |
2,088 |
||
|
2023 |
02/14/2023 |
44,000 |
18,089 |
1,989 |
0 |
1,989 |
||
|
2022 |
03/15/2022 |
29,000 |
17,228 |
1,893 |
0 |
1,893 |
||
| Property Building Permit History | |||||||||||
|---|---|---|---|---|---|---|---|---|---|---|---|
| Issued | Permit # | Provided by | Bldg # | Description | Est Construction Cost | Status | |||||
| No Building Permit records returned. | |||||||||||
| Click button on building number to access detailed information: | ||||||
|---|---|---|---|---|---|---|
| Bldg # | Vacant/Improved Land | Bldg Description | Year Built | SqFt | # Stories | |
|
1 |
Improved |
Ranch 1 Story |
1947 |
822 |
1 Stories |
|