|
|
|
| Larry Stein Oklahoma County Assessor (405) 713-1200 - Public Access System |
|
|
|
|
|
|
| Real Property Display - Screen Produced 4/8/2026 3:34:29 PM | ||||
|---|---|---|---|---|
| Account: R070258200 | Type: Residential | Location: |
1629 NE 26TH ST |
|
| Building Name/Occupant: |
|
OKLAHOMA CITY |
||
| Owner Name 1: | HATHORNE CHESTER R & C |
Parcel PIN#: |
2690-07-025-8200 |
|
| Owner Name 2: | 1/4 section #: |
2690 |
||
| Owner Name 3: | Parent Acct: |
|
||
| Billing Address: | 1629 NE 26TH ST | Tax District: |
|
|
| City, State, Zip | OKLAHOMA CITY, OK 73111-3202 | School System: |
Oklahoma City #89 |
|
|
Country: (If noted) |
Land Size: |
0.1550 Acres |
||
|
Land Value: 6,413 |
|
|||
|
Sect 23-T12N-R3W Qtr SE |
ETHELS PARK PLACE
Block
006
Lot
000
|
|||
| Full Legal Description: ETHELS PARK PLACE 006 000 LOTS 39 & 40 |
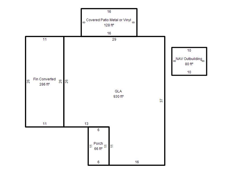
| Photo & Sketch (if available) | Comp Sales (ordered by relevancy) |
|
||||||||||||||||||
|
||||||||||||||||||||
| Value History (*The County Treasurer 405-713-1300 posts & collects actual tax amounts. Contact information HERE) | |||||||||||||
|---|---|---|---|---|---|---|---|---|---|---|---|---|---|
| Year | Market Value | Taxable Mkt Value | Gross Assessed | Exemption | Net Assessed | Millage | Est. Tax | Tax Savings | |||||
|
2026 |
83,500 |
20,072 |
2,207 |
1,000 |
1,207 |
122.90 |
$148 |
$980 |
|||||
|
2025 |
76,000 |
19,488 |
2,143 |
1,000 |
1,143 |
122.90 |
$141 |
$887 |
|||||
|
2024 |
73,500 |
18,921 |
2,080 |
1,000 |
1,080 |
123.89 |
$134 |
$868 |
|||||
|
2023 |
63,000 |
18,370 |
2,019 |
1,000 |
1,019 |
122.82 |
$125 |
$726 |
|||||
|
2022 |
46,000 |
17,835 |
1,961 |
1,000 |
961 |
117.63 |
$113 |
$482 |
|||||
| Property Account Status/Adjustments/Exemptions | ||
|---|---|---|
| Account # | Exemption Description | Amount |
|
R070258200 |
3% Cap Homestead |
0 |
|
R070258200 |
Homestead |
1,000 |
| Property Deed Transaction History (Recorded in the County Clerk's Office) | |||||||
|---|---|---|---|---|---|---|---|
| Date | Type | Book | Page | Price | Grantor | Grantee | |
|
11/11/1911 |
|
Historical |
$0 |
|
HATHORNE CHESTER R & C |
||
| Last Mailed Notice of Value (N.O.V.) Information/History | ||||||||
|---|---|---|---|---|---|---|---|---|
| Year | Date | Market Value | Taxable Market Value | Gross Assessed | Exemption | Net Assessed | ||
|
2026 |
02/23/2026 |
83,500 |
20,072 |
2,207 |
1,000 |
1,207 |
||
|
2025 |
02/14/2025 |
76,000 |
19,488 |
2,143 |
1,000 |
1,143 |
||
|
2024 |
02/13/2024 |
73,500 |
18,921 |
2,080 |
1,000 |
1,080 |
||
|
2023 |
02/14/2023 |
63,000 |
18,370 |
2,019 |
1,000 |
1,019 |
||
|
2022 |
03/15/2022 |
46,000 |
17,835 |
1,961 |
1,000 |
961 |
||
| Property Building Permit History | ||||||
|---|---|---|---|---|---|---|
| Issued | Permit # | Provided by | Bldg # | Description | Est Construction Cost | Status |
|
10/7/2004 |
10296942 |
OKLAHOMA CITY |
1 |
Fire Remodel |
5,000 |
Inactive |
|
10/4/2004 |
10296712 |
OKLAHOMA CITY |
1 |
Burn - Trip |
20,000 |
Inactive |
| Click button on building number to access detailed information: | ||||||
|---|---|---|---|---|---|---|
| Bldg # | Vacant/Improved Land | Bldg Description | Year Built | SqFt | # Stories | |
|
1 |
Improved |
Ranch 1 Story |
1963 |
930 |
1 Stories |
|