|
|
|
| Larry Stein Oklahoma County Assessor (405) 713-1200 - Public Access System |
|
|
|
|
|
|
| Real Property Display - Screen Produced 4/12/2026 3:48:44 AM | ||||
|---|---|---|---|---|
| Account: R034911305 | Type: Residential | Location: |
2921 N FONSHILL AVE |
|
| Building Name/Occupant: |
|
OKLAHOMA CITY |
||
| Owner Name 1: | ADAME ROSA ISELA |
Parcel PIN#: |
2691-03-491-1305 |
|
| Owner Name 2: | 1/4 section #: |
2691 |
||
| Owner Name 3: | Parent Acct: |
|
||
| Billing Address: | 2921 N FONSHILL AVE | Tax District: |
|
|
| City, State, Zip | OKLAHOMA CITY, OK 73111-3080 | School System: |
Oklahoma City #89 |
|
|
Country: (If noted) |
Land Size: |
0.1377 Acres |
||
|
Land Value: 2,460 |
|
|||
|
Sect 23-T12N-R3W Qtr SW |
CAPITOL COURTS ADD
Block
003
Lot
000
|
|||
| Full Legal Description: CAPITOL COURTS ADD 003 000 LOTS 21 & 22 |
| No comparable sales report available. | ||||||||||||||||||||||
|
||||||||||||||||||||||
| Value History (*The County Treasurer 405-713-1300 posts & collects actual tax amounts. Contact information HERE) | |||||||||||||
|---|---|---|---|---|---|---|---|---|---|---|---|---|---|
| Year | Market Value | Taxable Mkt Value | Gross Assessed | Exemption | Net Assessed | Millage | Est. Tax | Tax Savings | |||||
|
2026 |
130,755 |
130,755 |
14,383 |
0 |
14,383 |
122.90 |
$1,768 |
$0 |
|||||
|
2025 |
96,210 |
51,712 |
5,687 |
0 |
5,687 |
122.90 |
$699 |
$602 |
|||||
|
2024 |
53,591 |
49,250 |
5,416 |
0 |
5,416 |
123.89 |
$671 |
$59 |
|||||
|
2023 |
19,333 |
19,333 |
2,126 |
0 |
2,126 |
122.82 |
$261 |
$0 |
|||||
|
2022 |
18,939 |
9,726 |
1,068 |
0 |
1,068 |
117.63 |
$126 |
$119 |
|||||
| Property Account Status/Adjustments/Exemptions | ||||||
|---|---|---|---|---|---|---|
| Account # | Exemption Description | Amount | ||||
| No adjustment/exemption records returned. | ||||||
| Property Deed Transaction History (Recorded in the County Clerk's Office) | ||||||||||
|---|---|---|---|---|---|---|---|---|---|---|
| Date | Type | Book | Page | Price | Grantor | Grantee | ||||
|
1/6/2025 |
|
Deeds |
$160,000 |
OK FONSHILL LLC |
ADAME ROSA ISELA |
|||||
|
3/28/2022 |
|
Hmstd Off & |
$0 |
DELGADO WALTER |
OK FONSHILL LLC |
|||||
|
3/9/2022 |
|
Mult Parcel |
$75,000 |
HAPPYVILLE HOMES LLC |
DELGADO WALTER |
|||||
|
10/17/2018 |
|
Deeds |
$0 |
NICHOLS DANNY B & KAREN J |
UTOPIA VILLAGE LLC |
|||||
|
10/17/2018 |
|
Other |
$0 |
UTOPIA VILLAGE LLC |
HAPPYVILLE HOMES LLC |
|||||
| Last Mailed Notice of Value (N.O.V.) Information/History | ||||||||
|---|---|---|---|---|---|---|---|---|
| Year | Date | Market Value | Taxable Market Value | Gross Assessed | Exemption | Net Assessed | ||
|
2026 |
02/23/2026 |
130,755 |
130,755 |
14,383 |
0 |
14,383 |
||
|
2025 |
02/14/2025 |
96,210 |
51,712 |
5,687 |
0 |
5,687 |
||
|
2024 |
03/01/2024 |
53,591 |
49,250 |
5,416 |
0 |
5,416 |
||
|
2023 |
02/14/2023 |
19,333 |
19,333 |
2,126 |
0 |
2,126 |
||
|
2022 |
03/15/2022 |
18,939 |
9,726 |
1,068 |
0 |
1,068 |
||
| Property Building Permit History | ||||||
|---|---|---|---|---|---|---|
| Issued | Permit # | Provided by | Bldg # | Description | Est Construction Cost | Status |
|
12/4/2023 |
|
|
|
Remodeled |
|
Inactive |
|
4/17/2017 |
10493366 |
COUNTY |
1 |
Remodeled |
0 |
Inactive |
| Click button on building number to access detailed information: | ||||||
|---|---|---|---|---|---|---|
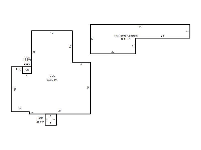
| Bldg # | Vacant/Improved Land | Bldg Description | Year Built | SqFt | # Stories | |
|
1 |
Improved |
Ranch 1 Story |
1925 |
1,031 |
1 Stories |
|
|
2 |
Improved |
Salvage |
1944 |
480 |
1 Stories |
|