|
|
|
| Larry Stein Oklahoma County Assessor (405) 713-1200 - Public Access System |
|
|
|
|
|
|
| Real Property Display - Screen Produced 4/10/2026 6:23:53 AM | ||||
|---|---|---|---|---|
| Account: R034914005 | Type: Residential | Location: |
1439 NE 26TH ST |
|
| Building Name/Occupant: |
|
OKLAHOMA CITY |
||
| Owner Name 1: | HEADLANDS ASSET MANAGEMENT FUND III LP SERIES G |
Parcel PIN#: |
2691-03-491-4005 |
|
| Owner Name 2: | 1/4 section #: |
2691 |
||
| Owner Name 3: | Parent Acct: |
|
||
| Billing Address: | 765 BAYWOOD DR STE 340 | Tax District: |
|
|
| City, State, Zip | PETALUMA , CA 94954 | School System: |
Oklahoma City #89 |
|
|
Country: (If noted) |
Land Size: |
0.1928 Acres |
||
|
Land Value: 2,562 |
|
|||
|
Sect 23-T12N-R3W Qtr SW |
CAPITOL COURTS ADD
Block
009
Lot
000
|
|||
| Full Legal Description: CAPITOL COURTS ADD 009 000 LOTS 20 & 21 |
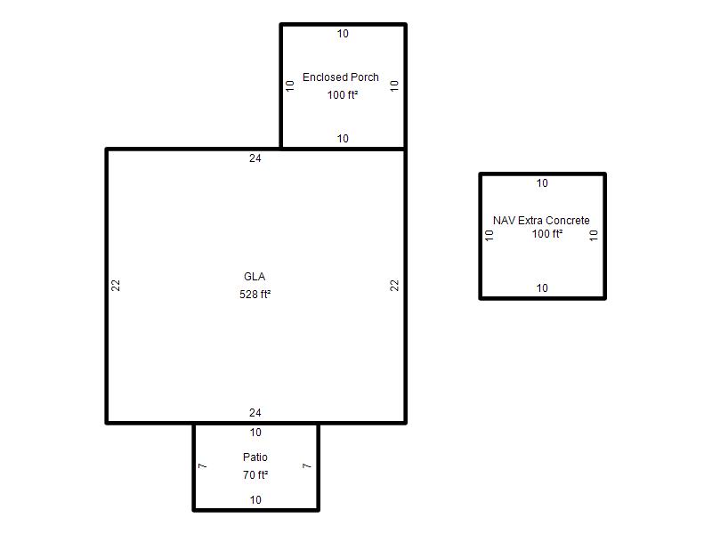
| Photo & Sketch (if available) | Comp Sales (ordered by relevancy) |
|
||||||||||||||||||
|
||||||||||||||||||||
| Value History (*The County Treasurer 405-713-1300 posts & collects actual tax amounts. Contact information HERE) | |||||||||||||
|---|---|---|---|---|---|---|---|---|---|---|---|---|---|
| Year | Market Value | Taxable Mkt Value | Gross Assessed | Exemption | Net Assessed | Millage | Est. Tax | Tax Savings | |||||
|
2026 |
46,500 |
24,789 |
2,725 |
0 |
2,725 |
122.90 |
$335 |
$294 |
|||||
|
2025 |
44,500 |
23,609 |
2,596 |
0 |
2,596 |
122.90 |
$319 |
$282 |
|||||
|
2024 |
43,000 |
22,485 |
2,472 |
0 |
2,472 |
123.89 |
$306 |
$280 |
|||||
|
2023 |
35,500 |
21,415 |
2,355 |
0 |
2,355 |
122.82 |
$289 |
$190 |
|||||
|
2022 |
24,000 |
20,396 |
2,242 |
0 |
2,242 |
117.63 |
$264 |
$47 |
|||||
| Property Account Status/Adjustments/Exemptions | ||
|---|---|---|
| Account # | Exemption Description | Amount |
|
R034914005 |
5% Capped Account |
0 |
| Property Deed Transaction History (Recorded in the County Clerk's Office) | ||||||||||
|---|---|---|---|---|---|---|---|---|---|---|
| Date | Type | Book | Page | Price | Grantor | Grantee | ||||
|
3/29/2018 |
|
Deeds |
$11,500 |
HARBOUR PORTFOLIO VI LP |
HEADLANDS ASSET MANAGEMENT FUND III LP SERIES G |
|||||
|
4/7/2011 |
|
Other |
$0 |
FEDERAL NATIONAL MORTGAGE ASSOCIATION |
HARBOUR PORTFOLIO VI LP |
|||||
|
8/20/2010 |
|
Hmstd Off & |
$0 |
MADISON VANESTER |
FEDERAL NATIONAL MORTGAGE ASSOCIATION |
|||||
|
5/17/2006 |
|
Deeds |
$28,000 |
MADISON KARL |
MADISON VANESTER |
|||||
|
4/6/2006 |
|
Deeds |
$0 |
SHERFIELD CURTIS & KRISTI |
MADISON KARL |
|||||
| Last Mailed Notice of Value (N.O.V.) Information/History | ||||||||
|---|---|---|---|---|---|---|---|---|
| Year | Date | Market Value | Taxable Market Value | Gross Assessed | Exemption | Net Assessed | ||
|
2026 |
02/23/2026 |
46,500 |
24,789 |
2,725 |
0 |
2,725 |
||
|
2025 |
02/14/2025 |
44,500 |
23,609 |
2,596 |
0 |
2,596 |
||
|
2024 |
02/13/2024 |
43,000 |
22,485 |
2,472 |
0 |
2,472 |
||
|
2023 |
02/14/2023 |
35,500 |
21,415 |
2,355 |
0 |
2,355 |
||
|
2022 |
03/15/2022 |
24,000 |
20,396 |
2,242 |
0 |
2,242 |
||
| Property Building Permit History | |||||||||||
|---|---|---|---|---|---|---|---|---|---|---|---|
| Issued | Permit # | Provided by | Bldg # | Description | Est Construction Cost | Status | |||||
| No Building Permit records returned. | |||||||||||
| Click button on building number to access detailed information: | ||||||
|---|---|---|---|---|---|---|
| Bldg # | Vacant/Improved Land | Bldg Description | Year Built | SqFt | # Stories | |
|
1 |
Improved |
Ranch 1 Story |
1946 |
528 |
1 Stories |
|