|
|
|
| Larry Stein Oklahoma County Assessor (405) 713-1200 - Public Access System |
|
|
|
|
|
|
| Real Property Display - Screen Produced 4/10/2026 4:02:13 AM | ||||
|---|---|---|---|---|
| Account: R034993620 | Type: Residential | Location: |
2529 N KATE AVE |
|
| Building Name/Occupant: |
|
OKLAHOMA CITY |
||
| Owner Name 1: | AMERICAN DREAM LLC |
Parcel PIN#: |
2691-03-499-3620 |
|
| Owner Name 2: | 1/4 section #: |
2691 |
||
| Owner Name 3: | Parent Acct: |
|
||
| Billing Address: | 16307 SONOMA PARK DR STE 7 | Tax District: |
|
|
| City, State, Zip | EDMOND, OK 73013 | School System: |
Oklahoma City #89 |
|
|
Country: (If noted) |
Land Size: |
0.1596 Acres |
||
|
Land Value: 2,085 |
|
|||
|
Sect 23-T12N-R3W Qtr SW |
FAIRFAX ADDITION
Block
014
Lot
010
|
|||
| Full Legal Description: FAIRFAX ADDITION 014 010 |
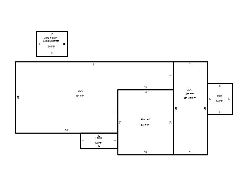
| Photo & Sketch (if available) | Comp Sales (ordered by relevancy) |
|
||||||||||||||||||
|
||||||||||||||||||||
| Value History (*The County Treasurer 405-713-1300 posts & collects actual tax amounts. Contact information HERE) | |||||||||||||
|---|---|---|---|---|---|---|---|---|---|---|---|---|---|
| Year | Market Value | Taxable Mkt Value | Gross Assessed | Exemption | Net Assessed | Millage | Est. Tax | Tax Savings | |||||
| No PropertyValuation records returned. | |||||||||||||
| Property Account Status/Adjustments/Exemptions | ||
|---|---|---|
| Account # | Exemption Description | Amount |
|
R034993620 |
5% Capped Account |
0 |
| Property Deed Transaction History (Recorded in the County Clerk's Office) | |||||||
|---|---|---|---|---|---|---|---|
| Date | Type | Book | Page | Price | Grantor | Grantee | |
|
6/10/2019 |
|
Other |
$0 |
WILLIS TONYA & ORRIN CO PER REP |
AMERICAN DREAM LLC |
||
|
11/23/2004 |
|
Hmstd Off & |
$0 |
WILLIS ANDREW |
WILLIS TONYA & ORRIN CO PER REP |
||
|
10/31/2001 |
|
Deeds |
$0 |
WILLIS ANDREW C & FLORICE V |
WILLIS ANDREW C |
||
|
10/31/2001 |
|
Deeds |
$0 |
WILLIS ANDREW C & FLORICE V |
WILLIS ANDREW C CARBINS CYNTHIA R |
||
|
11/11/1911 |
|
Historical |
$0 |
|
WILLIS ANDREW C & FLORICE V |
||
| Last Mailed Notice of Value (N.O.V.) Information/History | ||||||||
|---|---|---|---|---|---|---|---|---|
| Year | Date | Market Value | Taxable Market Value | Gross Assessed | Exemption | Net Assessed | ||
| No Notice of Value N.O.V. records returned. | ||||||||
| Property Building Permit History | |||||||||||
|---|---|---|---|---|---|---|---|---|---|---|---|
| Issued | Permit # | Provided by | Bldg # | Description | Est Construction Cost | Status | |||||
| No Building Permit records returned. | |||||||||||
| Click button on building number to access detailed information: | ||||||
|---|---|---|---|---|---|---|
| Bldg # | Vacant/Improved Land | Bldg Description | Year Built | SqFt | # Stories | |
|
1 |
Improved |
Ranch 1 Story |
1966 |
1,251 |
1 Stories |
|