|
|
|
| Larry Stein Oklahoma County Assessor (405) 713-1200 - Public Access System |
|
|
|
|
|
|
| Real Property Display - Screen Produced 4/8/2026 3:34:28 PM | ||||
|---|---|---|---|---|
| Account: R073721100 | Type: Residential | Location: |
2212 NE 25TH ST |
|
| Building Name/Occupant: |
|
OKLAHOMA CITY |
||
| Owner Name 1: | MASTERSON ALEXIS |
Parcel PIN#: |
2695-07-372-1100 |
|
| Owner Name 2: | 1/4 section #: |
2695 |
||
| Owner Name 3: | Parent Acct: |
|
||
| Billing Address: | 2212 NE 25TH ST | Tax District: |
|
|
| City, State, Zip | OKLAHOMA CITY, OK 73111-3426 | School System: |
Oklahoma City #89 |
|
|
Country: (If noted) |
Land Size: |
0.1538 Acres |
||
|
Land Value: 2,010 |
|
|||
|
Sect 24-T12N-R3W Qtr SW |
LAIN HILLS ADDITION
Block
002
Lot
003
|
|||
| Full Legal Description: LAIN HILLS ADDITION 002 003 |
| Photo & Sketch (if available) | Comp Sales (ordered by relevancy) |
|
||||||||||||||||||
|
||||||||||||||||||||
| Value History (*The County Treasurer 405-713-1300 posts & collects actual tax amounts. Contact information HERE) | |||||||||||||
|---|---|---|---|---|---|---|---|---|---|---|---|---|---|
| Year | Market Value | Taxable Mkt Value | Gross Assessed | Exemption | Net Assessed | Millage | Est. Tax | Tax Savings | |||||
|
2026 |
135,000 |
135,000 |
14,850 |
0 |
14,850 |
122.90 |
$1,825 |
$0 |
|||||
|
2025 |
6,765 |
6,765 |
744 |
0 |
744 |
122.90 |
$91 |
$0 |
|||||
|
2024 |
6,765 |
6,765 |
744 |
0 |
744 |
123.89 |
$92 |
$0 |
|||||
|
2023 |
88,500 |
88,500 |
9,735 |
0 |
9,735 |
122.82 |
$1,196 |
$0 |
|||||
|
2022 |
62,500 |
38,325 |
4,215 |
0 |
4,215 |
117.63 |
$496 |
$313 |
|||||
| Property Account Status/Adjustments/Exemptions | ||
|---|---|---|
| Account # | Exemption Description | Amount |
|
R073721100 |
5% Capped Account |
0 |
| Property Deed Transaction History (Recorded in the County Clerk's Office) | ||||||||||
|---|---|---|---|---|---|---|---|---|---|---|
| Date | Type | Book | Page | Price | Grantor | Grantee | ||||
|
2/13/2026 |
|
Deeds |
$151,000 |
ADOMGRACE REAL ESTATE SOLUTIONS LLC |
MASTERSON ALEXIS |
|||||
|
5/16/2024 |
|
Deeds |
$65,000 |
GUMMERSON JOE |
ADOMGRACE REAL ESTATE SOLUTIONS LLC |
|||||
|
4/20/2022 |
|
Deeds |
$65,000 |
MCGLON MICHELLE |
GUMMERSON JOE |
|||||
|
10/23/2020 |
|
Deeds |
$18,000 |
HINES DARRELL D SR |
MCGLON MICHELLE |
|||||
|
10/13/2004 |
|
Deeds |
$15,000 |
JOHNSON SAUNDRA A JOHNSON MURRELL AUNDREA R |
HINES DARRELL D SR |
|||||
| Last Mailed Notice of Value (N.O.V.) Information/History | ||||||||
|---|---|---|---|---|---|---|---|---|
| Year | Date | Market Value | Taxable Market Value | Gross Assessed | Exemption | Net Assessed | ||
|
2026 |
03/30/2026 |
135,000 |
135,000 |
14,850 |
0 |
14,850 |
||
|
2023 |
02/14/2023 |
88,500 |
88,500 |
9,735 |
0 |
9,735 |
||
|
2022 |
03/15/2022 |
62,500 |
38,325 |
4,215 |
0 |
4,215 |
||
|
2021 |
03/19/2021 |
36,500 |
36,500 |
4,015 |
0 |
4,015 |
||
|
2020 |
03/10/2020 |
36,500 |
27,954 |
3,074 |
0 |
3,074 |
||
| Property Building Permit History | ||||||
|---|---|---|---|---|---|---|
| Issued | Permit # | Provided by | Bldg # | Description | Est Construction Cost | Status |
|
7/1/2021 |
BLDR-2021-00953 |
|
1 |
Remodeled |
5,000 |
Inactive |
| Click button on building number to access detailed information: | ||||||
|---|---|---|---|---|---|---|
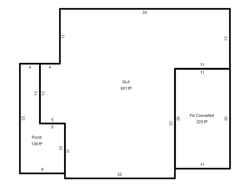
| Bldg # | Vacant/Improved Land | Bldg Description | Year Built | SqFt | # Stories | |
|
1 |
Improved |
Ranch 1 Story |
1949 |
951 |
1 Stories |
|