|
|
|
| Larry Stein Oklahoma County Assessor (405) 713-1200 - Public Access System |
|
|
|
|
|
|
| Real Property Display - Screen Produced 4/1/2026 6:48:25 AM | ||||
|---|---|---|---|---|
| Account: R030191240 | Type: Residential | Location: |
1115 NE 19TH ST |
|
| Building Name/Occupant: |
|
OKLAHOMA CITY |
||
| Owner Name 1: | HONEY TREE HOMES LLC |
Parcel PIN#: |
2704-03-019-1240 |
|
| Owner Name 2: | 1/4 section #: |
2704 |
||
| Owner Name 3: | Parent Acct: |
|
||
| Billing Address: | 12932 ST ANDREWS DR | Tax District: |
|
|
| City, State, Zip | OKLAHOMA CITY, OK 73120 | School System: |
Oklahoma City #89 |
|
|
Country: (If noted) |
Land Size: |
0.1141 Acres |
||
|
Land Value: 8,201 |
|
|||
|
Sect 26-T12N-R3W Qtr NW |
GAST HEIGHTS ADD
Block
003
Lot
011
|
|||
| Full Legal Description: GAST HEIGHTS ADD 003 011 |
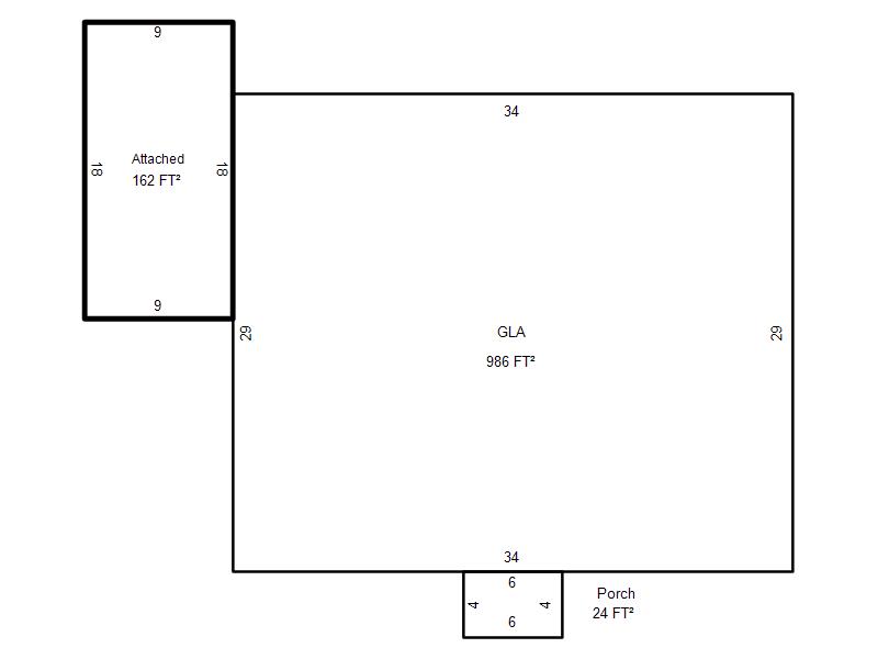
| Photo & Sketch (if available) | Comp Sales (ordered by relevancy) |
|
||||||||||||||||||
|
||||||||||||||||||||
| Value History (*The County Treasurer 405-713-1300 posts & collects actual tax amounts. Contact information HERE) | |||||||||||||
|---|---|---|---|---|---|---|---|---|---|---|---|---|---|
| Year | Market Value | Taxable Mkt Value | Gross Assessed | Exemption | Net Assessed | Millage | Est. Tax | Tax Savings | |||||
|
2026 |
88,000 |
88,000 |
9,680 |
0 |
9,680 |
122.90 |
$1,190 |
$0 |
|||||
|
2025 |
87,500 |
86,821 |
9,549 |
0 |
9,549 |
122.90 |
$1,174 |
$9 |
|||||
|
2024 |
83,000 |
82,687 |
9,095 |
0 |
9,095 |
123.89 |
$1,127 |
$4 |
|||||
|
2023 |
91,000 |
78,750 |
8,662 |
0 |
8,662 |
122.82 |
$1,064 |
$165 |
|||||
|
2022 |
75,000 |
75,000 |
8,250 |
0 |
8,250 |
117.63 |
$970 |
$0 |
|||||
| Property Account Status/Adjustments/Exemptions | ||
|---|---|---|
| Account # | Exemption Description | Amount |
|
R030191240 |
5% Capped Account |
0 |
| Property Deed Transaction History (Recorded in the County Clerk's Office) | |||||||
|---|---|---|---|---|---|---|---|
| Date | Type | Book | Page | Price | Grantor | Grantee | |
|
8/11/2021 |
|
Deeds |
$76,000 |
COLEMAN GRETA Y TRS |
HONEY TREE HOMES LLC |
||
|
1/6/2012 |
|
Deeds |
$0 |
COLEMAN GRETA |
COLEMAN GRETA Y TRS |
||
|
10/28/1998 |
|
Historical |
$0 |
CUNNINGHAM R P |
COLEMAN GRETA |
||
|
1/3/1990 |
|
Historical |
$0 |
COURSEY FRANK W & JOYCE D |
CUNNINGHAM R P |
||
|
9/1/1974 |
|
Historical |
$0 |
|
COURSEY FRANK W & JOYCE D |
||
| Last Mailed Notice of Value (N.O.V.) Information/History | ||||||||
|---|---|---|---|---|---|---|---|---|
| Year | Date | Market Value | Taxable Market Value | Gross Assessed | Exemption | Net Assessed | ||
|
2026 |
02/23/2026 |
88,000 |
88,000 |
9,680 |
0 |
9,680 |
||
|
2025 |
02/14/2025 |
87,500 |
86,821 |
9,549 |
0 |
9,549 |
||
|
2024 |
02/13/2024 |
83,000 |
82,687 |
9,095 |
0 |
9,095 |
||
|
2023 |
02/14/2023 |
91,000 |
78,750 |
8,662 |
0 |
8,662 |
||
|
2022 |
03/15/2022 |
75,000 |
75,000 |
8,250 |
0 |
8,250 |
||
| Property Building Permit History | ||||||
|---|---|---|---|---|---|---|
| Issued | Permit # | Provided by | Bldg # | Description | Est Construction Cost | Status |
|
2/10/1999 |
10188786 |
OKLAHOMA CITY |
1 |
Remodeled |
6,500 |
Inactive |
|
4/20/1998 |
10188785 |
OKLAHOMA CITY |
1 |
Burn - Trip |
2,500 |
Inactive |
| Click button on building number to access detailed information: | ||||||
|---|---|---|---|---|---|---|
| Bldg # | Vacant/Improved Land | Bldg Description | Year Built | SqFt | # Stories | |
|
1 |
Improved |
Ranch 1 Story |
1940 |
986 |
1 Stories |
|