|
|
|
| Larry Stein Oklahoma County Assessor (405) 713-1200 - Public Access System |
|
|
|
|
|
|
| Real Property Display - Screen Produced 4/5/2026 8:43:09 AM | ||||
|---|---|---|---|---|
| Account: R034675050 | Type: Residential | Location: |
729 NE 17TH ST |
|
| Building Name/Occupant: |
|
OKLAHOMA CITY |
||
| Owner Name 1: | VANSTAVERN VICKI REV LIV TRUST |
Parcel PIN#: |
2705-03-467-5050 |
|
| Owner Name 2: | 1/4 section #: |
2705 |
||
| Owner Name 3: | Parent Acct: |
|
||
| Billing Address: | 729 NE 17TH ST | Tax District: |
|
|
| City, State, Zip | OKLAHOMA CITY, OK 73105 | School System: |
Oklahoma City #89 |
|
|
Country: (If noted) |
UNITED STATES |
Land Size: |
0.1997 Acres |
|
|
Land Value: 55,245 |
|
|||
|
Sect 27-T12N-R3W Qtr NE |
LINCOLN TERRACE ADD
Block
012
Lot
018
|
|||
| Full Legal Description: LINCOLN TERRACE ADD 012 018 |
| Photo & Sketch (if available) | Comp Sales (ordered by relevancy) |
|
||||||||||||||||||
|
||||||||||||||||||||
| Value History (*The County Treasurer 405-713-1300 posts & collects actual tax amounts. Contact information HERE) | |||||||||||||
|---|---|---|---|---|---|---|---|---|---|---|---|---|---|
| Year | Market Value | Taxable Mkt Value | Gross Assessed | Exemption | Net Assessed | Millage | Est. Tax | Tax Savings | |||||
|
2026 |
256,500 |
256,500 |
28,215 |
0 |
28,215 |
122.90 |
$3,468 |
$0 |
|||||
|
2025 |
280,000 |
280,000 |
30,800 |
0 |
30,800 |
122.90 |
$3,785 |
$0 |
|||||
|
2024 |
357,000 |
357,000 |
39,270 |
0 |
39,270 |
123.89 |
$4,865 |
$0 |
|||||
|
2023 |
312,500 |
137,126 |
15,083 |
1,000 |
14,083 |
122.82 |
$1,730 |
$2,492 |
|||||
|
2022 |
278,000 |
133,133 |
14,644 |
1,000 |
13,644 |
117.63 |
$1,605 |
$1,992 |
|||||
| Property Account Status/Adjustments/Exemptions | ||
|---|---|---|
| Account # | Exemption Description | Amount |
|
R034675050 |
5% Capped Account |
0 |
| Property Deed Transaction History (Recorded in the County Clerk's Office) | ||||||||||
|---|---|---|---|---|---|---|---|---|---|---|
| Date | Type | Book | Page | Price | Grantor | Grantee | ||||
|
8/2/2023 |
|
Deeds |
$280,000 |
LAWRENCE LORI A |
VANSTAVERN VICKI REV LIV TRUST |
|||||
|
1/10/2023 |
|
Hmstd Off & |
$0 |
WHITEMAN ANNIE MAE |
LAWRENCE LORI A |
|||||
|
1/6/2023 |
|
Deeds |
$0 |
WHITEMAN CHARLES R & ANNIE M |
WHITEMAN ANNIE MAE |
|||||
|
12/14/2001 |
|
Deeds |
$76,000 |
T J FISH LLC |
WHITEMAN CHARLES R & ANNIE M |
|||||
|
1/3/1996 |
|
Historical |
$0 |
MACUILA T J TRS |
T J FISH LLC |
|||||
| Last Mailed Notice of Value (N.O.V.) Information/History | ||||||||
|---|---|---|---|---|---|---|---|---|
| Year | Date | Market Value | Taxable Market Value | Gross Assessed | Exemption | Net Assessed | ||
|
2024 |
02/13/2024 |
357,000 |
357,000 |
39,270 |
0 |
39,270 |
||
|
2023 |
02/14/2023 |
312,500 |
137,126 |
15,083 |
1,000 |
14,083 |
||
|
2023 |
03/02/2023 |
312,500 |
137,126 |
15,083 |
1,000 |
14,083 |
||
|
2022 |
03/15/2022 |
278,000 |
133,133 |
14,644 |
1,000 |
13,644 |
||
|
2021 |
03/19/2021 |
226,500 |
129,256 |
14,218 |
1,000 |
13,218 |
||
| Property Building Permit History | ||||||
|---|---|---|---|---|---|---|
| Issued | Permit # | Provided by | Bldg # | Description | Est Construction Cost | Status |
|
2/3/2025 |
|
|
1 |
Remodeled |
|
Active |
| Click button on building number to access detailed information: | ||||||
|---|---|---|---|---|---|---|
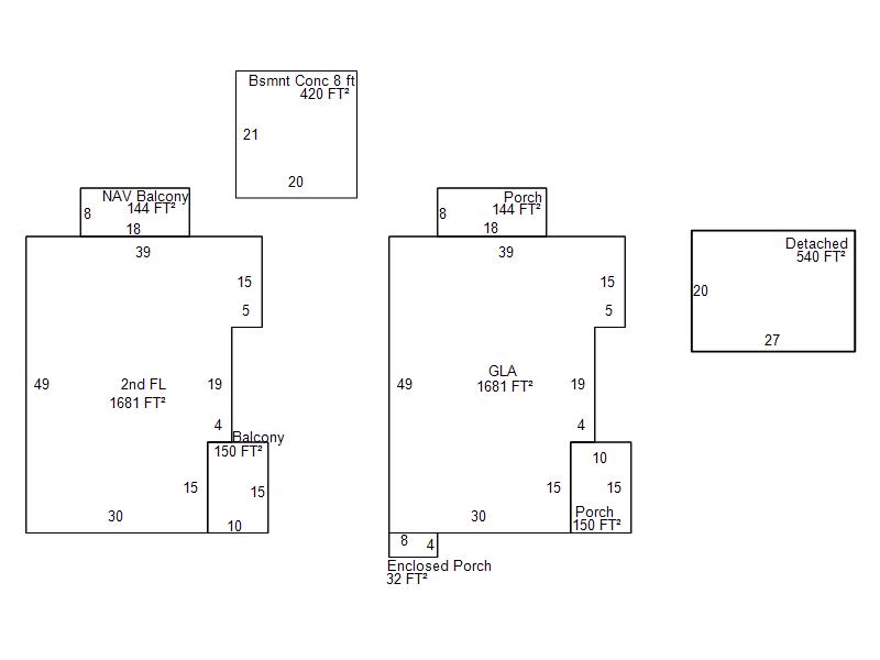
| Bldg # | Vacant/Improved Land | Bldg Description | Year Built | SqFt | # Stories | |
|
1 |
Improved |
Duplex Two Story |
1928 |
3,362 |
2 Stories |
|