|
|
|
| Larry Stein Oklahoma County Assessor (405) 713-1200 - Public Access System |
|
|
|
|
|
|
| Real Property Display - Screen Produced 4/1/2026 7:14:22 PM | ||||
|---|---|---|---|---|
| Account: R150512550 | Type: Residential | Location: |
303 E KEY BLVD |
|
| Building Name/Occupant: |
|
MIDWEST CITY |
||
| Owner Name 1: | MCGUIRE SCOTT J TRS |
Parcel PIN#: |
1409-15-051-2550 |
|
| Owner Name 2: | MCGUIRE SCOTT J & SUSAN M INTER VIVOS TRUST | 1/4 section #: |
1409 |
|
| Owner Name 3: | Parent Acct: |
|
||
| Billing Address: | 1452 BRENTWOOD LANE | Tax District: |
|
|
| City, State, Zip | BOUNTIFUL, UT 84010 | School System: |
Mid-Del #52 |
|
|
Country: (If noted) |
UNITED STATES |
Land Size: |
0.1607 Acres |
|
|
Land Value: 19,950 |
|
|||
|
Sect 3-T11N-R2W Qtr NE |
COUNTRY ESTATES 4TH
Block
008
Lot
026
|
|||
| Full Legal Description: COUNTRY ESTATES 4TH 008 026 |
| Photo & Sketch (if available) | Comp Sales (ordered by relevancy) |
|
||||||||||||||||||
|
||||||||||||||||||||
| Value History (*The County Treasurer 405-713-1300 posts & collects actual tax amounts. Contact information HERE) | |||||||||||||
|---|---|---|---|---|---|---|---|---|---|---|---|---|---|
| Year | Market Value | Taxable Mkt Value | Gross Assessed | Exemption | Net Assessed | Millage | Est. Tax | Tax Savings | |||||
|
2026 |
89,000 |
88,200 |
9,702 |
0 |
9,702 |
119.58 |
$1,160 |
$11 |
|||||
|
2025 |
86,500 |
84,000 |
9,240 |
0 |
9,240 |
119.58 |
$1,105 |
$33 |
|||||
|
2024 |
80,000 |
80,000 |
8,800 |
0 |
8,800 |
122.51 |
$1,078 |
$0 |
|||||
|
2023 |
83,000 |
83,000 |
9,130 |
0 |
9,130 |
117.71 |
$1,075 |
$0 |
|||||
|
2022 |
62,000 |
54,022 |
5,941 |
0 |
5,941 |
116.64 |
$693 |
$102 |
|||||
| Property Account Status/Adjustments/Exemptions | ||
|---|---|---|
| Account # | Exemption Description | Amount |
|
R150512550 |
5% Capped Account |
0 |
| Property Deed Transaction History (Recorded in the County Clerk's Office) | |||||||
|---|---|---|---|---|---|---|---|
| Date | Type | Book | Page | Price | Grantor | Grantee | |
|
4/14/2022 |
|
Deeds |
$82,000 |
GRIECO JEFFREY L & AMY H |
MCGUIRE SCOTT J TRS |
||
|
9/17/2008 |
|
Deeds |
$50,000 |
MALONE LOIS DEE TRS LOIS DEE MALONE TRUST |
GRIECO JEFFREY L & AMY H |
||
|
2/22/1990 |
|
Historical |
$0 |
MALONE FRANKLIN J & L D |
MALONE LOIS DEE TRS |
||
|
11/1/1973 |
|
Historical |
$0 |
|
MALONE FRANKLIN J & L D |
||
| Last Mailed Notice of Value (N.O.V.) Information/History | ||||||||
|---|---|---|---|---|---|---|---|---|
| Year | Date | Market Value | Taxable Market Value | Gross Assessed | Exemption | Net Assessed | ||
|
2026 |
02/06/2026 |
89,000 |
88,200 |
9,702 |
0 |
9,702 |
||
|
2025 |
01/31/2025 |
86,500 |
84,000 |
9,240 |
0 |
9,240 |
||
|
2023 |
01/23/2023 |
83,000 |
83,000 |
9,130 |
0 |
9,130 |
||
|
2022 |
02/22/2022 |
62,000 |
54,022 |
5,941 |
0 |
5,941 |
||
|
2021 |
02/24/2021 |
53,000 |
51,450 |
5,659 |
0 |
5,659 |
||
| Property Building Permit History | |||||||||||
|---|---|---|---|---|---|---|---|---|---|---|---|
| Issued | Permit # | Provided by | Bldg # | Description | Est Construction Cost | Status | |||||
| No Building Permit records returned. | |||||||||||
| Click button on building number to access detailed information: | ||||||
|---|---|---|---|---|---|---|
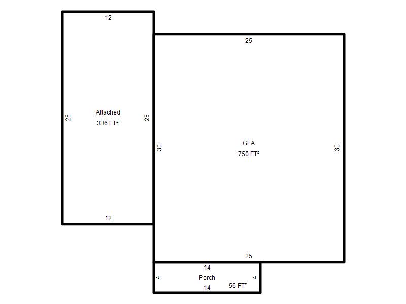
| Bldg # | Vacant/Improved Land | Bldg Description | Year Built | SqFt | # Stories | |
|
1 |
Improved |
Ranch 1 Story |
1951 |
750 |
1 Stories |
|