|
|
|
| Larry Stein Oklahoma County Assessor (405) 713-1200 - Public Access System |
|
|
|
|
|
|
| Real Property Display - Screen Produced 4/1/2026 7:04:48 PM | ||||
|---|---|---|---|---|
| Account: R150512880 | Type: Residential | Location: |
306 E COE DR |
|
| Building Name/Occupant: |
|
MIDWEST CITY |
||
| Owner Name 1: | HILDEBRAND LUKE |
Parcel PIN#: |
1409-15-051-2880 |
|
| Owner Name 2: | 1/4 section #: |
1409 |
||
| Owner Name 3: | Parent Acct: |
|
||
| Billing Address: | 780 TURTLE CREEK DR | Tax District: |
|
|
| City, State, Zip | CHOCTAW, OK 73020-7432 | School System: |
Mid-Del #52 |
|
|
Country: (If noted) |
Land Size: |
0.1492 Acres |
||
|
Land Value: 18,525 |
|
|||
|
Sect 3-T11N-R2W Qtr NE |
COUNTRY ESTATES 4TH
Block
009
Lot
018
|
|||
| Full Legal Description: COUNTRY ESTATES 4TH 009 018 |
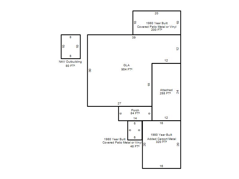
| Photo & Sketch (if available) | Comp Sales (ordered by relevancy) |
|
||||||||||||||||||
|
||||||||||||||||||||
| Value History (*The County Treasurer 405-713-1300 posts & collects actual tax amounts. Contact information HERE) | |||||||||||||
|---|---|---|---|---|---|---|---|---|---|---|---|---|---|
| Year | Market Value | Taxable Mkt Value | Gross Assessed | Exemption | Net Assessed | Millage | Est. Tax | Tax Savings | |||||
|
2026 |
117,500 |
117,500 |
12,925 |
0 |
12,925 |
119.58 |
$1,546 |
$0 |
|||||
|
2025 |
115,000 |
115,000 |
12,650 |
0 |
12,650 |
119.58 |
$1,513 |
$0 |
|||||
|
2024 |
107,000 |
76,575 |
8,423 |
0 |
8,423 |
122.51 |
$1,032 |
$410 |
|||||
|
2023 |
94,000 |
72,929 |
8,022 |
0 |
8,022 |
117.71 |
$944 |
$273 |
|||||
|
2022 |
81,000 |
69,457 |
7,639 |
0 |
7,639 |
116.64 |
$891 |
$148 |
|||||
| Property Account Status/Adjustments/Exemptions | ||
|---|---|---|
| Account # | Exemption Description | Amount |
|
R150512880 |
5% Capped Account |
0 |
| Property Deed Transaction History (Recorded in the County Clerk's Office) | |||||||
|---|---|---|---|---|---|---|---|
| Date | Type | Book | Page | Price | Grantor | Grantee | |
|
12/9/2024 |
|
Deeds |
$99,000 |
PETTINGILL AUSTIN & KACI |
HILDEBRAND LUKE |
||
|
12/3/2023 |
|
Hmstd Off & |
$0 |
CZERCZYK MARY JO |
PETTINGILL AUSTIN & KACI |
||
|
11/20/2003 |
|
Deeds |
$0 |
WINDLE LARRY J & VERA L |
WINDLE LARRY J |
||
|
11/20/2003 |
|
Other |
$0 |
WINDLE LARRY J |
CZERCZYK MARY JO |
||
|
2/1/1983 |
|
Historical |
$0 |
|
WINDLE LARRY J |
||
| Last Mailed Notice of Value (N.O.V.) Information/History | ||||||||
|---|---|---|---|---|---|---|---|---|
| Year | Date | Market Value | Taxable Market Value | Gross Assessed | Exemption | Net Assessed | ||
|
2026 |
02/06/2026 |
117,500 |
117,500 |
12,925 |
0 |
12,925 |
||
|
2025 |
01/31/2025 |
115,000 |
115,000 |
12,650 |
0 |
12,650 |
||
|
2024 |
01/22/2024 |
107,000 |
76,575 |
8,423 |
0 |
8,423 |
||
|
2023 |
01/23/2023 |
94,000 |
72,929 |
8,022 |
0 |
8,022 |
||
|
2022 |
02/22/2022 |
81,000 |
69,457 |
7,639 |
0 |
7,639 |
||
| Property Building Permit History | |||||||||||
|---|---|---|---|---|---|---|---|---|---|---|---|
| Issued | Permit # | Provided by | Bldg # | Description | Est Construction Cost | Status | |||||
| No Building Permit records returned. | |||||||||||
| Click button on building number to access detailed information: | ||||||
|---|---|---|---|---|---|---|
| Bldg # | Vacant/Improved Land | Bldg Description | Year Built | SqFt | # Stories | |
|
1 |
Improved |
Ranch 1 Story |
1951 |
954 |
1 Stories |
|