|
|
|
| Larry Stein Oklahoma County Assessor (405) 713-1200 - Public Access System |
|
|
|
|
|
|
| Real Property Display - Screen Produced 4/1/2026 7:04:45 PM | ||||
|---|---|---|---|---|
| Account: R150512930 | Type: Residential | Location: |
316 E COE DR |
|
| Building Name/Occupant: |
|
MIDWEST CITY |
||
| Owner Name 1: | SUNSHINE REALTY PROPERTIES LLC |
Parcel PIN#: |
1409-15-051-2930 |
|
| Owner Name 2: | 1/4 section #: |
1409 |
||
| Owner Name 3: | Parent Acct: |
|
||
| Billing Address: | 12705 SHENANDOAH DR | Tax District: |
|
|
| City, State, Zip | OKLAHOMA CITY, OK 73173-7345 | School System: |
Mid-Del #52 |
|
|
Country: (If noted) |
Land Size: |
0.1522 Acres |
||
|
Land Value: 18,896 |
|
|||
|
Sect 3-T11N-R2W Qtr NE |
COUNTRY ESTATES 4TH
Block
009
Lot
000
|
|||
| Full Legal Description: COUNTRY ESTATES 4TH 009 000 E1FT LOT 22 & ALL LOT 23 |
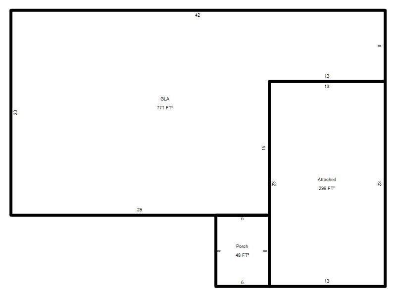
| Photo & Sketch (if available) | Comp Sales (ordered by relevancy) |
|
||||||||||||||||||
|
||||||||||||||||||||
| Value History (*The County Treasurer 405-713-1300 posts & collects actual tax amounts. Contact information HERE) | |||||||||||||
|---|---|---|---|---|---|---|---|---|---|---|---|---|---|
| Year | Market Value | Taxable Mkt Value | Gross Assessed | Exemption | Net Assessed | Millage | Est. Tax | Tax Savings | |||||
|
2026 |
90,500 |
90,405 |
9,944 |
0 |
9,944 |
119.58 |
$1,189 |
$1 |
|||||
|
2025 |
88,000 |
86,100 |
9,471 |
0 |
9,471 |
119.58 |
$1,133 |
$25 |
|||||
|
2024 |
82,000 |
82,000 |
9,020 |
0 |
9,020 |
122.51 |
$1,105 |
$0 |
|||||
|
2023 |
73,000 |
58,459 |
6,430 |
0 |
6,430 |
117.71 |
$757 |
$188 |
|||||
|
2022 |
63,500 |
55,676 |
6,123 |
0 |
6,123 |
116.64 |
$714 |
$100 |
|||||
| Property Account Status/Adjustments/Exemptions | ||
|---|---|---|
| Account # | Exemption Description | Amount |
|
R150512930 |
5% Capped Account |
0 |
| Property Deed Transaction History (Recorded in the County Clerk's Office) | ||||||||||
|---|---|---|---|---|---|---|---|---|---|---|
| Date | Type | Book | Page | Price | Grantor | Grantee | ||||
|
5/15/2023 |
|
Deeds |
$90,000 |
GRIN ACRES PROPERTIES |
SUNSHINE REALTY PROPERTIES LLC |
|||||
|
7/9/2001 |
|
Deeds |
$28,000 |
MERLE MARK STEVEN KORTHAUER IRIS ELISABETH |
GRIN ACRES PROPERTIES |
|||||
|
6/7/2001 |
|
Deeds |
$0 |
MATHENY LOUANN J & ANTHONY T |
MERLE MARK STEVEN KORTHAUER IRIS ELISABETH |
|||||
|
7/19/2000 |
|
Deeds |
$15,000 |
MERLE MARK S & LOUANN J |
KORTHAUER IRIS ELISABETH |
|||||
|
7/3/1991 |
|
Historical |
$0 |
MERLE MARK S & LOUANN J |
MERLE MARK S & LOUANN J |
|||||
| Last Mailed Notice of Value (N.O.V.) Information/History | ||||||||
|---|---|---|---|---|---|---|---|---|
| Year | Date | Market Value | Taxable Market Value | Gross Assessed | Exemption | Net Assessed | ||
|
2026 |
02/06/2026 |
90,500 |
90,405 |
9,944 |
0 |
9,944 |
||
|
2025 |
01/31/2025 |
88,000 |
86,100 |
9,471 |
0 |
9,471 |
||
|
2024 |
01/22/2024 |
82,000 |
82,000 |
9,020 |
0 |
9,020 |
||
|
2023 |
01/23/2023 |
73,000 |
58,459 |
6,430 |
0 |
6,430 |
||
|
2022 |
02/22/2022 |
63,500 |
55,676 |
6,123 |
0 |
6,123 |
||
| Property Building Permit History | |||||||||||
|---|---|---|---|---|---|---|---|---|---|---|---|
| Issued | Permit # | Provided by | Bldg # | Description | Est Construction Cost | Status | |||||
| No Building Permit records returned. | |||||||||||
| Click button on building number to access detailed information: | ||||||
|---|---|---|---|---|---|---|
| Bldg # | Vacant/Improved Land | Bldg Description | Year Built | SqFt | # Stories | |
|
1 |
Improved |
Ranch 1 Story |
1951 |
771 |
1 Stories |
|