|
|
|
| Larry Stein Oklahoma County Assessor (405) 713-1200 - Public Access System |
|
|
|
|
|
|
| Real Property Display - Screen Produced 4/12/2026 6:30:44 PM | ||||
|---|---|---|---|---|
| Account: R045167805 | Type: Residential | Location: |
1416 NW 19TH ST |
|
| Building Name/Occupant: |
|
OKLAHOMA CITY |
||
| Owner Name 1: | RICCIOTTI MARY ANN |
Parcel PIN#: |
2713-04-516-7805 |
|
| Owner Name 2: | TOELLE VIRGINIA H | 1/4 section #: |
2713 |
|
| Owner Name 3: | Parent Acct: |
|
||
| Billing Address: | 1418 NW 19TH ST | Tax District: |
|
|
| City, State, Zip | OKLAHOMA CITY, OK 73106-4010 | School System: |
Oklahoma City #89 |
|
|
Country: (If noted) |
Land Size: |
0.1630 Acres |
||
|
Land Value: 19,703 |
|
|||
|
Sect 29-T12N-R3W Qtr NE |
NICHOLS UNIV PLACE
Block
004
Lot
000
|
|||
| Full Legal Description: NICHOLS UNIV PLACE 004 000 UNDIVIDED 1/2 INTEREST IN LOT 5 |
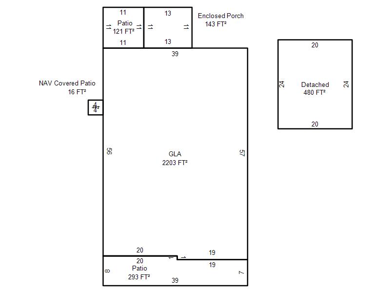
| Photo & Sketch (if available) | Comp Sales (ordered by relevancy) |
|
||||||||||||||||||
|
||||||||||||||||||||
| Value History (*The County Treasurer 405-713-1300 posts & collects actual tax amounts. Contact information HERE) | |||||||||||||
|---|---|---|---|---|---|---|---|---|---|---|---|---|---|
| Year | Market Value | Taxable Mkt Value | Gross Assessed | Exemption | Net Assessed | Millage | Est. Tax | Tax Savings | |||||
|
2026 |
120,750 |
39,140 |
4,305 |
1,000 |
3,305 |
122.90 |
$406 |
$1,226 |
|||||
|
2025 |
127,000 |
38,000 |
4,179 |
1,000 |
3,179 |
122.90 |
$391 |
$1,326 |
|||||
|
2024 |
128,750 |
36,894 |
4,058 |
1,000 |
3,058 |
123.89 |
$379 |
$1,376 |
|||||
|
2023 |
133,000 |
35,820 |
3,939 |
1,000 |
2,939 |
122.82 |
$361 |
$1,436 |
|||||
|
2022 |
110,750 |
34,777 |
3,825 |
1,000 |
2,825 |
117.63 |
$332 |
$1,101 |
|||||
| Property Account Status/Adjustments/Exemptions | ||
|---|---|---|
| Account # | Exemption Description | Amount |
|
R045167805 |
3% Cap Homestead |
0 |
|
R045167805 |
Homestead |
1,000 |
| Property Deed Transaction History (Recorded in the County Clerk's Office) | |||||||
|---|---|---|---|---|---|---|---|
| Date | Type | Book | Page | Price | Grantor | Grantee | |
|
8/6/2014 |
|
Deeds |
$0 |
RICCIOTTI MARY ANN RICIOTTI THOMAS PATRICK |
RICCIOTTI MARY ANN |
||
|
11/2/1987 |
|
Historical |
$0 |
|
RICCIOTTI MARY ANN |
||
| Last Mailed Notice of Value (N.O.V.) Information/History | ||||||||
|---|---|---|---|---|---|---|---|---|
| Year | Date | Market Value | Taxable Market Value | Gross Assessed | Exemption | Net Assessed | ||
|
2026 |
02/23/2026 |
120,750 |
39,140 |
4,305 |
1,000 |
3,305 |
||
|
2025 |
02/14/2025 |
127,000 |
38,000 |
4,179 |
1,000 |
3,179 |
||
|
2024 |
02/13/2024 |
128,750 |
36,894 |
4,058 |
1,000 |
3,058 |
||
|
2023 |
02/14/2023 |
133,000 |
35,820 |
3,939 |
1,000 |
2,939 |
||
|
2022 |
03/15/2022 |
110,750 |
34,777 |
3,825 |
1,000 |
2,825 |
||
| Property Building Permit History | |||||||||||
|---|---|---|---|---|---|---|---|---|---|---|---|
| Issued | Permit # | Provided by | Bldg # | Description | Est Construction Cost | Status | |||||
| No Building Permit records returned. | |||||||||||
| Click button on building number to access detailed information: | ||||||
|---|---|---|---|---|---|---|
| Bldg # | Vacant/Improved Land | Bldg Description | Year Built | SqFt | # Stories | |
|
1 |
Improved |
Duplex One Story |
1929 |
2,203 |
1 Stories |
|