|
|
|
| Larry Stein Oklahoma County Assessor (405) 713-1200 - Public Access System |
|
|
|
|
|
|
| Real Property Display - Screen Produced 4/12/2026 6:30:43 PM | ||||
|---|---|---|---|---|
| Account: R045168200 | Type: Residential | Location: |
1908 N BRAUER AVE |
|
| Building Name/Occupant: |
|
OKLAHOMA CITY |
||
| Owner Name 1: | OU RANDY T & MONICA T |
Parcel PIN#: |
2713-04-516-8200 |
|
| Owner Name 2: | 1/4 section #: |
2713 |
||
| Owner Name 3: | Parent Acct: |
|
||
| Billing Address: | 836 NW 116TH ST | Tax District: |
|
|
| City, State, Zip | OKLAHOMA CITY, OK 73114-7915 | School System: |
Oklahoma City #89 |
|
|
Country: (If noted) |
Land Size: |
0.1722 Acres |
||
|
Land Value: 41,625 |
|
|||
|
Sect 29-T12N-R3W Qtr NE |
NICHOLS UNIV PLACE
Block
004
Lot
007
|
|||
| Full Legal Description: NICHOLS UNIV PLACE 004 007 |
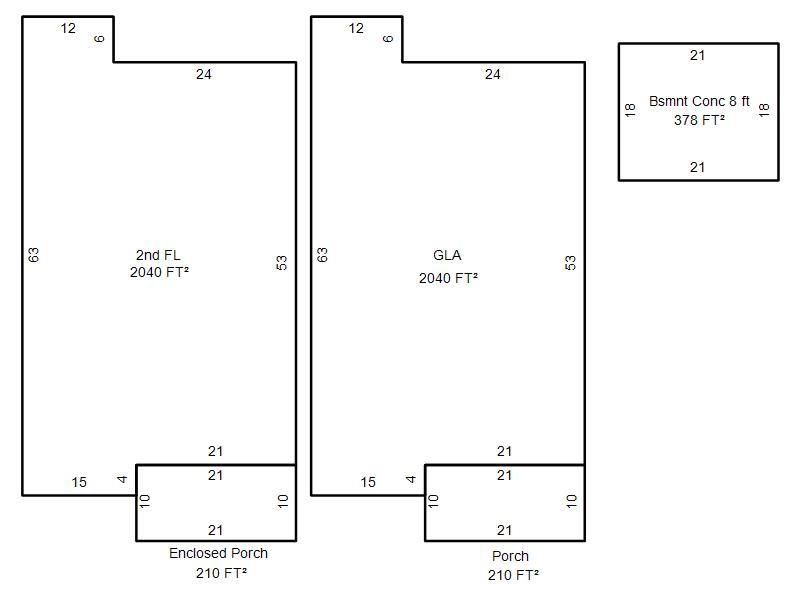
| Photo & Sketch (if available) | Comp Sales (ordered by relevancy) |
|
||||||||||||||||||
|
||||||||||||||||||||
| Value History (*The County Treasurer 405-713-1300 posts & collects actual tax amounts. Contact information HERE) | |||||||||||||
|---|---|---|---|---|---|---|---|---|---|---|---|---|---|
| Year | Market Value | Taxable Mkt Value | Gross Assessed | Exemption | Net Assessed | Millage | Est. Tax | Tax Savings | |||||
|
2026 |
492,500 |
275,254 |
30,277 |
0 |
30,277 |
122.90 |
$3,721 |
$2,937 |
|||||
|
2025 |
480,500 |
262,147 |
28,836 |
0 |
28,836 |
122.90 |
$3,544 |
$2,952 |
|||||
|
2024 |
497,500 |
249,664 |
27,462 |
0 |
27,462 |
123.89 |
$3,402 |
$3,377 |
|||||
|
2023 |
442,500 |
237,776 |
26,154 |
0 |
26,154 |
122.82 |
$3,212 |
$2,766 |
|||||
|
2022 |
398,000 |
226,454 |
24,909 |
0 |
24,909 |
117.63 |
$2,930 |
$2,220 |
|||||
| Property Account Status/Adjustments/Exemptions | ||
|---|---|---|
| Account # | Exemption Description | Amount |
|
R045168200 |
5% Capped Account |
0 |
| Property Deed Transaction History (Recorded in the County Clerk's Office) | ||||||||||
|---|---|---|---|---|---|---|---|---|---|---|
| Date | Type | Book | Page | Price | Grantor | Grantee | ||||
|
5/2/2006 |
|
Deeds |
$71,000 |
EQUITY ONE INC |
OU RANDY T & MONICA T |
|||||
|
7/5/2005 |
|
Hmstd Off & |
$0 |
RUFFIN HILDA |
EQUITY ONE INC |
|||||
|
3/23/2001 |
|
Deeds |
$119,999 |
CRAFT MICHAEL W |
RUFFIN HILDA |
|||||
|
10/18/2000 |
|
Deeds |
$119,999 |
LAGROW JEFF & ALANA |
CRAFT MICHAEL W |
|||||
|
6/26/2000 |
|
Deeds |
$32,500 |
DUREN KELLY L |
LAGROW JEFF & ALANA |
|||||
| Last Mailed Notice of Value (N.O.V.) Information/History | ||||||||
|---|---|---|---|---|---|---|---|---|
| Year | Date | Market Value | Taxable Market Value | Gross Assessed | Exemption | Net Assessed | ||
|
2026 |
02/23/2026 |
492,500 |
275,254 |
30,277 |
0 |
30,277 |
||
|
2025 |
02/14/2025 |
480,500 |
262,147 |
28,836 |
0 |
28,836 |
||
|
2024 |
02/13/2024 |
497,500 |
249,664 |
27,462 |
0 |
27,462 |
||
|
2023 |
02/14/2023 |
442,500 |
237,776 |
26,154 |
0 |
26,154 |
||
|
2022 |
03/15/2022 |
398,000 |
226,454 |
24,909 |
0 |
24,909 |
||
| Property Building Permit History | |||||||||||
|---|---|---|---|---|---|---|---|---|---|---|---|
| Issued | Permit # | Provided by | Bldg # | Description | Est Construction Cost | Status | |||||
| No Building Permit records returned. | |||||||||||
| Click button on building number to access detailed information: | ||||||
|---|---|---|---|---|---|---|
| Bldg # | Vacant/Improved Land | Bldg Description | Year Built | SqFt | # Stories | |
|
1 |
Improved |
Apartment <= 3 Stories |
1929 |
4,080 |
2 Stories |
|