|
|
|
| Larry Stein Oklahoma County Assessor (405) 713-1200 - Public Access System |
|
|
|
|
|
|
| Real Property Display - Screen Produced 4/12/2026 6:32:18 PM | ||||
|---|---|---|---|---|
| Account: R045168400 | Type: Residential | Location: |
1909 N DOUGLAS BLVD |
|
| Building Name/Occupant: |
|
OKLAHOMA CITY |
||
| Owner Name 1: | MOR JEN PROPERTIES LLC |
Parcel PIN#: |
2713-04-516-8400 |
|
| Owner Name 2: | SILVER DAVID MARK & PEGGY ROARK | 1/4 section #: |
2713 |
|
| Owner Name 3: | Parent Acct: |
|
||
| Billing Address: | 1234 NW 30TH ST | Tax District: |
|
|
| City, State, Zip | OKLAHOMA CITY, OK 73118-5625 | School System: |
Oklahoma City #89 |
|
|
Country: (If noted) |
Land Size: |
0.1722 Acres |
||
|
Land Value: 41,625 |
|
|||
|
Sect 29-T12N-R3W Qtr NE |
NICHOLS UNIV PLACE
Block
004
Lot
008
|
|||
| Full Legal Description: NICHOLS UNIV PLACE 004 008 |
| Photo & Sketch (if available) | Comp Sales (ordered by relevancy) |
|
||||||||||||||||||
|
||||||||||||||||||||
| Value History (*The County Treasurer 405-713-1300 posts & collects actual tax amounts. Contact information HERE) | |||||||||||||
|---|---|---|---|---|---|---|---|---|---|---|---|---|---|
| Year | Market Value | Taxable Mkt Value | Gross Assessed | Exemption | Net Assessed | Millage | Est. Tax | Tax Savings | |||||
|
2026 |
550,000 |
156,235 |
17,185 |
0 |
17,185 |
122.90 |
$2,112 |
$5,323 |
|||||
|
2025 |
531,500 |
148,796 |
16,367 |
0 |
16,367 |
122.90 |
$2,012 |
$5,174 |
|||||
|
2024 |
539,500 |
141,711 |
15,587 |
0 |
15,587 |
123.89 |
$1,931 |
$5,421 |
|||||
|
2023 |
496,500 |
134,963 |
14,845 |
0 |
14,845 |
122.82 |
$1,823 |
$4,884 |
|||||
|
2022 |
403,000 |
128,537 |
14,138 |
0 |
14,138 |
117.63 |
$1,663 |
$3,551 |
|||||
| Property Account Status/Adjustments/Exemptions | ||
|---|---|---|
| Account # | Exemption Description | Amount |
|
R045168400 |
5% Capped Account |
0 |
| Property Deed Transaction History (Recorded in the County Clerk's Office) | ||||||||||
|---|---|---|---|---|---|---|---|---|---|---|
| Date | Type | Book | Page | Price | Grantor | Grantee | ||||
|
3/27/2006 |
|
Hmstd Off & |
$0 |
SILVER DAVID MARK & PEGGY ROARK |
MOR JEN PROPERTIES LLC |
|||||
|
8/17/1992 |
|
Historical |
$0 |
ROSE JOHNNY M & REBECCA R |
SILVER DAVID M & PEGGY R |
|||||
|
7/8/1988 |
|
Historical |
$76,650 |
UNITED PROPERTY |
ROSE JOHNNY M & REBECCA R |
|||||
|
5/19/1988 |
|
Historical |
$25,500 |
TINKER INVESTMENT |
UNITED PROPERTY |
|||||
|
10/26/1987 |
|
Historical |
$0 |
SNYDER VIOLA RUTH |
TINKER INVESTMENT |
|||||
| Last Mailed Notice of Value (N.O.V.) Information/History | ||||||||
|---|---|---|---|---|---|---|---|---|
| Year | Date | Market Value | Taxable Market Value | Gross Assessed | Exemption | Net Assessed | ||
|
2026 |
02/23/2026 |
550,000 |
156,235 |
17,185 |
0 |
17,185 |
||
|
2025 |
02/14/2025 |
531,500 |
148,796 |
16,367 |
0 |
16,367 |
||
|
2024 |
02/13/2024 |
539,500 |
141,711 |
15,587 |
0 |
15,587 |
||
|
2023 |
02/14/2023 |
496,500 |
134,963 |
14,845 |
0 |
14,845 |
||
|
2022 |
03/15/2022 |
403,000 |
128,537 |
14,138 |
0 |
14,138 |
||
| Property Building Permit History | |||||||||||
|---|---|---|---|---|---|---|---|---|---|---|---|
| Issued | Permit # | Provided by | Bldg # | Description | Est Construction Cost | Status | |||||
| No Building Permit records returned. | |||||||||||
| Click button on building number to access detailed information: | ||||||
|---|---|---|---|---|---|---|
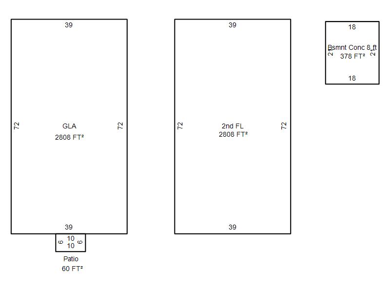
| Bldg # | Vacant/Improved Land | Bldg Description | Year Built | SqFt | # Stories | |
|
1 |
Improved |
Apartment <= 3 Stories |
1929 |
5,616 |
2 Stories |
|