|
|
|
| Larry Stein Oklahoma County Assessor (405) 713-1200 - Public Access System |
|
|
|
|
|
|
| Real Property Display - Screen Produced 4/13/2026 12:32:39 AM | ||||
|---|---|---|---|---|
| Account: R062140720 | Type: Residential | Location: |
1201 NW 20TH ST |
|
| Building Name/Occupant: |
|
OKLAHOMA CITY |
||
| Owner Name 1: | HODGE RANDALL P |
Parcel PIN#: |
2713-06-214-0720 |
|
| Owner Name 2: | 1/4 section #: |
2713 |
||
| Owner Name 3: | Parent Acct: |
|
||
| Billing Address: | 1201 NW 20TH ST | Tax District: |
|
|
| City, State, Zip | OKLAHOMA CITY, OK 73106-4003 | School System: |
Oklahoma City #89 |
|
|
Country: (If noted) |
Land Size: |
0.2583 Acres |
||
|
Land Value: 68,625 |
|
|||
|
Sect 29-T12N-R3W Qtr NE |
UNIVERSITY PLACE ADD
Block
001
Lot
000
|
|||
| Full Legal Description: UNIVERSITY PLACE ADD 001 000 E75FT OF LOT 8 |
| No comparable sales report available. | ||||||||||||||||||||||
|
||||||||||||||||||||||
| Value History (*The County Treasurer 405-713-1300 posts & collects actual tax amounts. Contact information HERE) | |||||||||||||
|---|---|---|---|---|---|---|---|---|---|---|---|---|---|
| Year | Market Value | Taxable Mkt Value | Gross Assessed | Exemption | Net Assessed | Millage | Est. Tax | Tax Savings | |||||
|
2026 |
598,427 |
376,976 |
41,466 |
0 |
41,466 |
122.90 |
$5,096 |
$2,994 |
|||||
|
2025 |
513,064 |
359,025 |
39,492 |
0 |
39,492 |
122.90 |
$4,854 |
$2,082 |
|||||
|
2024 |
487,066 |
341,929 |
37,612 |
0 |
37,612 |
123.89 |
$4,660 |
$1,978 |
|||||
|
2023 |
410,642 |
325,647 |
35,820 |
0 |
35,820 |
122.82 |
$4,400 |
$1,148 |
|||||
|
2022 |
405,542 |
310,140 |
34,114 |
0 |
34,114 |
117.63 |
$4,013 |
$1,234 |
|||||
| Property Account Status/Adjustments/Exemptions | ||
|---|---|---|
| Account # | Exemption Description | Amount |
|
R062140720 |
5% Capped Account |
0 |
| Property Deed Transaction History (Recorded in the County Clerk's Office) | |||||||
|---|---|---|---|---|---|---|---|
| Date | Type | Book | Page | Price | Grantor | Grantee | |
|
5/19/2004 |
|
Deeds |
$0 |
HODGE RANDALL P TRS HODGE RANDALL P LIVING TRUST |
HODGE RANDALL P |
||
|
4/14/1999 |
|
Historical |
$0 |
HODGE RANDY |
HODGE RANDALL P TRS |
||
|
6/20/1991 |
|
Historical |
$0 |
|
HODGE RANDY |
||
| Last Mailed Notice of Value (N.O.V.) Information/History | ||||||||
|---|---|---|---|---|---|---|---|---|
| Year | Date | Market Value | Taxable Market Value | Gross Assessed | Exemption | Net Assessed | ||
|
2026 |
02/23/2026 |
598,427 |
376,976 |
41,466 |
0 |
41,466 |
||
|
2025 |
02/14/2025 |
513,064 |
359,025 |
39,492 |
0 |
39,492 |
||
|
2024 |
02/13/2024 |
487,066 |
341,929 |
37,612 |
0 |
37,612 |
||
|
2023 |
02/14/2023 |
410,642 |
325,647 |
35,820 |
0 |
35,820 |
||
|
2022 |
03/15/2022 |
405,542 |
310,140 |
34,114 |
0 |
34,114 |
||
| Property Building Permit History | |||||||||||
|---|---|---|---|---|---|---|---|---|---|---|---|
| Issued | Permit # | Provided by | Bldg # | Description | Est Construction Cost | Status | |||||
| No Building Permit records returned. | |||||||||||
| Click button on building number to access detailed information: | ||||||
|---|---|---|---|---|---|---|
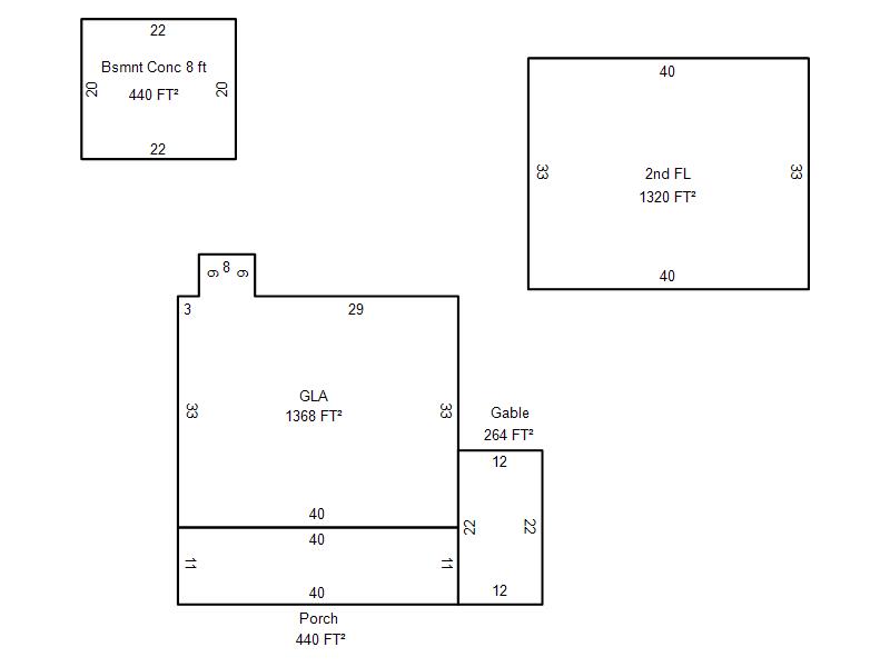
| Bldg # | Vacant/Improved Land | Bldg Description | Year Built | SqFt | # Stories | |
|
1 |
Improved |
2 Story |
1923 |
2,688 |
2 Stories |
|
|
2 |
Improved |
Ranch 1 Story |
1923 |
500 |
1 Stories |
|