|
|
|
| Larry Stein Oklahoma County Assessor (405) 713-1200 - Public Access System |
|
|
|
|
|
|
| Real Property Display - Screen Produced 4/13/2026 12:32:10 AM | ||||
|---|---|---|---|---|
| Account: R062144000 | Type: Residential | Location: |
1401 NW 20TH ST |
|
| Building Name/Occupant: |
|
OKLAHOMA CITY |
||
| Owner Name 1: | STUART KENNETH W |
Parcel PIN#: |
2713-06-214-4000 |
|
| Owner Name 2: | 1/4 section #: |
2713 |
||
| Owner Name 3: | Parent Acct: |
|
||
| Billing Address: | PO BOX 60851 | Tax District: |
|
|
| City, State, Zip | OKLAHOMA CITY, OK 73146-0851 | School System: |
Oklahoma City #89 |
|
|
Country: (If noted) |
Land Size: |
0.2170 Acres |
||
|
Land Value: 52,448 |
|
|||
|
Sect 29-T12N-R3W Qtr NE |
UNIVERSITY PLACE ADD
Block
003
Lot
026
|
|||
| Full Legal Description: UNIVERSITY PLACE ADD 003 026 |
| No comparable sales report available. | ||||||||||||||||||||||
|
||||||||||||||||||||||
| Value History (*The County Treasurer 405-713-1300 posts & collects actual tax amounts. Contact information HERE) | |||||||||||||
|---|---|---|---|---|---|---|---|---|---|---|---|---|---|
| Year | Market Value | Taxable Mkt Value | Gross Assessed | Exemption | Net Assessed | Millage | Est. Tax | Tax Savings | |||||
|
2026 |
627,325 |
258,301 |
28,413 |
0 |
28,413 |
122.90 |
$3,492 |
$4,989 |
|||||
|
2025 |
573,971 |
246,001 |
27,059 |
0 |
27,059 |
122.90 |
$3,326 |
$4,434 |
|||||
|
2024 |
543,483 |
234,287 |
25,771 |
0 |
25,771 |
123.89 |
$3,193 |
$4,214 |
|||||
|
2023 |
453,864 |
223,131 |
24,543 |
0 |
24,543 |
122.82 |
$3,015 |
$3,117 |
|||||
|
2022 |
447,220 |
212,506 |
23,375 |
0 |
23,375 |
117.63 |
$2,750 |
$3,037 |
|||||
| Property Account Status/Adjustments/Exemptions | ||
|---|---|---|
| Account # | Exemption Description | Amount |
|
R062144000 |
5% Capped Account |
0 |
| Property Deed Transaction History (Recorded in the County Clerk's Office) | |||||||
|---|---|---|---|---|---|---|---|
| Date | Type | Book | Page | Price | Grantor | Grantee | |
|
8/1/2001 |
|
Deeds |
$127,000 |
WALK PAULA E |
STUART KENNETH W |
||
|
5/5/1999 |
|
Hmstd Off & |
$0 |
WALK TEDDIE R |
WALK PAULA E |
||
|
12/18/1995 |
|
Historical |
$0 |
DONNELLY WILLIAM J & ELIZABETH |
WALK TEDDIE R |
||
|
5/3/1989 |
|
Historical |
$0 |
ORR PAULINE M |
DONNELLY WILLIAM J & ELIZABETH |
||
|
9/1/1983 |
|
Historical |
$0 |
|
ORR PAULINE M |
||
| Last Mailed Notice of Value (N.O.V.) Information/History | ||||||||
|---|---|---|---|---|---|---|---|---|
| Year | Date | Market Value | Taxable Market Value | Gross Assessed | Exemption | Net Assessed | ||
|
2026 |
02/23/2026 |
627,325 |
258,301 |
28,413 |
0 |
28,413 |
||
|
2025 |
02/14/2025 |
573,971 |
246,001 |
27,059 |
0 |
27,059 |
||
|
2024 |
02/13/2024 |
543,483 |
234,287 |
25,771 |
0 |
25,771 |
||
|
2023 |
02/14/2023 |
453,864 |
223,131 |
24,543 |
0 |
24,543 |
||
|
2022 |
03/15/2022 |
447,220 |
212,506 |
23,375 |
0 |
23,375 |
||
| Property Building Permit History | |||||||||||
|---|---|---|---|---|---|---|---|---|---|---|---|
| Issued | Permit # | Provided by | Bldg # | Description | Est Construction Cost | Status | |||||
| No Building Permit records returned. | |||||||||||
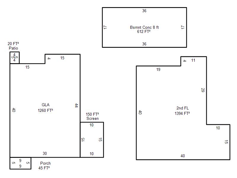
| Click button on building number to access detailed information: | ||||||
|---|---|---|---|---|---|---|
| Bldg # | Vacant/Improved Land | Bldg Description | Year Built | SqFt | # Stories | |
|
1 |
Improved |
2 Story |
1923 |
2,654 |
2 Stories |
|
|
2 |
Improved |
Ranch 1 Story |
1923 |
760 |
1 Stories |
|