|
|
|
| Larry Stein Oklahoma County Assessor (405) 713-1200 - Public Access System |
|
|
|
|
|
|
| Real Property Display - Screen Produced 4/15/2026 4:26:03 AM | ||||
|---|---|---|---|---|
| Account: R062148720 | Type: Commercial | Location: |
1903 N CLASSEN BLVD |
|
| Building Name/Occupant: |
VICTORIA BUILDING |
OKLAHOMA CITY |
||
| Owner Name 1: | SALAH PROPERTIES 04 LLC |
Parcel PIN#: |
2713-06-214-8720 |
|
| Owner Name 2: | 1/4 section #: |
2713 |
||
| Owner Name 3: | Parent Acct: |
|
||
| Billing Address: | 2129 W HEFNER RD | Tax District: |
|
|
| City, State, Zip | OKLAHOMA CITY, OK 73120-7601 | School System: |
Oklahoma City #89 |
|
|
Country: (If noted) |
Land Size: |
15,000.0000 Square Feet |
||
|
Land Value: 122,468 |
|
|||
|
Sect 29-T12N-R3W Qtr NE |
UNIVERSITY PLACE ADD
Block
007
Lot
000
|
|||
| Full Legal Description: UNIVERSITY PLACE ADD 007 008 |
| No comparable sales report available. | ||||||||||||||||||||||
|
||||||||||||||||||||||
| Value History (*The County Treasurer 405-713-1300 posts & collects actual tax amounts. Contact information HERE) | |||||||||||||
|---|---|---|---|---|---|---|---|---|---|---|---|---|---|
| Year | Market Value | Taxable Mkt Value | Gross Assessed | Exemption | Net Assessed | Millage | Est. Tax | Tax Savings | |||||
|
2026 |
1,016,231 |
1,002,750 |
110,302 |
0 |
110,302 |
122.90 |
$13,556 |
$182 |
|||||
|
2025 |
955,000 |
955,000 |
105,050 |
0 |
105,050 |
122.90 |
$12,911 |
$0 |
|||||
|
2024 |
370,225 |
370,225 |
40,724 |
0 |
40,724 |
123.89 |
$5,045 |
$0 |
|||||
|
2023 |
370,225 |
370,225 |
40,724 |
0 |
40,724 |
122.82 |
$5,002 |
$0 |
|||||
|
2022 |
370,225 |
356,323 |
39,195 |
0 |
39,195 |
117.63 |
$4,611 |
$180 |
|||||
| Property Account Status/Adjustments/Exemptions | ||
|---|---|---|
| Account # | Exemption Description | Amount |
|
R062148720 |
5% Capped Account |
0 |
| Property Deed Transaction History (Recorded in the County Clerk's Office) | |||||||
|---|---|---|---|---|---|---|---|
| Date | Type | Book | Page | Price | Grantor | Grantee | |
|
7/24/2024 |
|
Hmstd Off & |
$0 |
SALAH PROPERTIES LLC |
SALAH PROPERTIES 04 LLC |
||
|
5/13/2024 |
|
Mult Parcel |
$6,000,000 |
CHARLES A SHADID LLC |
SALAH PROPERTIES LLC |
||
|
9/3/2007 |
|
Hmstd Off & |
$0 |
SHADID CHARLES A REV TRUST |
CHARLES A SHADID LLC |
||
|
10/2/1998 |
|
Historical |
$0 |
SHADID CHARLES A |
SHADID CHARLES A REV TRUST |
||
|
11/11/1911 |
|
Historical |
$0 |
|
SHADID CHARLES A |
||
| Last Mailed Notice of Value (N.O.V.) Information/History | ||||||||
|---|---|---|---|---|---|---|---|---|
| Year | Date | Market Value | Taxable Market Value | Gross Assessed | Exemption | Net Assessed | ||
|
2026 |
03/23/2026 |
1,016,231 |
1,002,750 |
110,302 |
0 |
110,302 |
||
|
2025 |
03/14/2025 |
983,709 |
983,709 |
108,207 |
0 |
108,207 |
||
|
2023 |
03/13/2023 |
370,225 |
370,225 |
40,724 |
0 |
40,724 |
||
|
2022 |
03/09/2022 |
370,225 |
356,323 |
39,195 |
0 |
39,195 |
||
|
2021 |
03/22/2021 |
527,911 |
508,088 |
55,889 |
0 |
55,889 |
||
| Property Building Permit History | ||||||
|---|---|---|---|---|---|---|
| Issued | Permit # | Provided by | Bldg # | Description | Est Construction Cost | Status |
|
11/4/2011 |
10425644 |
OKLAHOMA CITY |
1 |
Commercial |
14,800 |
Inactive |
|
4/10/2006 |
10323254 |
OKLAHOMA CITY |
1 |
Remodeled |
40,000 |
Inactive |
|
11/1/1999 |
10193396 |
OKLAHOMA CITY |
1 |
Remodeled |
3,000 |
Inactive |
|
8/5/1999 |
10193395 |
OKLAHOMA CITY |
1 |
Commercial |
15,000 |
Inactive |
| Click button on building number to access detailed information: | ||||||
|---|---|---|---|---|---|---|
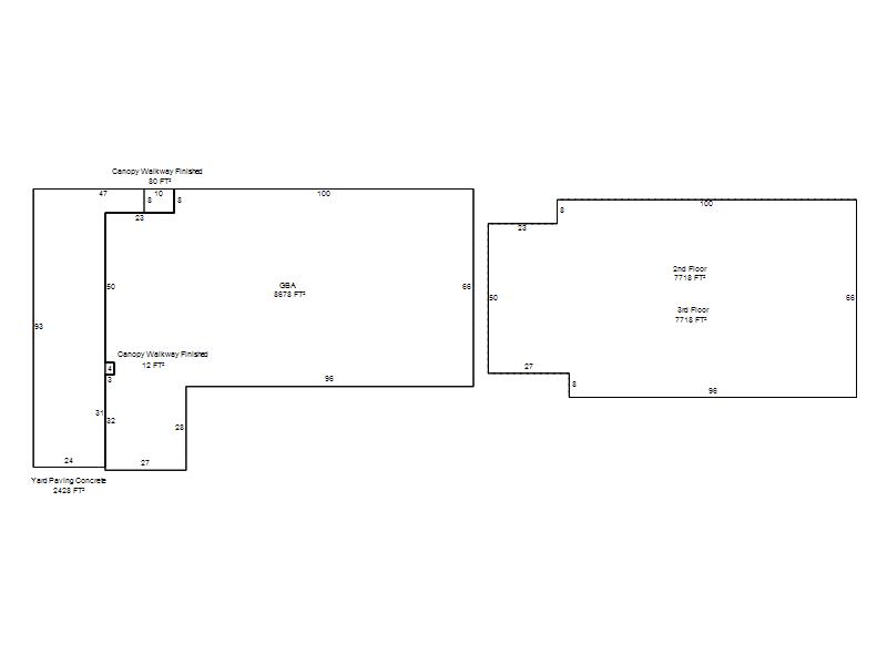
| Bldg # | Vacant/Improved Land | Bldg Description | Year Built | SqFt | # Stories | |
|
1 |
Improved |
Office Style Box C or D |
1910 |
24,114 |
3 Stories |
|
|
2 |
Improved |
Neighborhood Shopping Center |
1949 |
2,688 |
1 Stories |
|