|
|
|
| Larry Stein Oklahoma County Assessor (405) 713-1200 - Public Access System |
|
|
|
|
|
|
| Real Property Display - Screen Produced 4/1/2026 7:12:12 PM | ||||
|---|---|---|---|---|
| Account: R150514580 | Type: Residential | Location: |
319 DRAPER DR |
|
| Building Name/Occupant: |
|
MIDWEST CITY |
||
| Owner Name 1: | LANDERS SARAH E |
Parcel PIN#: |
1409-15-051-4580 |
|
| Owner Name 2: | 1/4 section #: |
1409 |
||
| Owner Name 3: | Parent Acct: |
|
||
| Billing Address: | 319 DRAPER DR | Tax District: |
|
|
| City, State, Zip | MIDWEST CITY, OK 73110 | School System: |
Mid-Del #52 |
|
|
Country: (If noted) |
Land Size: |
0.1492 Acres |
||
|
Land Value: 18,525 |
|
|||
|
Sect 3-T11N-R2W Qtr NE |
COUNTRY ESTATES 4TH
Block
015
Lot
008
|
|||
| Full Legal Description: COUNTRY ESTATES 4TH 015 008 |
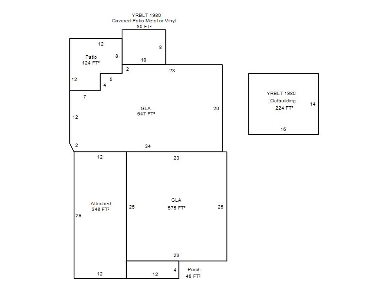
| Photo & Sketch (if available) | Comp Sales (ordered by relevancy) |
|
||||||||||||||||||
|
||||||||||||||||||||
| Value History (*The County Treasurer 405-713-1300 posts & collects actual tax amounts. Contact information HERE) | |||||||||||||
|---|---|---|---|---|---|---|---|---|---|---|---|---|---|
| Year | Market Value | Taxable Mkt Value | Gross Assessed | Exemption | Net Assessed | Millage | Est. Tax | Tax Savings | |||||
|
2026 |
151,000 |
151,000 |
16,610 |
0 |
16,610 |
119.58 |
$1,986 |
$0 |
|||||
|
2025 |
153,000 |
152,250 |
16,747 |
0 |
16,747 |
119.58 |
$2,003 |
$10 |
|||||
|
2024 |
145,000 |
145,000 |
15,950 |
0 |
15,950 |
122.51 |
$1,954 |
$0 |
|||||
|
2023 |
154,000 |
154,000 |
16,940 |
0 |
16,940 |
117.71 |
$1,994 |
$0 |
|||||
|
2022 |
154,000 |
154,000 |
16,940 |
0 |
16,940 |
116.64 |
$1,976 |
$0 |
|||||
| Property Account Status/Adjustments/Exemptions | ||
|---|---|---|
| Account # | Exemption Description | Amount |
|
R150514580 |
5% Capped Account |
0 |
| Property Deed Transaction History (Recorded in the County Clerk's Office) | ||||||||||
|---|---|---|---|---|---|---|---|---|---|---|
| Date | Type | Book | Page | Price | Grantor | Grantee | ||||
|
6/25/2021 |
|
Deeds |
$160,000 |
BUCKLEY WHITNEY |
LANDERS SARAH E |
|||||
|
1/7/2010 |
|
Deeds |
$92,500 |
WILLIAMS RHONDA & JERRY |
BUCKLEY WHITNEY |
|||||
|
8/28/2009 |
|
Deeds |
$45,000 |
DEUTSCHE BANK NATIONAL TRUST CO AS TRS |
WILLIAMS RHONDA & JERRY |
|||||
|
6/26/2009 |
|
Hmstd Off & |
$0 |
SPITTLER MARK R & AMELITA A |
DEUTSCHE BANK NATIONAL TRUST CO AS TRS |
|||||
|
8/24/2006 |
|
Hmstd Off & |
$0 |
SMITH MARY A TRS SMITH MARY A FAMILY TRUST |
KISER PATRICIA A SUC TRS SMITH MARY A FAMILY TRUST |
|||||
| Last Mailed Notice of Value (N.O.V.) Information/History | ||||||||
|---|---|---|---|---|---|---|---|---|
| Year | Date | Market Value | Taxable Market Value | Gross Assessed | Exemption | Net Assessed | ||
|
2025 |
01/31/2025 |
153,000 |
152,250 |
16,747 |
0 |
16,747 |
||
|
2022 |
02/22/2022 |
154,000 |
154,000 |
16,940 |
0 |
16,940 |
||
|
2021 |
02/24/2021 |
98,500 |
91,875 |
10,106 |
0 |
10,106 |
||
|
2019 |
02/26/2019 |
91,000 |
89,775 |
9,875 |
0 |
9,875 |
||
|
2018 |
04/09/2018 |
85,500 |
85,500 |
9,405 |
0 |
9,405 |
||
| Property Building Permit History | |||||||||||
|---|---|---|---|---|---|---|---|---|---|---|---|
| Issued | Permit # | Provided by | Bldg # | Description | Est Construction Cost | Status | |||||
| No Building Permit records returned. | |||||||||||
| Click button on building number to access detailed information: | ||||||
|---|---|---|---|---|---|---|
| Bldg # | Vacant/Improved Land | Bldg Description | Year Built | SqFt | # Stories | |
|
1 |
Improved |
Ranch 1 Story |
1950 |
1,222 |
1 Stories |
|