|
|
|
| Larry Stein Oklahoma County Assessor (405) 713-1200 - Public Access System |
|
|
|
|
|
|
| Real Property Display - Screen Produced 4/5/2026 12:14:06 AM | ||||
|---|---|---|---|---|
| Account: R063027660 | Type: Residential | Location: |
1944 NW 12TH ST |
|
| Building Name/Occupant: |
|
OKLAHOMA CITY |
||
| Owner Name 1: | KENNEDY CASSIDI ELIZABETH |
Parcel PIN#: |
2715-06-302-7660 |
|
| Owner Name 2: | 1/4 section #: |
2715 |
||
| Owner Name 3: | Parent Acct: |
|
||
| Billing Address: | 1944 NW 12TH ST | Tax District: |
|
|
| City, State, Zip | OKLAHOMA CITY, OK 73106-2237 | School System: |
Oklahoma City #89 |
|
|
Country: (If noted) |
Land Size: |
0.1550 Acres |
||
|
Land Value: 29,363 |
|
|||
|
Sect 29-T12N-R3W Qtr SW |
BAUMANS ADDITION
Block
005
Lot
000
|
|||
| Full Legal Description: BAUMANS ADDITION 005 000 LOTS 23 & 24 |
| Photo & Sketch (if available) | Comp Sales (ordered by relevancy) |
|
||||||||||||||||||
|
||||||||||||||||||||
| Value History (*The County Treasurer 405-713-1300 posts & collects actual tax amounts. Contact information HERE) | |||||||||||||
|---|---|---|---|---|---|---|---|---|---|---|---|---|---|
| Year | Market Value | Taxable Mkt Value | Gross Assessed | Exemption | Net Assessed | Millage | Est. Tax | Tax Savings | |||||
|
2026 |
242,000 |
242,000 |
26,620 |
1,000 |
25,620 |
122.90 |
$3,149 |
$123 |
|||||
|
2025 |
248,500 |
246,685 |
27,135 |
1,000 |
26,135 |
122.90 |
$3,212 |
$147 |
|||||
|
2024 |
239,500 |
239,500 |
26,345 |
0 |
26,345 |
123.89 |
$3,264 |
$0 |
|||||
|
2023 |
251,500 |
191,772 |
21,094 |
1,000 |
20,094 |
122.82 |
$2,468 |
$930 |
|||||
|
2022 |
209,500 |
186,187 |
20,480 |
1,000 |
19,480 |
117.63 |
$2,291 |
$419 |
|||||
| Property Account Status/Adjustments/Exemptions | ||
|---|---|---|
| Account # | Exemption Description | Amount |
|
R063027660 |
3% Cap Homestead |
0 |
|
R063027660 |
Homestead |
1,000 |
| Property Deed Transaction History (Recorded in the County Clerk's Office) | ||||||||||
|---|---|---|---|---|---|---|---|---|---|---|
| Date | Type | Book | Page | Price | Grantor | Grantee | ||||
|
3/21/2023 |
|
Deeds |
$230,000 |
BROCK CRYSTA JEAN |
KENNEDY CASSIDI ELIZABETH |
|||||
|
6/14/2019 |
|
Deeds |
$177,500 |
J&M RENOVATION COMPANY LLC |
BROCK CRYSTA JEAN |
|||||
|
6/8/2018 |
|
Deeds |
$42,000 |
LOVELACE CLAUDIA |
J&M RENOVATION COMPANY LLC |
|||||
|
5/13/2002 |
|
Deeds |
$25,000 |
CAPITOL HILL SHALOM INITIATIVE C/O CAROLYN JACKSON |
LOVELACE CLAUDIA |
|||||
|
3/25/2002 |
|
Deeds |
$0 |
CAPITOL HILL SHALOM INITIATIVE |
CAPITOL HILL SHALOM INITIATIVE C/O CAROLYN JACKSON |
|||||
| Last Mailed Notice of Value (N.O.V.) Information/History | ||||||||
|---|---|---|---|---|---|---|---|---|
| Year | Date | Market Value | Taxable Market Value | Gross Assessed | Exemption | Net Assessed | ||
|
2025 |
02/14/2025 |
248,500 |
246,685 |
27,135 |
1,000 |
26,135 |
||
|
2024 |
02/13/2024 |
239,500 |
239,500 |
26,345 |
0 |
26,345 |
||
|
2023 |
02/14/2023 |
251,500 |
191,772 |
21,094 |
1,000 |
20,094 |
||
|
2022 |
03/15/2022 |
209,500 |
186,187 |
20,480 |
1,000 |
19,480 |
||
|
2021 |
03/19/2021 |
190,500 |
180,765 |
19,884 |
1,000 |
18,884 |
||
| Property Building Permit History | ||||||
|---|---|---|---|---|---|---|
| Issued | Permit # | Provided by | Bldg # | Description | Est Construction Cost | Status |
|
1/21/1999 |
10193628 |
OKLAHOMA CITY |
1 |
Main Dwellin |
10,000 |
Inactive |
|
6/16/1997 |
10193627 |
OKLAHOMA CITY |
1 |
Burn - Trip |
24,000 |
Inactive |
| Click button on building number to access detailed information: | ||||||
|---|---|---|---|---|---|---|
| Bldg # | Vacant/Improved Land | Bldg Description | Year Built | SqFt | # Stories | |
|
1 |
Improved |
Ranch 1 Story |
1915 |
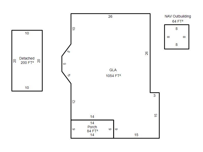
1,054 |
1 Stories |
|