|
|
|
| Larry Stein Oklahoma County Assessor (405) 713-1200 - Public Access System |
|
|
|
|
|
|
| Real Property Display - Screen Produced 4/5/2026 12:30:01 AM | ||||
|---|---|---|---|---|
| Account: R063028590 | Type: Residential | Location: |
1953 W PARK PL |
|
| Building Name/Occupant: |
|
OKLAHOMA CITY |
||
| Owner Name 1: | SURI PROPERTIES LLC |
Parcel PIN#: |
2715-06-302-8590 |
|
| Owner Name 2: | 1/4 section #: |
2715 |
||
| Owner Name 3: | Parent Acct: |
|
||
| Billing Address: | PO BOX 712 | Tax District: |
|
|
| City, State, Zip | OKLAHOMA CITY, OK 73101-0712 | School System: |
Oklahoma City #89 |
|
|
Country: (If noted) |
Land Size: |
0.1189 Acres |
||
|
Land Value: 22,533 |
|
|||
|
Sect 29-T12N-R3W Qtr SW |
BAUMANS ADDITION
Block
006
Lot
000
|
|||
| Full Legal Description: BAUMANS ADDITION 006 000 E 1/2 OF LOT 31 & ALL LOT 32 |
| Photo & Sketch (if available) | Comp Sales (ordered by relevancy) |
|
||||||||||||||||||
|
||||||||||||||||||||
| Value History (*The County Treasurer 405-713-1300 posts & collects actual tax amounts. Contact information HERE) | |||||||||||||
|---|---|---|---|---|---|---|---|---|---|---|---|---|---|
| Year | Market Value | Taxable Mkt Value | Gross Assessed | Exemption | Net Assessed | Millage | Est. Tax | Tax Savings | |||||
|
2026 |
122,000 |
57,347 |
6,307 |
0 |
6,307 |
122.90 |
$775 |
$874 |
|||||
|
2025 |
119,500 |
54,617 |
6,007 |
0 |
6,007 |
122.90 |
$738 |
$877 |
|||||
|
2024 |
117,000 |
52,017 |
5,721 |
0 |
5,721 |
123.89 |
$709 |
$886 |
|||||
|
2023 |
103,500 |
49,540 |
5,448 |
0 |
5,448 |
122.82 |
$669 |
$729 |
|||||
|
2022 |
82,000 |
47,181 |
5,189 |
0 |
5,189 |
117.63 |
$610 |
$451 |
|||||
| Property Account Status/Adjustments/Exemptions | ||
|---|---|---|
| Account # | Exemption Description | Amount |
|
R063028590 |
5% Capped Account |
0 |
| Property Deed Transaction History (Recorded in the County Clerk's Office) | ||||||||||
|---|---|---|---|---|---|---|---|---|---|---|
| Date | Type | Book | Page | Price | Grantor | Grantee | ||||
|
9/13/2016 |
|
Hmstd Off & |
$0 |
HUAMAN JUAN S & CYNTHIA |
SURI PROPERTIES LLC |
|||||
|
6/10/2013 |
|
Deeds |
$17,000 |
FLESHMAN DEAN A TRS JOHNSON CAROLE S TRS |
HUAMAN JUAN S & CYNTHIA |
|||||
|
8/29/1991 |
|
Historical |
$0 |
FLESHMAN DEAN A TRS |
FLESHMAN DEAN A TRS |
|||||
|
11/28/1990 |
|
Historical |
$0 |
CAPITOL HILL STATE BANK |
FLESHMAN DEAN A TRS |
|||||
|
8/25/1987 |
|
Historical |
$0 |
JEARY ENTERPRISES INC |
CAPITOL HILL STATE BANK |
|||||
| Last Mailed Notice of Value (N.O.V.) Information/History | ||||||||
|---|---|---|---|---|---|---|---|---|
| Year | Date | Market Value | Taxable Market Value | Gross Assessed | Exemption | Net Assessed | ||
|
2026 |
02/23/2026 |
122,000 |
57,347 |
6,307 |
0 |
6,307 |
||
|
2025 |
02/14/2025 |
119,500 |
54,617 |
6,007 |
0 |
6,007 |
||
|
2024 |
02/13/2024 |
117,000 |
52,017 |
5,721 |
0 |
5,721 |
||
|
2023 |
02/14/2023 |
103,500 |
49,540 |
5,448 |
0 |
5,448 |
||
|
2022 |
03/15/2022 |
82,000 |
47,181 |
5,189 |
0 |
5,189 |
||
| Property Building Permit History | |||||||||||
|---|---|---|---|---|---|---|---|---|---|---|---|
| Issued | Permit # | Provided by | Bldg # | Description | Est Construction Cost | Status | |||||
| No Building Permit records returned. | |||||||||||
| Click button on building number to access detailed information: | ||||||
|---|---|---|---|---|---|---|
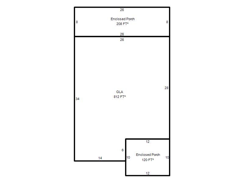
| Bldg # | Vacant/Improved Land | Bldg Description | Year Built | SqFt | # Stories | |
|
1 |
Improved |
Ranch 1 Story |
1921 |
812 |
1 Stories |
|