|
|
|
| Larry Stein Oklahoma County Assessor (405) 713-1200 - Public Access System |
|
|
|
|
|
|
| Real Property Display - Screen Produced 4/9/2026 5:48:21 AM | ||||
|---|---|---|---|---|
| Account: R062546400 | Type: Residential | Location: |
2023 NW 16TH ST |
|
| Building Name/Occupant: |
|
OKLAHOMA CITY |
||
| Owner Name 1: | GRIFFIN IYLA SHURREEN |
Parcel PIN#: |
2716-06-254-6400 |
|
| Owner Name 2: | 1/4 section #: |
2716 |
||
| Owner Name 3: | Parent Acct: |
|
||
| Billing Address: | 2023 NW 16TH ST | Tax District: |
|
|
| City, State, Zip | OKLAHOMA CITY, OK 73106-2034 | School System: |
Oklahoma City #89 |
|
|
Country: (If noted) |
Land Size: |
0.2049 Acres |
||
|
Land Value: 57,120 |
|
|||
|
Sect 29-T12N-R3W Qtr NW |
MCKINLEY PLACE ADD
Block
004
Lot
018
|
|||
| Full Legal Description: MCKINLEY PLACE ADD 004 018 |
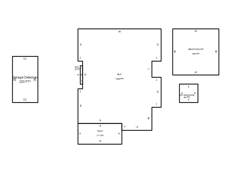
| Photo & Sketch (if available) | Comp Sales (ordered by relevancy) |
|
||||||||||||||||||
|
||||||||||||||||||||
| Value History (*The County Treasurer 405-713-1300 posts & collects actual tax amounts. Contact information HERE) | |||||||||||||
|---|---|---|---|---|---|---|---|---|---|---|---|---|---|
| Year | Market Value | Taxable Mkt Value | Gross Assessed | Exemption | Net Assessed | Millage | Est. Tax | Tax Savings | |||||
|
2026 |
234,000 |
111,266 |
12,238 |
1,000 |
11,238 |
122.90 |
$1,381 |
$1,782 |
|||||
|
2025 |
226,000 |
108,026 |
11,882 |
1,000 |
10,882 |
122.90 |
$1,338 |
$1,718 |
|||||
|
2024 |
215,000 |
104,880 |
11,536 |
1,000 |
10,536 |
123.89 |
$1,305 |
$1,625 |
|||||
|
2023 |
203,500 |
101,826 |
11,200 |
1,000 |
10,200 |
122.82 |
$1,253 |
$1,496 |
|||||
|
2022 |
162,000 |
98,861 |
10,873 |
1,000 |
9,873 |
117.63 |
$1,162 |
$935 |
|||||
| Property Account Status/Adjustments/Exemptions | ||
|---|---|---|
| Account # | Exemption Description | Amount |
|
R062546400 |
3% Cap Homestead |
0 |
|
R062546400 |
Homestead |
1,000 |
| Property Deed Transaction History (Recorded in the County Clerk's Office) | |||||||
|---|---|---|---|---|---|---|---|
| Date | Type | Book | Page | Price | Grantor | Grantee | |
|
11/20/2006 |
|
Deeds |
$0 |
AKIN CLYDE D & MAGGIE J |
AKINS MAGGIE JO |
||
|
11/20/2006 |
|
Deeds |
$60,000 |
AKINS MAGGIE JO |
GRIFFIN IYLA SHURREEN |
||
|
7/1/1976 |
|
Historical |
$0 |
|
AKIN CLYDE D & MAGGIE J |
||
| Last Mailed Notice of Value (N.O.V.) Information/History | ||||||||
|---|---|---|---|---|---|---|---|---|
| Year | Date | Market Value | Taxable Market Value | Gross Assessed | Exemption | Net Assessed | ||
|
2026 |
02/23/2026 |
234,000 |
111,266 |
12,238 |
1,000 |
11,238 |
||
|
2025 |
02/14/2025 |
226,000 |
108,026 |
11,882 |
1,000 |
10,882 |
||
|
2024 |
02/13/2024 |
215,000 |
104,880 |
11,536 |
1,000 |
10,536 |
||
|
2023 |
02/14/2023 |
203,500 |
101,826 |
11,200 |
1,000 |
10,200 |
||
|
2022 |
03/15/2022 |
162,000 |
98,861 |
10,873 |
1,000 |
9,873 |
||
| Property Building Permit History | |||||||||||
|---|---|---|---|---|---|---|---|---|---|---|---|
| Issued | Permit # | Provided by | Bldg # | Description | Est Construction Cost | Status | |||||
| No Building Permit records returned. | |||||||||||
| Click button on building number to access detailed information: | ||||||
|---|---|---|---|---|---|---|
| Bldg # | Vacant/Improved Land | Bldg Description | Year Built | SqFt | # Stories | |
|
1 |
Improved |
Ranch 1 Story |
1922 |
1,443 |
1 Stories |
|