|
|
|
| Larry Stein Oklahoma County Assessor (405) 713-1200 - Public Access System |
|
|
|
|
|
|
| Real Property Display - Screen Produced 4/15/2026 4:33:47 AM | ||||
|---|---|---|---|---|
| Account: R063665200 | Type: Residential | Location: |
2329 NW 22ND ST |
|
| Building Name/Occupant: |
|
OKLAHOMA CITY |
||
| Owner Name 1: | DOMICILE LLC |
Parcel PIN#: |
2717-06-366-5200 |
|
| Owner Name 2: | 1/4 section #: |
2717 |
||
| Owner Name 3: | Parent Acct: |
|
||
| Billing Address: | 9 OAKWOOD DR | Tax District: |
|
|
| City, State, Zip | OKLAHOMA CITY, OK 73121 | School System: |
Oklahoma City #89 |
|
|
Country: (If noted) |
Land Size: |
0.1511 Acres |
||
|
Land Value: 28,623 |
|
|||
|
Sect 30-T12N-R3W Qtr NE |
DAUGHERTY SUB AURORA
Block
001
Lot
013
|
|||
| Full Legal Description: DAUGHERTY SUB AURORA 001 013 |
| Photo & Sketch (if available) | Comp Sales (ordered by relevancy) |
|
||||||||||||||||||
|
||||||||||||||||||||
| Value History (*The County Treasurer 405-713-1300 posts & collects actual tax amounts. Contact information HERE) | |||||||||||||
|---|---|---|---|---|---|---|---|---|---|---|---|---|---|
| Year | Market Value | Taxable Mkt Value | Gross Assessed | Exemption | Net Assessed | Millage | Est. Tax | Tax Savings | |||||
|
2026 |
143,500 |
94,471 |
10,391 |
0 |
10,391 |
122.90 |
$1,277 |
$663 |
|||||
|
2025 |
141,000 |
89,973 |
9,896 |
0 |
9,896 |
122.90 |
$1,216 |
$690 |
|||||
|
2024 |
135,500 |
85,689 |
9,424 |
0 |
9,424 |
123.89 |
$1,168 |
$679 |
|||||
|
2023 |
134,000 |
81,609 |
8,976 |
0 |
8,976 |
122.82 |
$1,103 |
$708 |
|||||
|
2022 |
106,000 |
77,723 |
8,548 |
0 |
8,548 |
117.63 |
$1,006 |
$366 |
|||||
| Property Account Status/Adjustments/Exemptions | ||
|---|---|---|
| Account # | Exemption Description | Amount |
|
R063665200 |
5% Capped Account |
0 |
| Property Deed Transaction History (Recorded in the County Clerk's Office) | ||||||||||
|---|---|---|---|---|---|---|---|---|---|---|
| Date | Type | Book | Page | Price | Grantor | Grantee | ||||
|
12/20/2013 |
|
Hmstd Off & |
$0 |
BURCHFIELD DUSTIN & ANDREA |
DOMICILE LLC |
|||||
|
7/28/2012 |
|
Hmstd Off & |
$0 |
CHAPMAN TERRY & DIANA |
BURCHFIELD DUSTIN & ANDREA |
|||||
|
7/20/2010 |
|
Deeds |
$59,500 |
FEDERAL HOME LOAN MORTGAGE CORP |
CHAPMAN TERRY & DIANA |
|||||
|
4/12/2010 |
|
Hmstd Off & |
$0 |
ABRAMSON LEAH A |
FEDERAL HOME LOAN MORTGAGE CORP |
|||||
|
6/29/2000 |
|
Deeds |
$41,000 |
DODD O BROOKS |
ABRAMSON LEAH A |
|||||
| Last Mailed Notice of Value (N.O.V.) Information/History | ||||||||
|---|---|---|---|---|---|---|---|---|
| Year | Date | Market Value | Taxable Market Value | Gross Assessed | Exemption | Net Assessed | ||
|
2026 |
02/23/2026 |
143,500 |
94,471 |
10,391 |
0 |
10,391 |
||
|
2025 |
02/14/2025 |
141,000 |
89,973 |
9,896 |
0 |
9,896 |
||
|
2024 |
02/13/2024 |
135,500 |
85,689 |
9,424 |
0 |
9,424 |
||
|
2023 |
02/14/2023 |
134,000 |
81,609 |
8,976 |
0 |
8,976 |
||
|
2022 |
03/15/2022 |
106,000 |
77,723 |
8,548 |
0 |
8,548 |
||
| Property Building Permit History | |||||||||||
|---|---|---|---|---|---|---|---|---|---|---|---|
| Issued | Permit # | Provided by | Bldg # | Description | Est Construction Cost | Status | |||||
| No Building Permit records returned. | |||||||||||
| Click button on building number to access detailed information: | ||||||
|---|---|---|---|---|---|---|
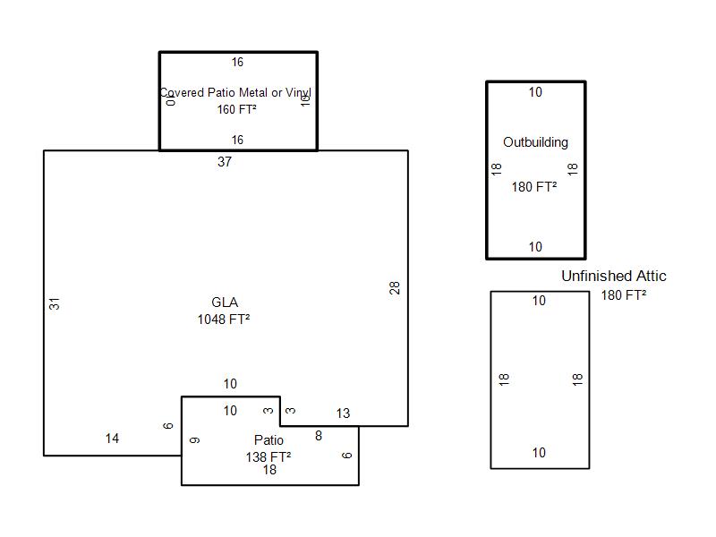
| Bldg # | Vacant/Improved Land | Bldg Description | Year Built | SqFt | # Stories | |
|
1 |
Improved |
1½ Story Unfin |
1929 |
1,048 |
1.5 Stories |
|