|
|
|
| Larry Stein Oklahoma County Assessor (405) 713-1200 - Public Access System |
|
|
|
|
|
|
| Real Property Display - Screen Produced 4/15/2026 4:38:42 AM | ||||
|---|---|---|---|---|
| Account: R063666000 | Type: Residential | Location: |
2312 N CROSS AVE |
|
| Building Name/Occupant: |
|
OKLAHOMA CITY |
||
| Owner Name 1: | ALANIZ NEIRA |
Parcel PIN#: |
2717-06-366-6000 |
|
| Owner Name 2: | DE LUNA CRISTIAN | 1/4 section #: |
2717 |
|
| Owner Name 3: | Parent Acct: |
|
||
| Billing Address: | 3604 NW 16TH ST | Tax District: |
|
|
| City, State, Zip | OKLAHOMA CITY, OK 73107 | School System: |
Oklahoma City #89 |
|
|
Country: (If noted) |
Land Size: |
0.1607 Acres |
||
|
Land Value: 30,450 |
|
|||
|
Sect 30-T12N-R3W Qtr NE |
DAUGHERTY SUB AURORA
Block
001
Lot
015
|
|||
| Full Legal Description: DAUGHERTY SUB AURORA 001 015 |
| Photo & Sketch (if available) | Comp Sales (ordered by relevancy) |
|
||||||||||||||||||
|
||||||||||||||||||||
| Value History (*The County Treasurer 405-713-1300 posts & collects actual tax amounts. Contact information HERE) | |||||||||||||
|---|---|---|---|---|---|---|---|---|---|---|---|---|---|
| Year | Market Value | Taxable Mkt Value | Gross Assessed | Exemption | Net Assessed | Millage | Est. Tax | Tax Savings | |||||
|
2026 |
153,500 |
68,261 |
7,508 |
0 |
7,508 |
122.90 |
$923 |
$1,152 |
|||||
|
2025 |
148,000 |
65,011 |
7,150 |
0 |
7,150 |
122.90 |
$879 |
$1,122 |
|||||
|
2024 |
142,000 |
61,916 |
6,810 |
0 |
6,810 |
123.89 |
$844 |
$1,091 |
|||||
|
2023 |
138,500 |
58,968 |
6,485 |
0 |
6,485 |
122.82 |
$797 |
$1,074 |
|||||
|
2022 |
108,000 |
56,160 |
6,177 |
2,000 |
4,177 |
117.63 |
$491 |
$906 |
|||||
| Property Account Status/Adjustments/Exemptions | ||||||
|---|---|---|---|---|---|---|
| Account # | Exemption Description | Amount | ||||
| No adjustment/exemption records returned. | ||||||
| Property Deed Transaction History (Recorded in the County Clerk's Office) | ||||||||||
|---|---|---|---|---|---|---|---|---|---|---|
| Date | Type | Book | Page | Price | Grantor | Grantee | ||||
|
5/25/2022 |
|
Hmstd Off & |
$0 |
CRUZ SOCORRO |
ALANIZ NEIRA |
|||||
|
9/23/2020 |
|
Deeds |
$0 |
CRUZ MANUEL & SOCORRO |
CRUZ SOCORRO |
|||||
|
7/29/1994 |
|
Historical |
$26,000 |
TAYLOR JOE A & MARGARUIETTE A |
CRUZ MANUEL & SOCORRO |
|||||
|
7/22/1993 |
|
Historical |
$10,000 |
WHITAKER GENEVA EVELYN |
TAYLOR JOE A & MARGARUIETTE A |
|||||
|
4/16/1993 |
|
Historical |
$0 |
WHITAKER A J H & GENEVA E |
WHITAKER GENEVA EVELYN |
|||||
| Last Mailed Notice of Value (N.O.V.) Information/History | ||||||||
|---|---|---|---|---|---|---|---|---|
| Year | Date | Market Value | Taxable Market Value | Gross Assessed | Exemption | Net Assessed | ||
|
2026 |
02/23/2026 |
153,500 |
68,261 |
7,508 |
0 |
7,508 |
||
|
2025 |
02/14/2025 |
148,000 |
65,011 |
7,150 |
0 |
7,150 |
||
|
2024 |
02/13/2024 |
142,000 |
61,916 |
6,810 |
0 |
6,810 |
||
|
2023 |
02/14/2023 |
138,500 |
58,968 |
6,485 |
0 |
6,485 |
||
|
2022 |
03/15/2022 |
108,000 |
56,160 |
6,177 |
2,000 |
4,177 |
||
| Property Building Permit History | |||||||||||
|---|---|---|---|---|---|---|---|---|---|---|---|
| Issued | Permit # | Provided by | Bldg # | Description | Est Construction Cost | Status | |||||
| No Building Permit records returned. | |||||||||||
| Click button on building number to access detailed information: | ||||||
|---|---|---|---|---|---|---|
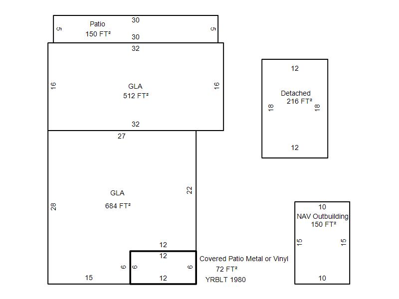
| Bldg # | Vacant/Improved Land | Bldg Description | Year Built | SqFt | # Stories | |
|
1 |
Improved |
Ranch 1 Story |
1933 |
1,196 |
1 Stories |
|